3–5-Bedroom, 1868–3068 Sq Ft Craftsman Plan with Kitchen Island

Craftsman Cabin Style House (The Plan Collection Plan #187-1029)

Images/Plans copyrighted by designer. Photos may reflect homeowner modifications.

About House Plan #187-1029

Sq Ft
1868
Sq Ft
Bedrooms
5
Bedrooms
Bathroom
3
Baths
Half Baths
1
Half Baths
Bedrooms
0
Cars
Bedrooms
1
Stories
Bedrooms
40' 0'
Width
Bedrooms
30
Depth
Starting at$1150.00What's included
STEP 1Bedrooms
STEP 2Bedrooms
STEP 3Bedrooms

Subtotal:$0
Plan Collection

How much will it cost to build?

Estimate your costs based on your location and materials.

Free Cost Instant Estimator

Floor Plans

Floor Plan Main Level
Floor Plan Main Level
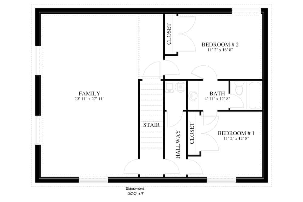
Floor Plan Basement
Floor Plan Basement
Floor Plan Bonus Room
Floor Plan Bonus Room
Plan Collection

Can I modify this plan?

Yes! This plan can be customized—contact us for a free quote.

Additional Notes from Designer

PLEASE NOTE! On some plans, alternate foundations could take up to ONE WEEK to produce. NOTE FROM DESIGNER: If you purchase a CAD, you will automatically receive the unlimited build license!

House Plan Description

This well-done Craftsman cabin-style home has 1868 square feet of above grade living space. With the finished basement, there is a total of 3068 square feet of living space. The one story floor plan includes 3–5 bedrooms and 2.5–3.5 bathrooms.

Home Details

Summary
Plan #:187-1029
Starting at:$1150.00
Floors:1
Bedrooms:5
Full Baths:3
Half Baths:1
Garage:
Square Footage
Heated Area:1868 Sq. Ft.
First Floor:1218 Sq. Ft.
Bonus Room:650 Sq. Ft.
Unheated Area:
Basement:1200 Sq. Ft.
Dimensions
Ridge Height:24' 0''
Architectural Styles
Exterior Wall Material
Wood SidingShakes
Roofing Type
Gable
Roofing Material
Metal
Roof Pitch
4/1210/12
Ceiling Height
9 Foot Ceiling
Special Feature
Bonus RoomFamily RoomMain Level LaundrySplit BathroomOpen Floor Plan
Exterior Wall Framing
2x6
Building Lot Type
Narrow Lot Design
Kitchen Features
Eat-In Kitchen
Porches and Exterior Features
Covered Front Porch
Master Suite Features
Main Floor MasterMaster BathroomWalk In ClosetSplit Master Bedroom

What’s Included

Most plan sets include the following:

icon text-secondary-400 includedFloor plans

icon text-secondary-400 includedFloor framing plans

icon text-secondary-400 includedRoof framing plan

icon text-secondary-400 includedAll 4 elevations

icon text-secondary-400 includedCross-sections

icon text-secondary-400 includedElectrical layout

icon text-secondary-400 included3-4 sheets of details

What’s Not Included

These items are  NOT included:

icon text-secondary-400 includedMechanical Drawings (location of heating and air equipment and ductwork) - your subcontractors handle this.

icon text-secondary-400 includedSite Plan - handled locally when required. Architectural or Engineering Stamp - handled locally if required.

icon text-secondary-400 includedPlumbing Drawings (drawings showing the actual plumbing pipe sizes and locations) - your subcontractors handle this.

icon text-secondary-400 includedEnergy calculations - handled locally when required.

Related House Plans

Plan Collection
Plan Collection
Plan Collection
Plan#135-1132
Starting at$1380
1681
Sq Ft
1
Story
5
Bed
3.5
Bath
3
Car
Plan Collection
Plan Collection
Plan Collection
Plan#178-1349
Starting at$1005
1988
Sq Ft
1
Story
5
Bed
3
Bath
2
Car
Plan Collection
Plan Collection
Plan Collection
Plan#178-1223
Starting at$1005
1996
Sq Ft
1
Story
5
Bed
3
Bath
3
Car
View All

Other Plans By This Designer

Plan Collection
Plan Collection
Plan Collection
Plan#187-1210
Starting at$650
900
Sq Ft
1
Story
2
Bed
1.5
Bath
2
Car
Plan Collection
Plan Collection
Plan Collection
Plan#187-1206
Starting at$1150
1096
Sq Ft
2
Story
2
Bed
2
Bath
6
Car
Plan Collection
Plan Collection
Plan Collection
Plan#187-1069
Starting at$1050
1595
Sq Ft
1
Story
3
Bed
2
Bath
4
Car