Estimate your costs based on your location and materials.
Yes! This plan can be customized—contact us for a free quote.
Yes! This plan can be customized—contact us for a free quote.
On some plans, Basement Foundations, Walkout Basement Foundations & 2x6 Conversions could take up to ONE WEEK to produce. Materials Lists could take up to FOUR WEEKS to produce and they will be for the ORIGINAL plan! Any modifications will NOT be reflected on the Materials List. NOTE FROM DESIGNER: If you purchase a CAD, you will automatically receive the unlimited build license - no need to purchase separately!
The total square footage is 2285 (includning heated and unheated).
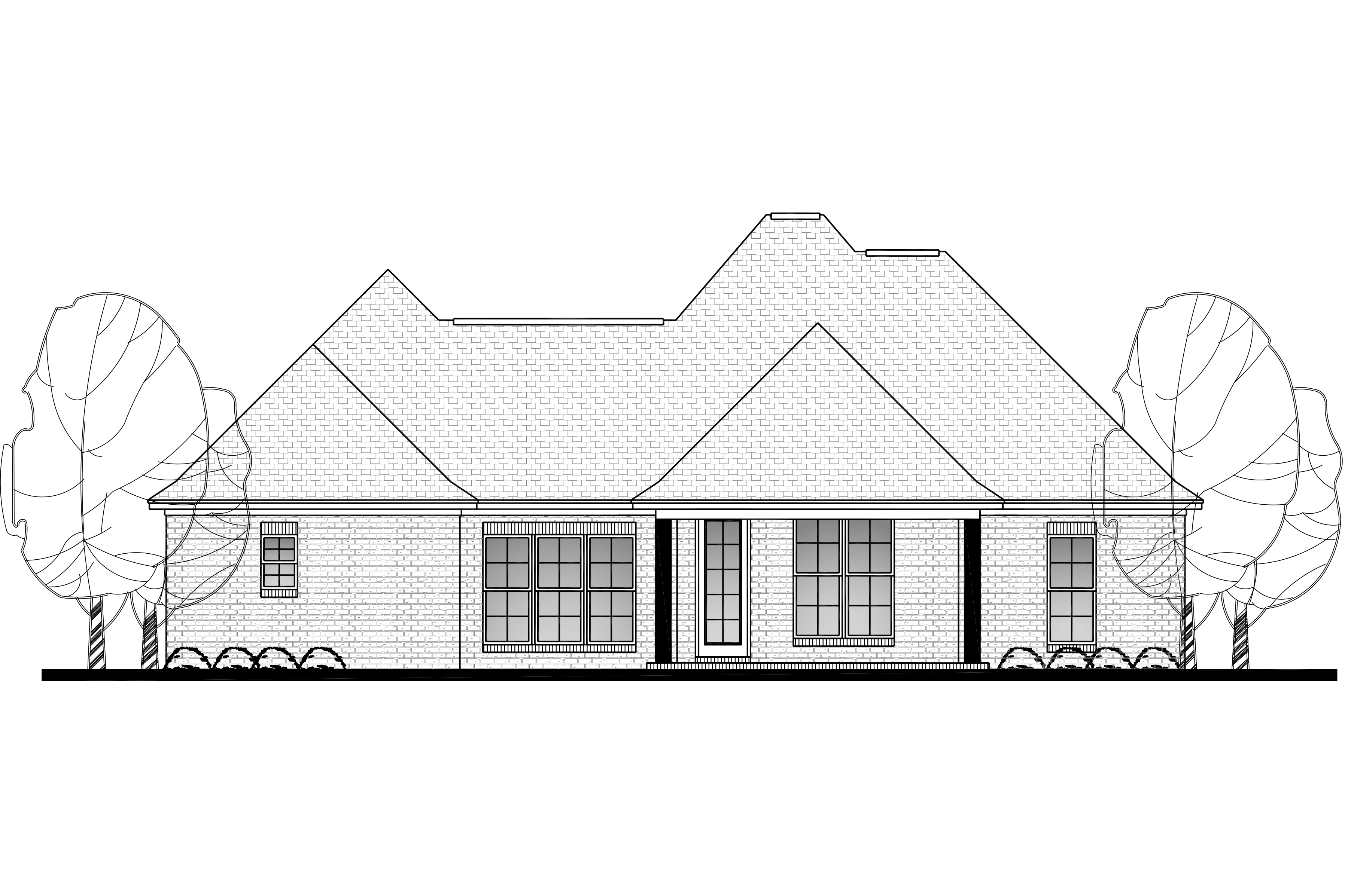
This gorgeous Acadian style home with French country influences (House Plan #142-1124) has 1937 square feet of living space. The one story floor plan includes 3 bedrooms.and two bathrooms. Plus, it is loaded with extras. The painted brick exterior with the arched top door and window give this home great curb appeal. Entering in the spacious double door entry foyer sets the tone in this open plan layout. The oversized great room has a fireplace with cabinets on each side and large windows and a French door leading to the spacious rear outdoor living porch. The large kitchen...
Estimate your costs based on your location and materials.
All sales of house plans, modifications, and other products found on this site are final. No refunds or exchanges can be given once your order has begun the fulfillment process. Please see our Policies for additional information.
All plans offered on ThePlanCollection.com are designed to conform to the local building codes when and where the original plan was drawn.
The homes as shown in photographs and renderings may differ from the actual blueprints. For more detailed information, please review the floor plan images herein carefully.
Estimate your costs based on your location and materials.