3-Bedroom, 1991 Sq Ft Country Cottage with Private Study

Front elevation of Ranch home (ThePlanCollection: House Plan #117-1056)

Images/Plans copyrighted by designer. Photos may reflect homeowner modifications.

About House Plan #117-1056

Sq Ft
1991
Sq Ft
Bedrooms
3
Bedrooms
Bathroom
2
Baths
Half Baths
1
Half Baths
Bedrooms
2
Cars
Bedrooms
1
Stories
Bedrooms
60' 0'
Width
Bedrooms
57
Depth
Starting at$1095.00What's included
STEP 1Bedrooms
STEP 2Bedrooms
STEP 3Bedrooms

Subtotal:$0
Plan Collection

How much will it cost to build?

Estimate your costs based on your location and materials.

Free Cost Instant Estimator

Floor Plans

Main Floor Plan
Main Floor Plan
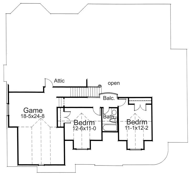
Bonus Room
Bonus Room
Bonus Room
Bonus Room
Plan Collection

Can I modify this plan?

Yes! This plan can be customized—contact us for a free quote.

Additional Notes from Designer

There is an optional layout for the bonus room/attic space, which includes two additional bedrooms and an additional bathroom (see floor plan).

House Plan Description

This is a great single-story house with 1991 total square feet. Some of the special features of this home plan include:

  • Covered front and rear porches
  • Open Family/Kitchen/Nook areas
  • Island Kitchen/breakfast bar
  • Master suite with spacious bath and walk-in closet
  • Bonus attic space for future use (see optional floor plan layout for a second floor)
  • Study/home office/optional bedroom
  • Jack and Jill bath between bedrooms #2 and #3

Home Details

Summary
Plan #:117-1056
Starting at:$1095.00
Floors:1
Bedrooms:3
Full Baths:2
Half Baths:1
Garage:
Square Footage
Heated Area:1991 Sq. Ft.
First Floor:1991 Sq. Ft.
Unheated Area:
Dimensions
Depth:57' 6''
Ridge Height:26' 0''
Architectural Styles
Special Feature
FireplaceDining RoomHome OfficeMain Level LaundryOpen Floor Plan
Garage Type
Attached GarageSide Entry
Fireplaces
Four Fireplaces
Exterior Wall Framing
2x4
Kitchen Features
Nook/Breakfast AreaWalk-in PantryPeninsula/Eating Bar
Porches and Exterior Features
Covered Front PorchCovered Rear PorchSundeck
Master Suite Features
Main Floor MasterMaster BathroomWalk In ClosetSplit Master Bedroom

What’s Included

Most plan sets include the following:

icon text-secondary-400 includedDetailed floor plans

icon text-secondary-400 includedExterior elevations

icon text-secondary-400 includedCabinet elevations

icon text-secondary-400 includedSections/Details

icon text-secondary-400 includedFraming plans

icon text-secondary-400 includedFoundation plans

icon text-secondary-400 includedElectrical layout

What’s Not Included

These items are  NOT included:

icon text-secondary-400 includedArchitectural or Engineering Stamp - handled locally if required.

icon text-secondary-400 includedSite Plan - handled locally when required.

icon text-secondary-400 includedMechanical Drawings (location of heating and air equipment and ductwork) - your subcontractors handle this.

icon text-secondary-400 includedPlumbing Drawings (drawings showing the actual plumbing pipe sizes and locations) - your subcontractors handle this.

icon text-secondary-400 includedEnergy calculations - handled locally when required.

Related House Plans

Plan Collection
Plan Collection
Plan Collection
Plan#117-1092
Starting at$1095
2091
Sq Ft
1
Story
3
Bed
2.5
Bath
2
Car
Plan Collection
Plan Collection
Plan Collection
Plan#106-1276
Starting at$1295
2344
Sq Ft
1
Story
3
Bed
2.5
Bath
2
Car
Plan Collection
Plan Collection
Plan Collection
Plan#141-1243
Starting at$1485
1640
Sq Ft
1
Story
3
Bed
2
Bath
2
Car
View All

Other Plans By This Designer

Plan Collection
Plan Collection
Plan Collection
Plan#117-1141
Starting at$895
1742
Sq Ft
1.5
Story
3
Bed
2.5
Bath
2
Car
Plan Collection
Plan Collection
Plan Collection
Plan#117-1104
Starting at$895
1421
Sq Ft
2
Story
3
Bed
2
Bath
2
Car
Plan Collection
Plan Collection
Plan Collection
Plan#117-1095
Starting at$1095
1879
Sq Ft
1
Story
3
Bed
2
Bath
2
Car