3-Bedroom, 1992 Sq Ft Country Plan with Grilling Porch

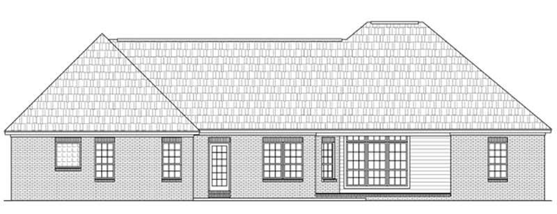
Front elevation of Country home (ThePlanCollection: House Plan #141-1011)

Images/Plans copyrighted by designer. Photos may reflect homeowner modifications.

About House Plan #141-1011

Sq Ft
1992
Sq Ft
Bedrooms
3
Bedrooms
Bathroom
2
Baths
Half Baths
1
Half Baths
Bedrooms
2
Cars
Bedrooms
1
Stories
Bedrooms
72' 0'
Width
Bedrooms
48
Depth
Starting at$1485.00What's included
STEP 1Bedrooms
STEP 2Bedrooms
STEP 3Bedrooms

Subtotal:$0
Plan Collection

How much will it cost to build?

Estimate your costs based on your location and materials.

Free Cost Instant Estimator

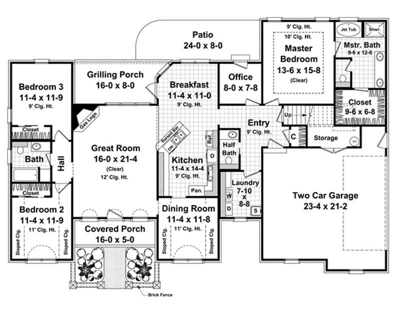
Floor Plans

MAIN FLOOR PLAN
MAIN FLOOR PLAN
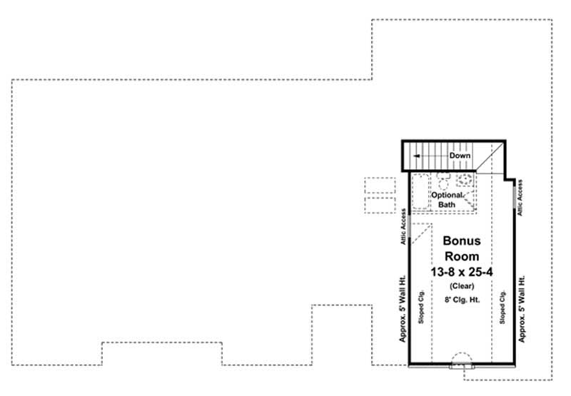
SECOND FLOOR PLAN
SECOND FLOOR PLAN
Plan Collection

Can I modify this plan?

Yes! This plan can be customized—contact us for a free quote.

Additional Notes from Designer

Please Note! This designer does NOT ship paper copies to Canada. Please order your plans in electronic format (PDF or CAD)! USDA Approval is available for this plan. If interested, submit a modification request for a free quote. What is USDA Approval? Certification that a particular house plan meets the housing requirements of the US Department of Agriculture's Rural Housing Service. This is one of the requirements if you intend to apply for a loan through the Rural Housing Service.

House Plan Description

This home offers a very functional split floorplan layout. The great room features 12-foot ceilings, cozy fireplace with gas logs, and welcoming transoms above the windows. Excellent views of the great room and back yard from kitchen. The expansive and well-appointed master suite includes a large walk-in closet, an oversized jet tub, separate shower, compartmentalized toilet and dual vanities. Other key features of the home include a home office, large utility room, wet wear closet, and large 2 car garage with separate storage. The optional bonus room provides an excellent space for a...

Home Details

Summary
Plan #:141-1011
Starting at:$1485.00
Floors:1
Bedrooms:3
Full Baths:2
Half Baths:1
Garage:
Square Footage
Heated Area:1992 Sq. Ft.
First Floor:1992 Sq. Ft.
Unheated Area:
Bonus Room:428 Sq. Ft.
Dimensions
Ridge Height:23' 0''
Architectural Styles
Exterior Wall Material
Aluminum SidingVinyl SidingBrickWood Siding
Roofing Type
GableHip
Roof Pitch
12/1210/12
Ceiling Height
9 Foot Ceiling
Special Feature
FireplaceHome OfficeBonus RoomMain Level LaundryEnergy Efficient
Garage Type
Attached GarageSide Entry
Fireplaces
One Fireplace
Porches and Exterior Features
Covered Front PorchCovered Rear PorchPatio
Master Suite Features
Main Floor MasterMaster BathroomWalk In ClosetSplit Master Bedroom

What’s Included

Most plan sets include the following:

icon text-secondary-400 includedCover page with rendering

icon text-secondary-400 includedfoundation plan with typical details

icon text-secondary-400 includedfloor plans with ceiling framing notes

icon text-secondary-400 includedfour exterior views of exterior

icon text-secondary-400 includedroof plan, and rafter layout plan

icon text-secondary-400 includedfull cross section through house, and typical wall sections

icon text-secondary-400 includedstair section (if there are stairs)

icon text-secondary-400 includedBonus room/garage section if there is a bonus room/garage

icon text-secondary-400 includedInterior cabinet drawings

icon text-secondary-400 includedMisc. structural details

icon text-secondary-400 includedElectrical plan with lighting, outlets, switches, etc..

What’s Not Included

These items are  NOT included:

icon text-secondary-400 includedArchitectural or Engineering Stamp - handled locally if required.

icon text-secondary-400 includedSite Plan - handled locally when required.

icon text-secondary-400 includedMechanical Drawings (location of heating and air equipment and ductwork) - your subcontractors handle this.

icon text-secondary-400 includedPlumbing Drawings (drawings showing the actual plumbing pipe sizes and locations) - your subcontractors handle this.

icon text-secondary-400 includedEnergy calculations - handled locally when required.

Related House Plans

Plan Collection
Plan Collection
Plan Collection
Plan#117-1092
Starting at$1095
2091
Sq Ft
1
Story
3
Bed
2.5
Bath
2
Car
Plan Collection
Plan Collection
Plan Collection
Plan#141-1243
Starting at$1485
1640
Sq Ft
1
Story
3
Bed
2
Bath
2
Car
Plan Collection
Plan Collection
Plan Collection
Plan#142-1082
Starting at$1295
1834
Sq Ft
1
Story
3
Bed
2
Bath
2
Car
View All

Other Plans By This Designer

Plan Collection
Plan Collection
Plan Collection
Plan#141-1324
Starting at$1205
872
Sq Ft
1
Story
1
Bed
1.5
Bath
0
Car
Plan Collection
Plan Collection
Plan Collection
Plan#141-1166
Starting at$1485
1751
Sq Ft
1
Story
3
Bed
2
Bath
2
Car
Plan Collection
Plan Collection
Plan Collection
Plan#141-1319
Starting at$1485
1832
Sq Ft
1
Story
3
Bed
2
Bath
2
Car