3-Bedroom, 2001 Sq Ft European Plan with Walk In Closet

Main image for house plan # 5996

Images/Plans copyrighted by designer. Photos may reflect homeowner modifications.

About House Plan #113-1020

Sq Ft
2001
Sq Ft
Bedrooms
3
Bedrooms
Bathroom
2
Baths
Half Baths
0
Half Baths
Bedrooms
2
Cars
Bedrooms
1
Stories
Bedrooms
59' 0'
Width
Bedrooms
74
Depth
Starting at$525.00What's included
STEP 1Bedrooms
STEP 2Bedrooms
STEP 3Bedrooms

Subtotal:$0
Plan Collection

How much will it cost to build?

Estimate your costs based on your location and materials.

Free Cost Instant Estimator

Floor Plans

Main Floor Plan
Main Floor Plan
Plan Collection

Can I modify this plan?

Yes! This plan can be customized—contact us for a free quote.

House Plan Description

This excellent house plan has three bedrooms, two baths, and attached inner side-entry garage. Front Entry way leads in to foyer and spacious living room with corner fireplace. Two bedrooms line right side of house. Formal dining room leads into convenient central hallway-style kitchen and eating area. Master bedroom on opposite end of house of other bedrooms. Rear porch.

Home Details

Summary
Plan #:113-1020
Starting at:$525.00
Floors:1
Bedrooms:3
Full Baths:2
Half Baths:0
Garage:
Square Footage
Heated Area:2001 Sq. Ft.
First Floor:2001 Sq. Ft.
Unheated Area:
Bonus Room:300 Sq. Ft.
Dimensions
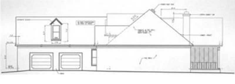
Ridge Height:25' 0''
Architectural Styles
Exterior Wall Material
BrickStucco
Roofing Type
Hip
Roof Pitch
10/12
Ceiling Height
9 Foot Ceiling
Special Feature
FireplaceDining Room
Garage Type
Attached Garage
Fireplaces
One Fireplace
Exterior Wall Framing
2x4

What’s Included

Most plan sets include the following:

icon text-secondary-400 includedInformation Cover Sheet

icon text-secondary-400 includedFoundation Plan

icon text-secondary-400 includedDetailed Floor Plans

icon text-secondary-400 includedWindow & Door Schedules

icon text-secondary-400 includedElectrical Layout

icon text-secondary-400 includedExterior Elevations

icon text-secondary-400 includedBuilding Sections

icon text-secondary-400 includedComplete Construction Details

What’s Not Included

These items are  NOT included:

icon text-secondary-400 includedArchitectural or Engineering Stamp - handled locally if required.

icon text-secondary-400 includedSite Plan - handled locally when required.

icon text-secondary-400 includedMechanical Drawings (location of heating and air equipment and ductwork) - your subcontractors handle this.

icon text-secondary-400 includedPlumbing Drawings (drawings showing the actual plumbing pipe sizes and locations) - your subcontractors handle this.

icon text-secondary-400 includedEnergy calculations - handled locally when required.

Related House Plans

Plan Collection
Plan Collection
Plan Collection
Plan#142-1075
Starting at$1295
1769
Sq Ft
1
Story
3
Bed
2
Bath
2
Car
Plan Collection
Plan Collection
Plan Collection
Plan#142-1049
Starting at$1295
1600
Sq Ft
1
Story
3
Bed
2
Bath
2
Car
Plan Collection
Plan Collection
Plan Collection
Plan#142-1023
Starting at$1295
1800
Sq Ft
1
Story
3
Bed
2
Bath
2
Car
View All

Other Plans By This Designer

Plan Collection
Plan Collection
Plan Collection
Plan#113-1060
Starting at$325
1719
Sq Ft
1
Story
3
Bed
2
Bath
2
Car
Plan Collection
Plan Collection
Plan Collection
Plan#113-1083
Starting at$400
3450
Sq Ft
2
Story
4
Bed
3
Bath
3
Car
Plan Collection
Plan Collection
Plan Collection
Plan#113-1063
Starting at$350
1835
Sq Ft
1
Story
3
Bed
2
Bath
2
Car