3-Bedroom, 2048 Sq Ft Lake Plan with with Second Floor Master

Front elevation of Lake home (ThePlanCollection: House Plan #123-1005)

Images/Plans copyrighted by designer. Photos may reflect homeowner modifications.

About House Plan #123-1005

Sq Ft
2048
Sq Ft
Bedrooms
3
Bedrooms
Bathroom
2
Baths
Half Baths
1
Half Baths
Bedrooms
2
Cars
Bedrooms
1
Stories
Bedrooms
65' 0'
Width
Bedrooms
80
Depth
Starting at$1050.00What's included
STEP 1Bedrooms
STEP 2Bedrooms
STEP 3Bedrooms

Subtotal:$0
Plan Collection

How much will it cost to build?

Estimate your costs based on your location and materials.

Free Cost Instant Estimator

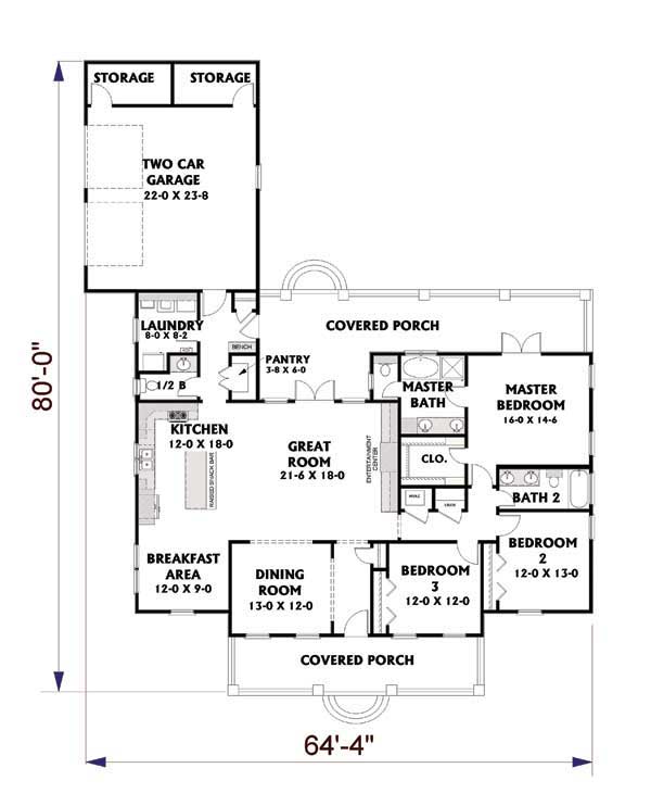
Floor Plans

Floor Plan First Story
Floor Plan First Story
Plan Collection

Can I modify this plan?

Yes! This plan can be customized—contact us for a free quote.

Additional Notes from Designer

PLEASE NOTE! When ordering options such as an optional foundation, RRR or 2x4 or 2x6 conversions, the designer may require an additional 2-5 business days to create it. Please keep this in mind when ordering.

House Plan Description

This Lake house plan is very open and spacious. Enter the Great Room complete with built-in entertainment center and french doors that lead out onto the rear covered porch. The Kitchen is completely open with a large island and a raised snack bar. There are plenty of cabinets and countertops for storage. The Breakfast Area is located in the front of the house and adorned with windows that allow plenty of sunlight to start the day. The formal Dining Room is tucked up front and has grand arched openings. Just off the kitchen down the rear hall is a huge walk-in pantry with...

Home Details

Summary
Plan #:123-1005
Starting at:$1050.00
Floors:1
Bedrooms:3
Full Baths:2
Half Baths:1
Garage:
Square Footage
Heated Area:2048 Sq. Ft.
First Floor:2048 Sq. Ft.
Unheated Area:
Dimensions
Ridge Height:23' 0''
Architectural Styles
Exterior Wall Material
BrickWood Siding
Roofing Type
Gable/Dormer
Roofing Material
Asphalt Shingles
Roof Pitch
8/12
Ceiling Height
9 Foot Ceiling
Special Feature
Mother in law apartmentDining RoomMud RoomMain Level LaundrySplit BathroomStorage
Garage Type
Attached GarageSide Entry
Exterior Wall Framing
2x4
Kitchen Features
Kitchen IslandNook/Breakfast AreaWalk-in PantryPeninsula/Eating BarEat-In Kitchen
Porches and Exterior Features
Covered Front PorchCovered Rear Porch
Master Suite Features
Main Floor MasterMaster BathroomWalk In Closet

What’s Included

Most plan sets include the following:

icon text-secondary-400 includedFloor plans - Included with your plans will be a detailed floor plan at 1/4" scale with a window and door schedule.

icon text-secondary-400 includedFoundation

icon text-secondary-400 includedElectrical Layout

icon text-secondary-400 includedExterior and Interior Elevations

icon text-secondary-400 includedBuilding Sections

icon text-secondary-400 includedDetails and Typical Specifications

icon text-secondary-400 includedSheet

What’s Not Included

These items are  NOT included:

icon text-secondary-400 includedArchitectural or Engineering Stamp - handled locally if required.

icon text-secondary-400 includedSite Plan - handled locally when required.

icon text-secondary-400 includedMechanical Drawings (location of heating and air equipment and ductwork) - your subcontractors handle this.

icon text-secondary-400 includedPlumbing Drawings (drawings showing the actual plumbing pipe sizes and locations) - your subcontractors handle this.

icon text-secondary-400 includedEnergy calculations - handled locally when required.

Related House Plans

Plan Collection
Plan Collection
Plan Collection
Plan#117-1092
Starting at$1095
2091
Sq Ft
1
Story
3
Bed
2.5
Bath
2
Car
Plan Collection
Plan Collection
Plan Collection
Plan#141-1243
Starting at$1485
1640
Sq Ft
1
Story
3
Bed
2
Bath
2
Car
Plan Collection
Plan Collection
Plan Collection
Plan#142-1082
Starting at$1295
1834
Sq Ft
1
Story
3
Bed
2
Bath
2
Car
View All

Other Plans By This Designer

Plan Collection
Plan Collection
Plan Collection
Plan#123-1112
Starting at$980
1611
Sq Ft
1
Story
3
Bed
2
Bath
2
Car
Plan Collection
Plan Collection
Plan Collection
Plan#123-1100
Starting at$850
1311
Sq Ft
1
Story
3
Bed
2
Bath
0
Car
Plan Collection
Plan Collection
Plan Collection
Plan#123-1116
Starting at$850
1035
Sq Ft
1
Story
3
Bed
2
Bath
0
Car