3-Bedroom, 2090 Sq Ft Ranch Plan w/ Wrap-Around Porch

Front elevation of Ranch home (ThePlanCollection: House Plan #123-1134)

Images/Plans copyrighted by designer. Photos may reflect homeowner modifications.

About House Plan #123-1134

Sq Ft
2090
Sq Ft
Bedrooms
3
Bedrooms
Bathroom
2
Baths
Half Baths
0
Half Baths
Bedrooms
0
Cars
Bedrooms
1
Stories
Bedrooms
76' 4'
Width
Bedrooms
54
Depth
Starting at$1050.00What's included
STEP 1Bedrooms
STEP 2Bedrooms
STEP 3Bedrooms

Subtotal:$0
Plan Collection

How much will it cost to build?

Estimate your costs based on your location and materials.

Free Cost Instant Estimator

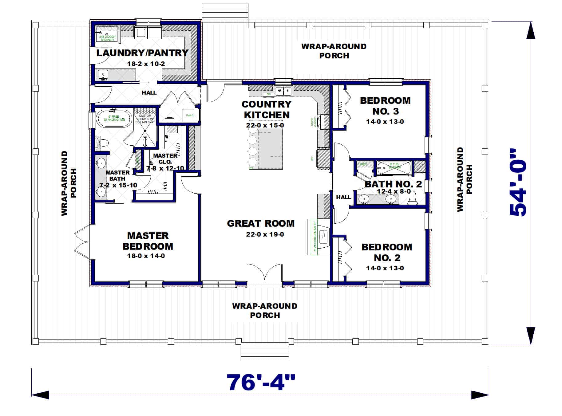
Floor Plans

Main Level
Main Level
Plan Collection

Can I modify this plan?

Yes! This plan can be customized—contact us for a free quote.

Additional Notes from Designer

PLEASE NOTE! When ordering options such as an optional foundation, RRR or 2x4 or 2x6 conversions, the designer may require an additional 2-5 business days to create it. Please keep this in mind when ordering.

House Plan Description

You will love coming home every day to this gorgeous ranch with three bedrooms, 2 baths, and a fantastic 10' wrap-around porch. If that's not enough, you can also enjoy these other amenities:

  • Huge Kitchen with Center Island 
  • Walk-in Pantry
  • Split Bedroom Layout
  • Large Laundry Room with Doggy Shower

Home Details

Summary
Plan #:123-1134
Starting at:$1050.00
Floors:1
Bedrooms:3
Full Baths:2
Half Baths:0
Garage:
Square Footage
Heated Area:2090 Sq. Ft.
First Floor:2090 Sq. Ft.
Unheated Area:
Porch:2033 Sq. Ft.
Dimensions
Width:76' 4''
Architectural Styles
Exterior Wall Material
BrickBoard and Batten
Roofing Type
Dutch Gable
Roofing Material
Metal
Roof Pitch
12/128/12
Ceiling Height
9 Foot Ceiling
Special Feature
FireplaceMain Level LaundryOpen Floor Plan
Fireplaces
One Fireplace
Exterior Wall Framing
2x6
Building Lot Type
Flat SiteCorner Lot
Kitchen Features
Kitchen IslandWalk-in Pantry
Porches and Exterior Features
Wrap Around Porch
Master Suite Features
Main Floor MasterMaster BathroomWalk In Closet

What’s Included

Most plan sets include the following:

icon text-secondary-400 includedFloor plans - Included with your plans will be a detailed floor plan at 1/4" scale with a window and door schedule.

icon text-secondary-400 includedFoundation

icon text-secondary-400 includedElectrical Layout

icon text-secondary-400 includedExterior and Interior Elevations

icon text-secondary-400 includedBuilding Sections

icon text-secondary-400 includedDetails and Typical Specifications

icon text-secondary-400 includedSheet

What’s Not Included

These items are  NOT included:

icon text-secondary-400 includedArchitectural or Engineering Stamp - handled locally if required.

icon text-secondary-400 includedSite Plan - handled locally when required.

icon text-secondary-400 includedMechanical Drawings (location of heating and air equipment and ductwork) - your subcontractors handle this.

icon text-secondary-400 includedPlumbing Drawings (drawings showing the actual plumbing pipe sizes and locations) - your subcontractors handle this.

icon text-secondary-400 includedEnergy calculations - handled locally when required.

Related House Plans

Plan Collection
Plan Collection
Plan Collection
Plan#123-1114
Starting at$1050
2090
Sq Ft
1
Story
3
Bed
2
Bath
2
Car
View All

Other Plans By This Designer

Plan Collection
Plan Collection
Plan Collection
Plan#123-1112
Starting at$980
1611
Sq Ft
1
Story
3
Bed
2
Bath
2
Car
Plan Collection
Plan Collection
Plan Collection
Plan#123-1100
Starting at$850
1311
Sq Ft
1
Story
3
Bed
2
Bath
0
Car
Plan Collection
Plan Collection
Plan Collection
Plan#123-1116
Starting at$850
1035
Sq Ft
1
Story
3
Bed
2
Bath
0
Car