3-Bedroom, 2095 Sq Ft Traditional Plan with Main Floor Master

Traditional home plan (ThePlanCollection: House Plan #196-1085)

Images/Plans copyrighted by designer. Photos may reflect homeowner modifications.

About House Plan #196-1085

Sq Ft
2095
Sq Ft
Bedrooms
3
Bedrooms
Bathroom
2
Baths
Half Baths
1
Half Baths
Bedrooms
3
Cars
Bedrooms
1
Stories
Bedrooms
66' 0'
Width
Bedrooms
74
Depth
Starting at$1325.00What's included
STEP 1Bedrooms
STEP 2Bedrooms
STEP 3Bedrooms

Subtotal:$0
Plan Collection

How much will it cost to build?

Estimate your costs based on your location and materials.

Free Cost Instant Estimator

Floor Plans

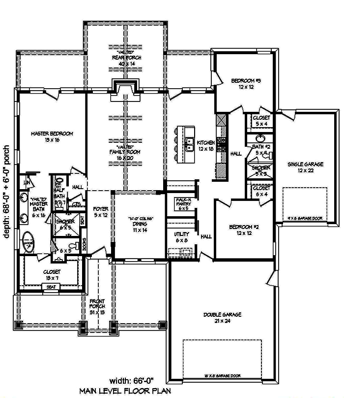
Floor Plan Main Level
Floor Plan Main Level
Plan Collection

Can I modify this plan?

Yes! This plan can be customized—contact us for a free quote.

Additional Notes from Designer

NOTE FROM DESIGNER REGARDING PLAN PURCHASES: 80% of a 5 set purchase price can be applied to any PDF or CAD license upgrade. Additionally, 80% of PDF Study purchase price can be applied to any CAD or PDF license upgrade.

House Plan Description

This lovely Traditional style home plan with Craftsman influences (House Plan #196-1085) has 2095 square feet of living space. The 1 story floor plan includes 3 bedrooms.

Home Details

Summary
Plan #:196-1085
Starting at:$1325.00
Floors:1
Bedrooms:3
Full Baths:2
Half Baths:1
Garage:
Square Footage
Heated Area:2095 Sq. Ft.
First Floor:2095 Sq. Ft.
Unheated Area:
Garage:861 Sq. Ft.
Porch:711 Sq. Ft.
Dimensions
Architectural Styles
Exterior Wall Material
Vinyl SidingRock/StoneWood Siding
Roofing Type
Gable/Dormer
Roofing Material
Asphalt Shingles
Roof Pitch
6/128/12
Ceiling Height
9 Foot Ceiling
Special Feature
FireplaceDining RoomFamily RoomMain Level LaundryVaulted CeilingsOpen Floor Plan
Garage Type
Attached GarageFront Entry
Fireplaces
One Fireplace
Exterior Wall Framing
2x6
Kitchen Features
Kitchen IslandWalk-in PantryPeninsula/Eating Bar
Porches and Exterior Features
Covered Front PorchCovered Rear Porch
Master Suite Features
Main Floor MasterMaster BathroomWalk In ClosetSplit Master Bedroom

What’s Included

Most plan sets include the following:

What’s Not Included

These items are  NOT included:

Related House Plans

Plan Collection
Plan Collection
Plan Collection
Plan#142-1168
Starting at$1395
2597
Sq Ft
1
Story
3
Bed
2.5
Bath
2
Car
Plan Collection
Plan Collection
Plan Collection
Plan#117-1092
Starting at$1095
2091
Sq Ft
1
Story
3
Bed
2.5
Bath
2
Car
Plan Collection
Plan Collection
Plan Collection
Plan#106-1276
Starting at$1295
2344
Sq Ft
1
Story
3
Bed
2.5
Bath
2
Car
View All

Other Plans By This Designer

Plan Collection
Plan Collection
Plan Collection
Plan#196-1211
Starting at$695
650
Sq Ft
2
Story
1
Bed
1
Bath
2
Car
Plan Collection
Plan Collection
Plan Collection
Plan#196-1196
Starting at$810
1500
Sq Ft
1
Story
2
Bed
2
Bath
3
Car
Plan Collection
Plan Collection
Plan Collection
Plan#196-1216
Starting at$845
1727
Sq Ft
2
Story
2
Bed
2
Bath
2
Car