3-Bedroom, 2107 Sq Ft Cape Cod Plan with Covered Rear Porch

Front view of Contemporary home (ThePlanCollection: House Plan #146-2039)

Images/Plans copyrighted by designer. Photos may reflect homeowner modifications.

About House Plan #146-2039

Sq Ft
2107
Sq Ft
Bedrooms
3
Bedrooms
Bathroom
2
Baths
Half Baths
1
Half Baths
Bedrooms
2
Cars
Bedrooms
2
Stories
Bedrooms
62' 0'
Width
Bedrooms
48
Depth
Starting at$1015.00What's included
STEP 1Bedrooms
STEP 2Bedrooms
STEP 3Bedrooms

Subtotal:$0
Plan Collection

How much will it cost to build?

Estimate your costs based on your location and materials.

Free Cost Instant Estimator

Floor Plans

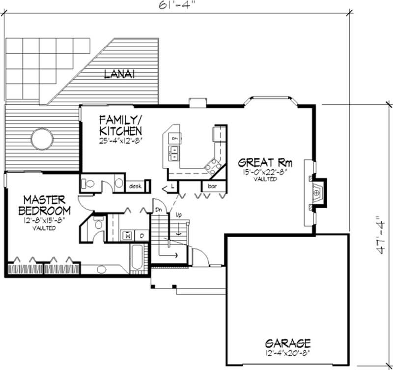
Main Level
Main Level
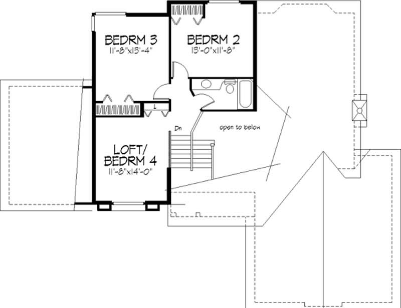
Upper Level
Upper Level
Plan Collection

Can I modify this plan?

Yes! This plan can be customized—contact us for a free quote.

House Plan Description

This home provides two comfortable living spaces for the family on the first floor. The vaulted Great Room with a bayed space for a table is oriented toward the rear. The family and dining/kitchen are made for shared everyday activities.

Home Details

Summary
Plan #:146-2039
Starting at:$1015.00
Floors:2
Bedrooms:3
Full Baths:2
Half Baths:1
Garage:
Square Footage
Heated Area:2107 Sq. Ft.
First Floor:1443 Sq. Ft.
Second Floor:664 Sq. Ft.
Unheated Area:
Basement:1443 Sq. Ft.
Dimensions
Ridge Height:25-0' 0''
Architectural Styles
Exterior Wall Material
Wood Siding
Roofing Type
Gable
Garage Type
Attached GarageFront Entry
Fireplaces
One Fireplace
Exterior Wall Framing
2x4

What’s Included

Most plan sets include the following:

What’s Not Included

These items are  NOT included:

icon text-secondary-400 includedArchitectural or Engineering Stamp - handled locally if required.

icon text-secondary-400 includedSite Plan - handled locally when required.

icon text-secondary-400 includedMechanical Drawings (location of heating and air equipment and ductwork) - your subcontractors handle this.

icon text-secondary-400 includedPlumbing Drawings (drawings showing the actual plumbing pipe sizes and locations) - your subcontractors handle this.

icon text-secondary-400 includedEnergy calculations - handled locally when required.

Related House Plans

Plan Collection
Plan Collection
Plan Collection
Plan#126-1297
Starting at$1715
2257
Sq Ft
2
Story
3
Bed
2.5
Bath
2
Car
Plan Collection
Plan Collection
Plan Collection
Plan#169-1146
Starting at$720
1664
Sq Ft
2
Story
3
Bed
2.5
Bath
2
Car
Plan Collection
Plan Collection
Plan Collection
Plan#116-1007
Starting at$0
1586
Sq Ft
2
Story
3
Bed
2.5
Bath
0
Car
View All

Other Plans By This Designer

Plan Collection
Plan Collection
Plan Collection
Plan#146-2806
Starting at$980
1933
Sq Ft
2
Story
3
Bed
2
Bath
0
Car
Plan Collection
Plan Collection
Plan Collection
Plan#146-2810
Starting at$1285
3594
Sq Ft
2
Story
4
Bed
3.5
Bath
2
Car
Plan Collection
Plan Collection
Plan Collection
Plan#146-1917
Starting at$1120
2525
Sq Ft
2
Story
4
Bed
2.5
Bath
3
Car