4-Bedroom, 2107 Sq Ft Southern Plan with Peninsula/Eating Bar

Main image for house plan # 17630

Images/Plans copyrighted by designer. Photos may reflect homeowner modifications.

About House Plan #153-1915

Sq Ft
2107
Sq Ft
Bedrooms
4
Bedrooms
Bathroom
2
Baths
Half Baths
0
Half Baths
Bedrooms
2
Cars
Bedrooms
1
Stories
Bedrooms
64' 8'
Width
Bedrooms
62
Depth
Starting at$1100.00What's included
STEP 1Bedrooms
STEP 2Bedrooms
STEP 3Bedrooms

Subtotal:$0
Plan Collection

How much will it cost to build?

Estimate your costs based on your location and materials.

Free Cost Instant Estimator

Floor Plans

FLOOR PLAN
FLOOR PLAN
Plan Collection

Can I modify this plan?

Yes! This plan can be customized—contact us for a free quote.

Additional Notes from Designer

Plans by this designer do NOT usually come with FRAMING - some plans may have framing available for an extra fee - please contact us to find out about a specific plan & we will check with the designer!! Additionally: For this designer, if you choose optional features such as but not limited to: 2x6 framing, reverse or optional basement, the designer will need an additional 2-5 business days to adjust the plan accordingly. Please keep this in mind when choosing your shipping option. If you would like Express or Priority shipping, the designer will ship the plan to you using the method you choose but you will still have the 2-5 business day waiting period BEFORE they ship! Please feel free to contact us with any questions! PLEASE NOTE: Multi-licenses are available. The plans do not come with ICF specifications. If ICF construction method is desired, the CAD plan can be purchased and then forwarded to the ICF dealer and they’ll do a takeoff to assist with that specific projec

House Plan Description

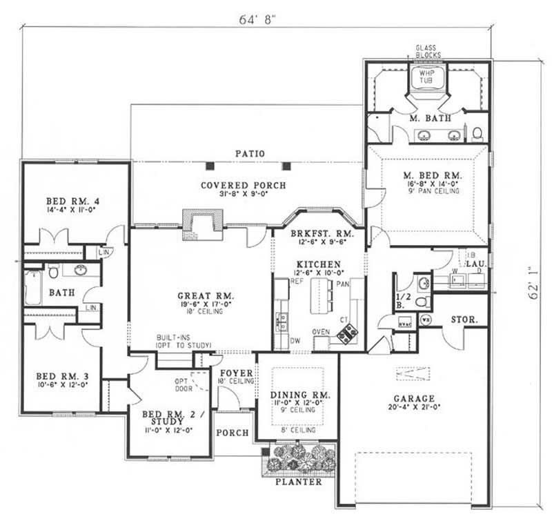
Imagine welcoming guests into this split bedroom home. The spacious dining room of this house plan will be superb for your formal dinner parties followed by coffee in the comfortable great room. The morning sun rays shining through the bay window of the breakfast room is a beautiful beginning to each day. As night falls, your secluded master suite has a private access to the rear porch- perfect for watching the sun set. Rest and relaxation is found in your luxurious master bath with whirlpool tub and his and her walk-in closets provide ample storage space.

Home Details

Summary
Plan #:153-1915
Starting at:$1100.00
Floors:1
Bedrooms:4
Full Baths:2
Half Baths:0
Garage:
Square Footage
Heated Area:2107 Sq. Ft.
First Floor:2107 Sq. Ft.
Unheated Area:
Garage:427 Sq. Ft.
Dimensions
Width:64' 8''
Architectural Styles
Roof Pitch
8/12
Ceiling Height
8 Foot Ceiling
Special Feature
Dining RoomGuest Room
Garage Type
Attached GarageFront Entry
Fireplaces
One Fireplace

What’s Included

Most plan sets include the following:

icon text-secondary-400 included floorplan

icon text-secondary-400 included 4 side exterior elevations,

icon text-secondary-400 included electrical plan,

icon text-secondary-400 included birds-eye view of the roof,

icon text-secondary-400 included foundation plan,

icon text-secondary-400 included and some miscellaneous details. Please Note We do not offer plumbing, HVAC, or window scheduling. This will have to be done on a local level, probably by your building team!

What’s Not Included

These items are  NOT included:

icon text-secondary-400 includedArchitectural or Engineering Stamp - handled locally if required.

icon text-secondary-400 includedSite Plan - handled locally when required.

icon text-secondary-400 includedMechanical Drawings (location of heating and air equipment and ductwork) - your subcontractors handle this.

icon text-secondary-400 includedPlumbing Drawings (drawings showing the actual plumbing pipe sizes and locations) - your subcontractors handle this.

icon text-secondary-400 includedEnergy calculations - handled locally when required.

Related House Plans

Plan Collection
Plan Collection
Plan Collection
Plan#141-1148
Starting at$1570
2200
Sq Ft
1
Story
4
Bed
2.5
Bath
2
Car
Plan Collection
Plan Collection
Plan Collection
Plan#142-1189
Starting at$1395
2589
Sq Ft
1
Story
4
Bed
2.5
Bath
2
Car
Plan Collection
Plan Collection
Plan Collection
Plan#141-1131
Starting at$1530
2204
Sq Ft
1
Story
4
Bed
2.5
Bath
2
Car
View All

Other Plans By This Designer

Plan Collection
Plan Collection
Plan Collection
Plan#153-1432
Starting at$1200
2096
Sq Ft
1
Story
3
Bed
2.5
Bath
3
Car
Plan Collection
Plan Collection
Plan Collection
Plan#153-1744
Starting at$800
1800
Sq Ft
1
Story
3
Bed
2
Bath
2
Car
Plan Collection
Plan Collection
Plan Collection
Plan#153-1608
Starting at$700
1382
Sq Ft
1
Story
3
Bed
2
Bath
2
Car