4-Bedroom, 2112 Sq Ft Ranch Plan with Home Office

Front elevation of Ranch home (ThePlanCollection: House Plan #215-1000)

Images/Plans copyrighted by designer. Photos may reflect homeowner modifications.

About House Plan #215-1000

Sq Ft
2112
Sq Ft
Bedrooms
4
Bedrooms
Bathroom
2
Baths
Half Baths
1
Half Baths
Bedrooms
2
Cars
Bedrooms
1
Stories
Bedrooms
82' 0'
Width
Bedrooms
37
Depth
Starting at$1500.00What's included
STEP 1Bedrooms
STEP 2Bedrooms
STEP 3Bedrooms

Subtotal:$0
Plan Collection

How much will it cost to build?

Estimate your costs based on your location and materials.

Free Cost Instant Estimator

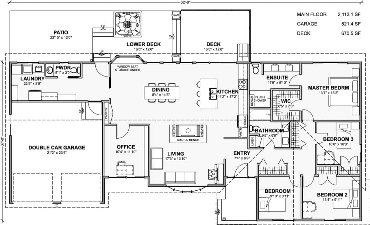
Floor Plans

Main Level
Main Level
Plan Collection

Can I modify this plan?

Yes! This plan can be customized—contact us for a free quote.

Additional Notes from Designer

PDF and CAD files will be emailed. This designer does NOT ship paper copies. 3D model avalable in vwx format. CAD files for this plan will be delivered in native Vectoworks (VWX) and exported into AutoCad (DWG) formats. Modifications to the plans can take 1-2 weeks to complete. All Exterior walls are 2X6 UNO. If adding a custom site plan, a survey in DWG and PDF MUST be supplied, along with the site address.

House Plan Description

This beautiful four-bedroom, 2.5-bath Ranch house plan has plenty of space for the whole family. The spacious open-floor plan is perfect for entertaining friends or family with a kitchen island and large deck. This wonderful home also offers the following amenities:

  • Large Laundry/Mudroom Area
  • Office
  • Master bedroom with huge walk-in closet

Home Details

Summary
Plan #:215-1000
Starting at:$1500.00
Floors:1
Bedrooms:4
Full Baths:2
Half Baths:1
Garage:
Square Footage
Heated Area:2112 Sq. Ft.
First Floor:2112 Sq. Ft.
Unheated Area:
Garage:521 Sq. Ft.
Porch:671 Sq. Ft.
Dimensions
Architectural Styles
Exterior Wall Material
Vinyl SidingFiber Cement ProductBoard and Batten
Roofing Type
Gable
Roof Pitch
4/12
Ceiling Height
8 Foot Ceiling
Special Feature
FireplaceHome OfficeMud RoomMain Level LaundryColor PhotosOpen Floor Plan
Garage Type
Attached Garage
Fireplaces
One Fireplace
Exterior Wall Framing
2x6
Building Lot Type
Flat SiteDown SiteView LotCorner Lot
Kitchen Features
Kitchen Island
Porches and Exterior Features
Covered Front Porch
Master Suite Features
Main Floor MasterMaster BathroomWalk In Closet

What’s Included

Most plan sets include the following:

icon text-secondary-400 includedCover sheet

icon text-secondary-400 includedFloor plans

icon text-secondary-400 includedDrawings and details

icon text-secondary-400 includedExterior view

icon text-secondary-400 includedWall section(s)

icon text-secondary-400 includedBuilding section(s)

icon text-secondary-400 includedElevations

What’s Not Included

These items are  NOT included:

icon text-secondary-400 includedArchitectural or Engineering Stamp - handled locally if required.

icon text-secondary-400 includedSite Plan - handled locally when required.

icon text-secondary-400 includedMechanical Drawings (location of heating and air equipment and ductwork) - your subcontractors handle this.

icon text-secondary-400 includedPlumbing Drawings (drawings showing the actual plumbing pipe sizes and locations) - your subcontractors handle this.

icon text-secondary-400 includedEnergy calculations - handled locally when required.

icon text-secondary-400 includedNo Framing

Related House Plans

Plan Collection
Plan Collection
Plan Collection
Plan#142-1204
Starting at$1345
2373
Sq Ft
1
Story
4
Bed
2.5
Bath
2
Car
Plan Collection
Plan Collection
Plan Collection
Plan#141-1148
Starting at$1570
2200
Sq Ft
1
Story
4
Bed
2.5
Bath
2
Car
Plan Collection
Plan Collection
Plan Collection
Plan#142-1189
Starting at$1395
2589
Sq Ft
1
Story
4
Bed
2.5
Bath
2
Car
View All

Other Plans By This Designer