3-Bedroom, 2240 Sq Ft Contemporary Plan with Nook/Breakfast Area

Main image for house plan # 6555

Images/Plans copyrighted by designer. Photos may reflect homeowner modifications.

About House Plan #129-1020

Sq Ft
2240
Sq Ft
Bedrooms
3
Bedrooms
Bathroom
2
Baths
Half Baths
0
Half Baths
Bedrooms
3
Cars
Bedrooms
1
Stories
Bedrooms
80' 0'
Width
Bedrooms
59
Depth
Starting at$1149.50What's included
STEP 1Bedrooms
STEP 2Bedrooms
STEP 3Bedrooms

Subtotal:$0
Plan Collection

How much will it cost to build?

Estimate your costs based on your location and materials.

Free Cost Instant Estimator

Floor Plans

Main Floor Plan
Main Floor Plan
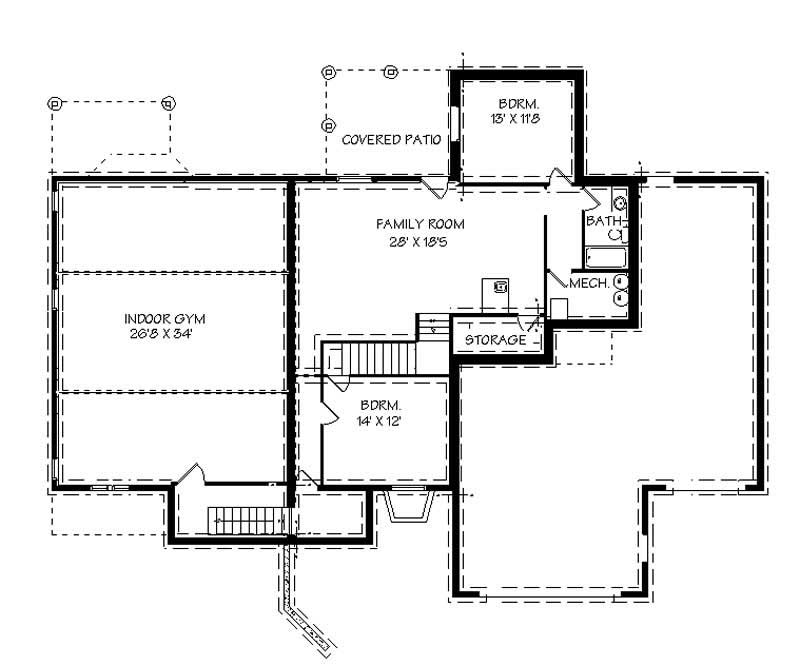
Lower Level Floor Plan
Lower Level Floor Plan
Plan Collection

Can I modify this plan?

Yes! This plan can be customized—contact us for a free quote.

House Plan Description

This is an excellent home with great features for entertaining. You'll love the indoor gym / sports court, large enough to play basketball. No more driving down town to the gym when it 10 below outside. Just walk down your warm stairs! You'll also enjoy the large room sizes covered deck on the main level and covered patio in the basement. Walk out basement, large garage, spacious pantry, mudroom, and large master bedroom closet. Great architectural styling makes this a classic home that you'll enjoy for years to come!

Home Details

Summary
Plan #:129-1020
Starting at:$1149.50
Floors:1
Bedrooms:3
Full Baths:2
Half Baths:0
Garage:
Square Footage
Heated Area:2240 Sq. Ft.
First Floor:2240 Sq. Ft.
Unheated Area:
Basement:2323 Sq. Ft.
Garage:1015 Sq. Ft.
Dimensions
Depth:59' 4''
Ridge Height:23'8' 0''
Architectural Styles
Exterior Wall Material
StuccoRock/StoneShakes
Roofing Type
Gable
Roof Pitch
8/12
Special Feature
In Home Gym
Garage Type
Attached Garage
Exterior Wall Framing
2x6

What’s Included

Most plan sets include the following:

icon text-secondary-400 includedExterior elevations

icon text-secondary-400 includedFloor plans

icon text-secondary-400 includedFraming plans

icon text-secondary-400 includedCross-sections

icon text-secondary-400 includedElectrical layout

What’s Not Included

These items are  NOT included:

icon text-secondary-400 includedArchitectural or Engineering Stamp - handled locally if required.

icon text-secondary-400 includedSite Plan - handled locally when required.

icon text-secondary-400 includedMechanical Drawings (location of heating and air equipment and ductwork) - your subcontractors handle this.

icon text-secondary-400 includedPlumbing Drawings (drawings showing the actual plumbing pipe sizes and locations) - your subcontractors handle this.

icon text-secondary-400 includedEnergy calculations - handled locally when required.

Related House Plans

Plan Collection
Plan Collection
Plan Collection
Plan#142-1168
Starting at$1395
2597
Sq Ft
1
Story
3
Bed
2.5
Bath
2
Car
Plan Collection
Plan Collection
Plan Collection
Plan#117-1092
Starting at$1095
2091
Sq Ft
1
Story
3
Bed
2.5
Bath
2
Car
Plan Collection
Plan Collection
Plan Collection
Plan#142-1082
Starting at$1295
1834
Sq Ft
1
Story
3
Bed
2
Bath
2
Car
View All

Other Plans By This Designer

Plan Collection
Plan Collection
Plan Collection
Plan#129-1046
Starting at$1029
1490
Sq Ft
1
Story
3
Bed
2
Bath
3
Car
Plan Collection
Plan Collection
Plan Collection
Plan#129-1032
Starting at$1150
2318
Sq Ft
2
Story
5
Bed
2.5
Bath
3
Car
Plan Collection
Plan Collection
Plan Collection
Plan#129-1015
Starting at$1029
1035
Sq Ft
1.5
Story
2
Bed
1
Bath
2
Car