3-Bedroom, 2252 Sq Ft Ranch Plan with Walk In Closet

Main image for house plan # 7854

Images/Plans copyrighted by designer. Photos may reflect homeowner modifications.

About House Plan #141-1167

Sq Ft
2252
Sq Ft
Bedrooms
3
Bedrooms
Bathroom
2
Baths
Half Baths
0
Half Baths
Bedrooms
2
Cars
Bedrooms
1
Stories
Bedrooms
74' 0'
Width
Bedrooms
51
Depth
Starting at$1530.00What's included
STEP 1Bedrooms
STEP 2Bedrooms
STEP 3Bedrooms

Subtotal:$0
Plan Collection

How much will it cost to build?

Estimate your costs based on your location and materials.

Free Cost Instant Estimator

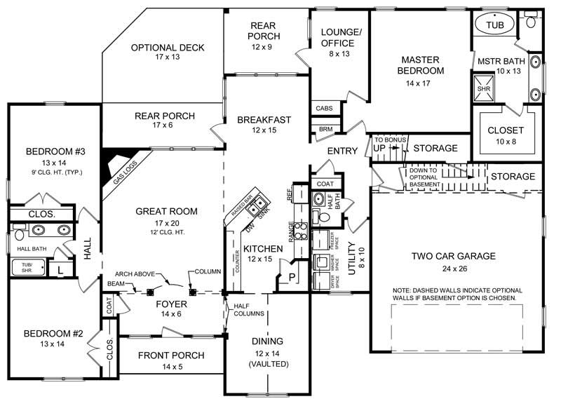
Floor Plans

Floor Plan
Floor Plan
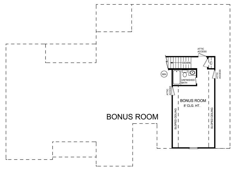
Bonus Floor Plan
Bonus Floor Plan
Plan Collection

Can I modify this plan?

Yes! This plan can be customized—contact us for a free quote.

Additional Notes from Designer

Please Note! This designer does NOT ship paper copies to Canada. Please order your plans in electronic format (PDF or CAD)! USDA Approval is available for this plan. If interested, submit a modification request for a free quote. What is USDA Approval? Certification that a particular house plan meets the housing requirements of the US Department of Agriculture's Rural Housing Service. This is one of the requirements if you intend to apply for a loan through the Rural Housing Service.

House Plan Description

This versatile houseplan offers the features that many have asked for, including a very flexible design that can accommodate 3 or 4 bedrooms and 2 1/2 - 3 1/2 baths. Open plan with split-bedroom arrangement. Large garage with plenty of room for vehicles. Expansive master suite with lounge, jet tub, walk-in shower, and large closet. Large bonus room over the garage for hobbies, children, or grandchildren. Come home to The Ridgewood today!

Home Details

Summary
Plan #:141-1167
Starting at:$1530.00
Floors:1
Bedrooms:3
Full Baths:2
Half Baths:0
Garage:
Square Footage
Heated Area:2252 Sq. Ft.
First Floor:2252 Sq. Ft.
Unheated Area:
Dimensions
Ridge Height:22' 0''
Architectural Styles
Exterior Wall Material
Vinyl SidingBrick
Roofing Type
GableHip
Roof Pitch
8/12
Ceiling Height
9 Foot Ceiling
Special Feature
Bonus RoomEnergy Efficient
Garage Type
Attached Garage
Exterior Wall Framing
2x4

What’s Included

Most plan sets include the following:

icon text-secondary-400 includedCover page with rendering

icon text-secondary-400 includedfoundation plan with typical details

icon text-secondary-400 includedfloor plans with ceiling framing notes

icon text-secondary-400 includedfour exterior views of exterior

icon text-secondary-400 includedroof plan, and rafter layout plan

icon text-secondary-400 includedfull cross section through house, and typical wall sections

icon text-secondary-400 includedstair section (if there are stairs)

icon text-secondary-400 includedBonus room/garage section if there is a bonus room/garage

icon text-secondary-400 includedInterior cabinet drawings

icon text-secondary-400 includedMisc. structural details

icon text-secondary-400 includedElectrical plan with lighting, outlets, switches, etc..

What’s Not Included

These items are  NOT included:

icon text-secondary-400 includedArchitectural or Engineering Stamp - handled locally if required.

icon text-secondary-400 includedSite Plan - handled locally when required.

icon text-secondary-400 includedMechanical Drawings (location of heating and air equipment and ductwork) - your subcontractors handle this.

icon text-secondary-400 includedPlumbing Drawings (drawings showing the actual plumbing pipe sizes and locations) - your subcontractors handle this.

icon text-secondary-400 includedEnergy calculations - handled locally when required.

Related House Plans

Plan Collection
Plan Collection
Plan Collection
Plan#142-1168
Starting at$1395
2597
Sq Ft
1
Story
3
Bed
2.5
Bath
2
Car
Plan Collection
Plan Collection
Plan Collection
Plan#117-1092
Starting at$1095
2091
Sq Ft
1
Story
3
Bed
2.5
Bath
2
Car
Plan Collection
Plan Collection
Plan Collection
Plan#142-1082
Starting at$1295
1834
Sq Ft
1
Story
3
Bed
2
Bath
2
Car
View All

Other Plans By This Designer

Plan Collection
Plan Collection
Plan Collection
Plan#141-1324
Starting at$1205
872
Sq Ft
1
Story
1
Bed
1.5
Bath
0
Car
Plan Collection
Plan Collection
Plan Collection
Plan#141-1166
Starting at$1485
1751
Sq Ft
1
Story
3
Bed
2
Bath
2
Car
Plan Collection
Plan Collection
Plan Collection
Plan#141-1319
Starting at$1485
1832
Sq Ft
1
Story
3
Bed
2
Bath
2
Car