Estimate your costs based on your location and materials.
Yes! This plan can be customized—contact us for a free quote.
Yes! This plan can be customized—contact us for a free quote.
PLEASE NOTE: This designer's 5 sets, 8 sets & CADs all come with a PDF as well.
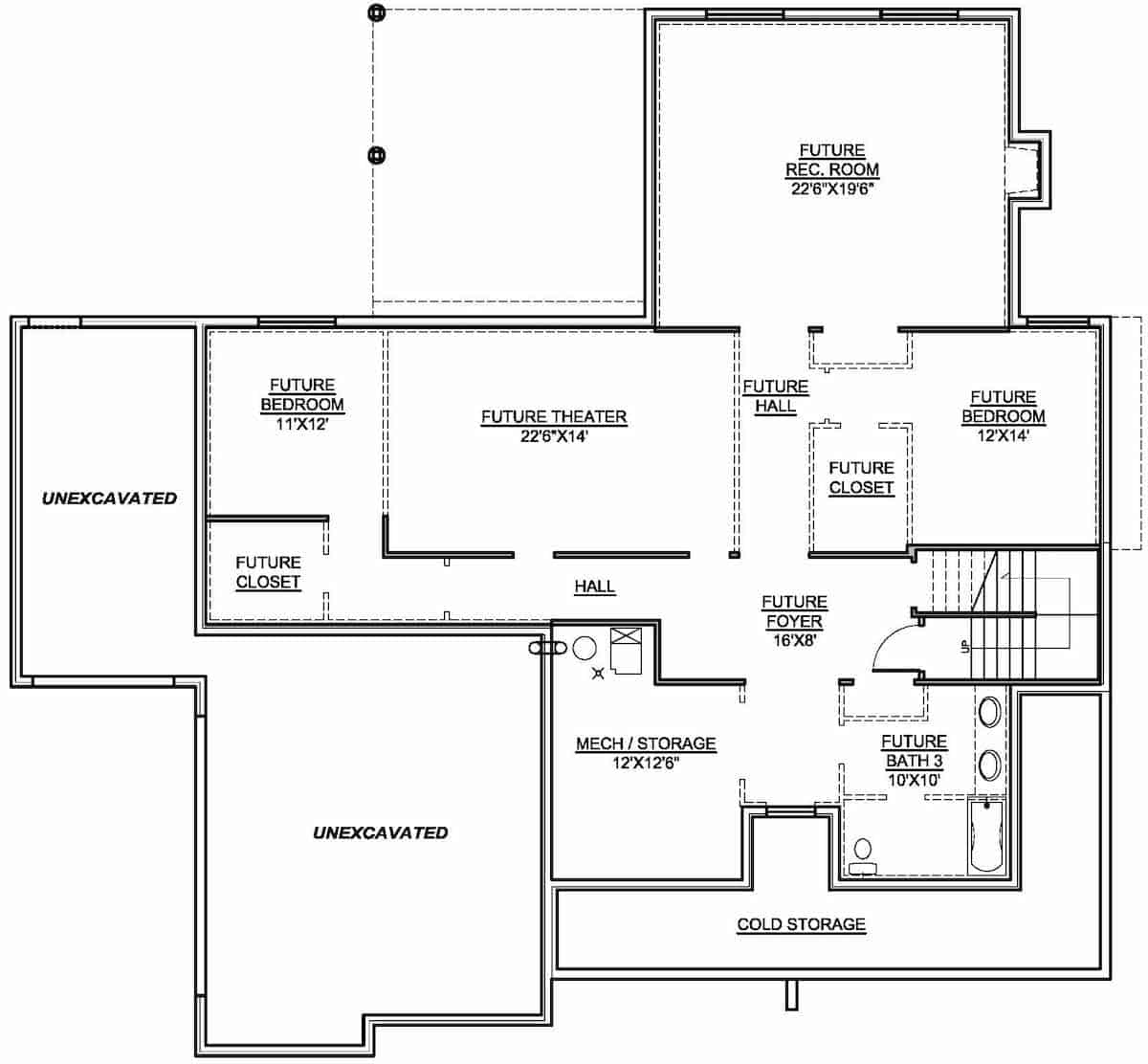
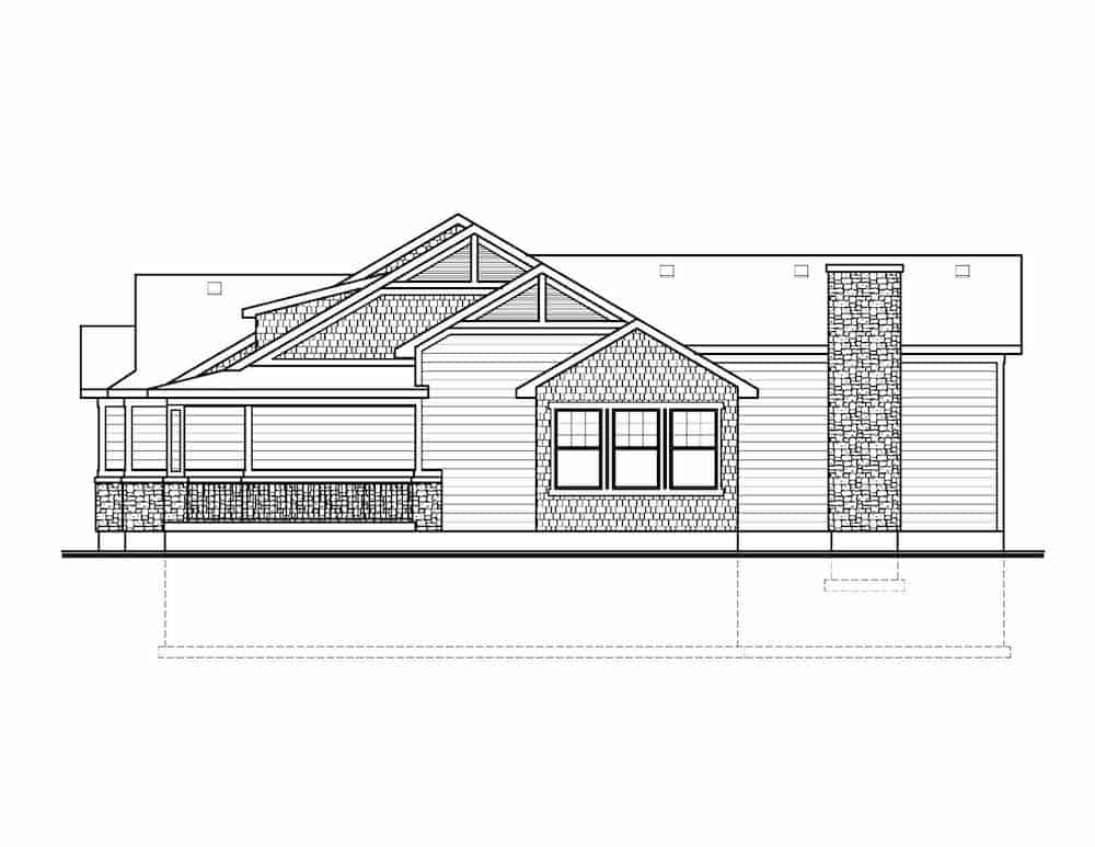
You'll enjoy coming home to this fabulous Ranch style home with Arts and Crafts flair – simple but elegant. Its subtle and style-appropriate use of materials for the roof and exterior walls gives it natural back-to-basics design vibe and great curb appeal. The superb home's 1-story floor plan has 2301 square feet of living space and includes 2 bedrooms with an unfinished basement that could add, if you choose to now or in the future, 2 additional bedrooms, a full bathroom, a home theater, and a recreation...
Estimate your costs based on your location and materials.
All sales of house plans, modifications, and other products found on this site are final. No refunds or exchanges can be given once your order has begun the fulfillment process. Please see our Policies for additional information.
All plans offered on ThePlanCollection.com are designed to conform to the local building codes when and where the original plan was drawn.
The homes as shown in photographs and renderings may differ from the actual blueprints. For more detailed information, please review the floor plan images herein carefully.
Estimate your costs based on your location and materials.