3-Bedroom, 2309 Sq Ft Victorian Plan with Second Floor Master

Front elevation of Victorian home (ThePlanCollection: House Plan #100-1225)

Images/Plans copyrighted by designer. Photos may reflect homeowner modifications.

About House Plan #100-1225

Sq Ft
2309
Sq Ft
Bedrooms
3
Bedrooms
Bathroom
3
Baths
Half Baths
0
Half Baths
Bedrooms
2
Cars
Bedrooms
2
Stories
Bedrooms
30' 0'
Width
Bedrooms
67
Depth
Starting at$1600.00What's included
STEP 1Bedrooms
STEP 2Bedrooms
STEP 3Bedrooms

Subtotal:$0
Plan Collection

How much will it cost to build?

Estimate your costs based on your location and materials.

Free Cost Instant Estimator

Floor Plans

Floor Plan Main Level
Floor Plan Main Level
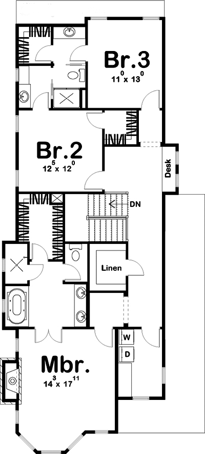
Floor Plan Upper Level
Floor Plan Upper Level
Plan Collection

Can I modify this plan?

Yes! This plan can be customized—contact us for a free quote.

Additional Notes from Designer

The CAD File formats are drawn in SoftPlan. PLEASE NOTE: Plans by this designer do NOT come with FRAMING! This designer does not do ICF.

House Plan Description

This lovely Victorian style home with Texas Style influences (House Plan #100-1225) has 2309 square feet of living space. The 2 story floor plan includes 3 bedrooms.

Home Details

Summary
Plan #:100-1225
Starting at:$1600.00
Floors:2
Bedrooms:3
Full Baths:3
Half Baths:0
Garage:
Square Footage
Heated Area:2309 Sq. Ft.
First Floor:1008 Sq. Ft.
Second Floor:1301 Sq. Ft.
Unheated Area:
Garage:491 Sq. Ft.
Dimensions
Architectural Styles
Exterior Wall Material
Vinyl SidingWood Siding
Roofing Type
Hip
Roofing Material
Asphalt Shingles
Roof Pitch
12/124/128/1210/12
Ceiling Height
9 Foot Ceiling8 Foot Ceiling
Special Feature
FireplaceFamily RoomSplit BathroomSecond Level LaundryOpen Floor Plan
Garage Type
Attached GarageRear Entry
Fireplaces
One Fireplace
Exterior Wall Framing
2x4
Building Lot Type
Narrow Lot Design
Kitchen Features
Kitchen IslandPeninsula/Eating Bar
Porches and Exterior Features
Covered Front PorchCovered Rear Porch
Master Suite Features
Master BathroomWalk In ClosetSecond Floor Master

What’s Included

Most plan sets include the following:

icon text-secondary-400 includedCover Sheet: Shows the front elevation and typical notes and requirements.

icon text-secondary-400 includedExterior Elevations: Shows the front, rear and sides of the home including exterior materials, details and measurements

icon text-secondary-400 includedFloor Plans: Shows the placement of walls and the dimensions for rooms, doors, windows, stairways, etc. for each floor.

icon text-secondary-400 includedElectrical Plans: Shows the location of outlets, fixtures and switches. They are shown as a separate sheet to make the floor plans more legible

icon text-secondary-400 includedFoundation Plans: will include a basement, crawlspace or slab depending on what is available for that home plan. (Please refer to the home plan's details sheet to see what foundation options are available for a specific home plan.) The foundation plan details the layout and construction of the foundation.

icon text-secondary-400 includedRoof Plan

icon text-secondary-400 includedTypical wall section

icon text-secondary-400 includedTypical stair section

icon text-secondary-400 includedCabinets are shown on all plans.

What’s Not Included

These items are  NOT included:

icon text-secondary-400 includedArchitectural or Engineering Stamp - handled locally if required.

icon text-secondary-400 includedSite Plan - handled locally when required.

icon text-secondary-400 includedMechanical Drawings (location of heating and air equipment and ductwork) - your subcontractors handle this.

icon text-secondary-400 includedPlumbing Drawings (drawings showing the actual plumbing pipe sizes and locations) - your subcontractors handle this.

icon text-secondary-400 includedEnergy calculations - handled locally when required.

Related House Plans

Plan Collection
Plan Collection
Plan Collection
Plan#117-1103
Starting at$1345
2847
Sq Ft
2
Story
3
Bed
3
Bath
3
Car
Plan Collection
Plan Collection
Plan Collection
Plan#117-1124
Starting at$1095
2396
Sq Ft
2
Story
3
Bed
3
Bath
2
Car
Plan Collection
Plan Collection
Plan Collection
Plan#117-1106
Starting at$1095
2267
Sq Ft
2
Story
3
Bed
3
Bath
2
Car
View All

Other Plans By This Designer

Plan Collection
Plan Collection
Plan Collection
Plan#100-1364
Starting at$350
224
Sq Ft
1.5
Story
0
Bed
0
Bath
0
Car
Plan Collection
Plan Collection
Plan Collection
Plan#100-1311
Starting at$1800
2978
Sq Ft
2
Story
6
Bed
2.5
Bath
2
Car
Plan Collection
Plan Collection
Plan Collection
Plan#100-1054
Starting at$1800
1412
Sq Ft
1
Story
3
Bed
1.5
Bath
2
Car