Estimate your costs based on your location and materials.
Yes! This plan can be customized—contact us for a free quote.
Yes! This plan can be customized—contact us for a free quote.
Please Note that the designer's office will be closed for the summer holidays from July 20th to August 2024. This designer's plans take 7-10 additional business days regardless of the type of delivery (express, email, etc). Please keep this in mind when ordering.
BCIN is available for this designer - please submit a modification request for cost and time frame.
PLEASE NOTE! This designer's plans do NOT come with an electrical layout. They will provide an electrical layout for an additional fee.
PLEASE NOTE! This is a concept plan and requires 12 business days to be completed before it can be sent (no matter which plan package you choose)!
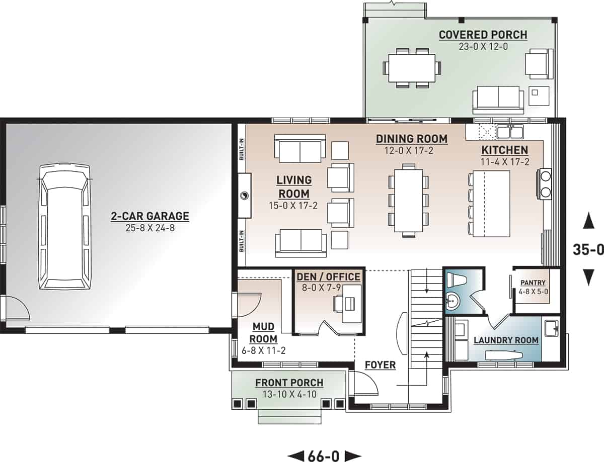
This Contemporary Colonial style home is sure to be one of the favorites on your must-see checklist. The front-facing center gable, shed-style front porch roof and window awning, large multi-pane windows, and combination vertical and horizontal wood siding give the home an interesting character – and great curb appeal. The traditional floor plan – entertaining "public" areas downstairs and private sleeping quarters upstairs – flows extremely well. The impressive 2-story floor plan has 2320 square feet of...
Estimate your costs based on your location and materials.
All sales of house plans, modifications, and other products found on this site are final. No refunds or exchanges can be given once your order has begun the fulfillment process. Please see our Policies for additional information.
All plans offered on ThePlanCollection.com are designed to conform to the local building codes when and where the original plan was drawn.
The homes as shown in photographs and renderings may differ from the actual blueprints. For more detailed information, please review the floor plan images herein carefully.
Estimate your costs based on your location and materials.