3-Bedroom, 2330 Sq Ft Ranch Plan with Mudroom

Ranch home (ThePlanCollection: Plan #147-1159)

Images/Plans copyrighted by designer. Photos may reflect homeowner modifications.

About House Plan #147-1159

Sq Ft
2330
Sq Ft
Bedrooms
3
Bedrooms
Bathroom
2
Baths
Half Baths
1
Half Baths
Bedrooms
3
Cars
Bedrooms
1
Stories
Bedrooms
60' 0'
Width
Bedrooms
54
Depth
Starting at$808.50What's included
STEP 1Bedrooms
STEP 2Bedrooms
STEP 3Bedrooms

Subtotal:$0
Plan Collection

How much will it cost to build?

Estimate your costs based on your location and materials.

Free Cost Instant Estimator

Floor Plans

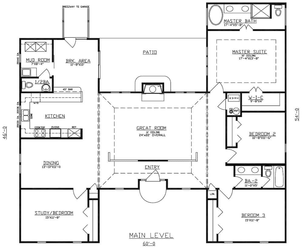
Floor Plan Main Level
Floor Plan Main Level
Floor Plan Garage
Floor Plan Garage
Plan Collection

Can I modify this plan?

Yes! This plan can be customized—contact us for a free quote.

Additional Notes from Designer

PLEASE NOTE!! Mirror Reverse ONLY available if purchasing a PDF. Right Reading Reverse ONLY available if purchasing a CAD!

House Plan Description

This marvelous Ranch style home is sure to capture your attention with its simple looks and unusual H-shape floor plan. The central Great Room with fireplace is surrounded on the right side by private bedrooms and on the left side by the kitchen / dining area and home office, which could also be used as a 4th bedroom. The 1-story floor plan has 2330 square feet of heated-cooled living space and includes 3–4 bedrooms, 2 full bathrooms, and 1 half bath. The home has a detached 3-car garage, the plans for which come with the home's plans.

Home Details

Summary
Plan #:147-1159
Starting at:$808.50
Floors:1
Bedrooms:3
Full Baths:2
Half Baths:1
Garage:
Square Footage
Heated Area:2330 Sq. Ft.
First Floor:2330 Sq. Ft.
Unheated Area:
Garage:768 Sq. Ft.
Dimensions
Architectural Styles
Exterior Wall Material
Vinyl SidingWood Siding
Roofing Type
Hip
Roofing Material
Asphalt Shingles
Roof Pitch
12/12
Special Feature
FireplaceDining RoomMud RoomFamily RoomMain Level LaundryLibraryOpen Floor Plan
Garage Type
Detached GarageFront Entry
Fireplaces
One Fireplace
Kitchen Features
Nook/Breakfast AreaPeninsula/Eating BarEat-In Kitchen
Porches and Exterior Features
Covered Front PorchPatio
Master Suite Features
Main Floor MasterMaster BathroomWalk In Closet

What’s Included

Most plan sets include the following:

icon text-secondary-400 includedFoundation Plan

icon text-secondary-400 includedFloor plans

icon text-secondary-400 includedRoof plan

icon text-secondary-400 includedExterior Elevations

icon text-secondary-400 includedCross Sections & typical details

icon text-secondary-400 includedInterior elevations as needed

icon text-secondary-400 includedDoor & Window schedule

icon text-secondary-400 includedElectrical layout

What’s Not Included

These items are  NOT included:

icon text-secondary-400 includedArchitectural or Engineering Stamp - handled locally if required.

icon text-secondary-400 includedSite Plan - handled locally when required.

icon text-secondary-400 includedMechanical Drawings (location of heating and air equipment and ductwork) - your subcontractors handle this.

icon text-secondary-400 includedPlumbing Drawings (drawings showing the actual plumbing pipe sizes and locations) - your subcontractors handle this.

icon text-secondary-400 includedEnergy calculations - handled locally when required.

Related House Plans

Plan Collection
Plan Collection
Plan Collection
Plan#142-1168
Starting at$1395
2597
Sq Ft
1
Story
3
Bed
2.5
Bath
2
Car
Plan Collection
Plan Collection
Plan Collection
Plan#117-1092
Starting at$1095
2091
Sq Ft
1
Story
3
Bed
2.5
Bath
2
Car
Plan Collection
Plan Collection
Plan Collection
Plan#106-1276
Starting at$1295
2344
Sq Ft
1
Story
3
Bed
2.5
Bath
2
Car
View All

Other Plans By This Designer

Plan Collection
Plan Collection
Plan Collection
Plan#147-1156
Starting at$809
1950
Sq Ft
2
Story
4
Bed
2.5
Bath
2
Car
Plan Collection
Plan Collection
Plan Collection
Plan#147-1165
Starting at$809
2399
Sq Ft
1
Story
3
Bed
2
Bath
3
Car
Plan Collection
Plan Collection
Plan Collection
Plan#147-1164
Starting at$693
1748
Sq Ft
1
Story
3
Bed
2
Bath
3
Car