Estimate your costs based on your location and materials.
Yes! This plan can be customized—contact us for a free quote.
Yes! This plan can be customized—contact us for a free quote.
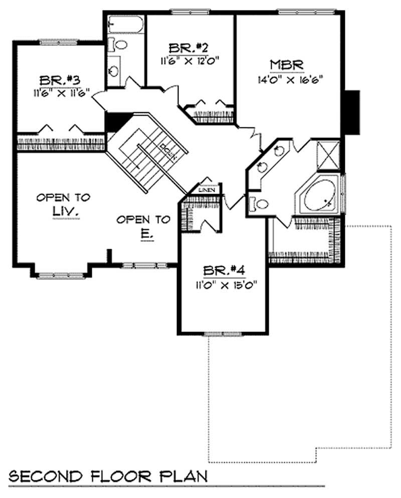
This four-bedroom, two-story home would be great for a growing family and has many creative design angles that make this home stand out from the rest. When entering the two-story foyer, you’ll be amazed at the space in the formal living and family rooms. The large kitchen offers a walk-in pantry and an island, which make preparing meals a pleasure. The nook opens directly out to the back yard. The family room features a cozy fireplace surrounded by windows. The plan also features a half bath for your guests and a very usable utility room. On the second floor you’ll find four large bedrooms....
Estimate your costs based on your location and materials.
All sales of house plans, modifications, and other products found on this site are final. No refunds or exchanges can be given once your order has begun the fulfillment process. Please see our Policies for additional information.
All plans offered on ThePlanCollection.com are designed to conform to the local building codes when and where the original plan was drawn.
The homes as shown in photographs and renderings may differ from the actual blueprints. For more detailed information, please review the floor plan images herein carefully.
Estimate your costs based on your location and materials.