3-Bedroom, 2494 Sq Ft Craftsman Plan with Master Bathroom

Front elevation of Craftsman home (ThePlanCollection: House Plan #180-1046)

Images/Plans copyrighted by designer. Photos may reflect homeowner modifications.

About House Plan #180-1046

Sq Ft
2494
Sq Ft
Bedrooms
3
Bedrooms
Bathroom
3
Baths
Half Baths
1
Half Baths
Bedrooms
2
Cars
Bedrooms
2
Stories
Bedrooms
53' 4'
Width
Bedrooms
73
Depth
Starting at$1250.00What's included
STEP 1Bedrooms
STEP 2Bedrooms
STEP 3Bedrooms

Subtotal:$0
Plan Collection

How much will it cost to build?

Estimate your costs based on your location and materials.

Free Cost Instant Estimator

Floor Plans

Floor Plan Main Level
Floor Plan Main Level
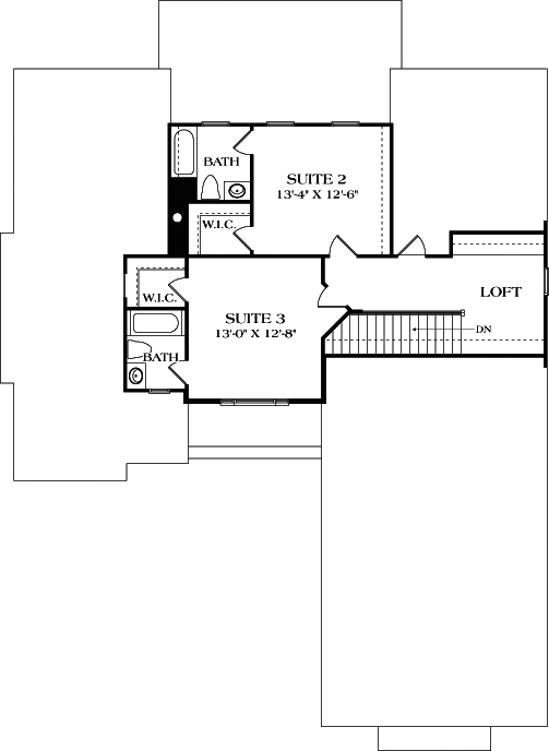
Floor Plan Upper Level
Floor Plan Upper Level
Plan Collection

Can I modify this plan?

Yes! This plan can be customized—contact us for a free quote.

Additional Notes from Designer

PLEASE NOTE!! Due to COVID-19, this designer is not able to fulfill REPRODUCIBLE sets at this time. Please order a PDF or CAD file which will be emailed to you. Thank you for your understanding!

House Plan Description

This lovely Craftsman style home with Cottage influences (House Plan #180-1046) has 2494 square feet of living space. The 2 story floor plan includes 3 bedrooms.

Home Details

Summary
Plan #:180-1046
Starting at:$1250.00
Floors:2
Bedrooms:3
Full Baths:3
Half Baths:1
Garage:
Square Footage
Heated Area:2494 Sq. Ft.
First Floor:1767 Sq. Ft.
Second Floor:727 Sq. Ft.
Unheated Area:
Garage:671 Sq. Ft.
Dimensions
Width:53' 4''
Depth:73' 7''
Architectural Styles
Exterior Wall Material
Rock/StoneShakes
Roofing Type
Gable
Roofing Material
Metal
Ceiling Height
10 Foot Ceiling9 Foot Ceiling
Special Feature
FireplaceSwimming PoolFamily RoomMain Level LaundryLoftOpen Floor Plan
Garage Type
Attached GarageCourtyard Entry
Fireplaces
One Fireplace
Exterior Wall Framing
2x4
Kitchen Features
Nook/Breakfast AreaWalk-in PantryPeninsula/Eating BarEat-In Kitchen
Porches and Exterior Features
Covered Rear PorchPortico
Master Suite Features
Main Floor MasterMaster BathroomWalk In ClosetSplit Master Bedroom

What’s Included

Most plan sets include the following:

icon text-secondary-400 includedFoundation Plan

icon text-secondary-400 includedFloor Plans

icon text-secondary-400 includedFraming Plans

icon text-secondary-400 includedExterior Elevations

icon text-secondary-400 includedRoof Plan

icon text-secondary-400 includedTypical Building Section

icon text-secondary-400 includedTypical Foundation Details

icon text-secondary-400 includedWall Section

icon text-secondary-400 includedElectrical Layout

What’s Not Included

These items are  NOT included:

icon text-secondary-400 includedArchitectural or Engineering Stamp - handled locally if required.

icon text-secondary-400 includedSite Plan - handled locally when required.

icon text-secondary-400 includedMechanical Drawings (location of heating and air equipment and ductwork) - your subcontractors handle this.

icon text-secondary-400 includedPlumbing Drawings (drawings showing the actual plumbing pipe sizes and locations) - your subcontractors handle this.

icon text-secondary-400 includedEnergy calculations - handled locally when required.

Related House Plans

Plan Collection
Plan Collection
Plan Collection
Plan#117-1103
Starting at$1345
2847
Sq Ft
2
Story
3
Bed
3
Bath
3
Car
Plan Collection
Plan Collection
Plan Collection
Plan#106-1324
Starting at$1695
2484
Sq Ft
2
Story
3
Bed
3.5
Bath
3
Car
Plan Collection
Plan Collection
Plan Collection
Plan#117-1124
Starting at$1095
2396
Sq Ft
2
Story
3
Bed
3
Bath
2
Car
View All

Other Plans By This Designer

Plan Collection
Plan Collection
Plan Collection
Plan#180-1033
Starting at$2400
8126
Sq Ft
3
Story
5
Bed
5.5
Bath
4
Car
Plan Collection
Plan Collection
Plan Collection
Plan#180-1043
Starting at$2400
9104
Sq Ft
2
Story
5
Bed
6.5
Bath
3
Car
Plan Collection
Plan Collection
Plan Collection
Plan#180-1012
Starting at$1350
2894
Sq Ft
2
Story
4
Bed
3.5
Bath
2
Car