3-Bedroom, 2535 Sq Ft Contemporary Plan with Sun Room

Contemporary home (ThePlanCollection: Plan #196-1032)

Images/Plans copyrighted by designer. Photos may reflect homeowner modifications.

About House Plan #196-1032

Sq Ft
2535
Sq Ft
Bedrooms
3
Bedrooms
Bathroom
3
Baths
Half Baths
0
Half Baths
Bedrooms
3
Cars
Bedrooms
2
Stories
Bedrooms
32' 10'
Width
Bedrooms
82
Depth
Starting at$1525.00What's included
STEP 1Bedrooms
STEP 2Bedrooms
STEP 3Bedrooms

Subtotal:$0
Plan Collection

How much will it cost to build?

Estimate your costs based on your location and materials.

Free Cost Instant Estimator

Floor Plans

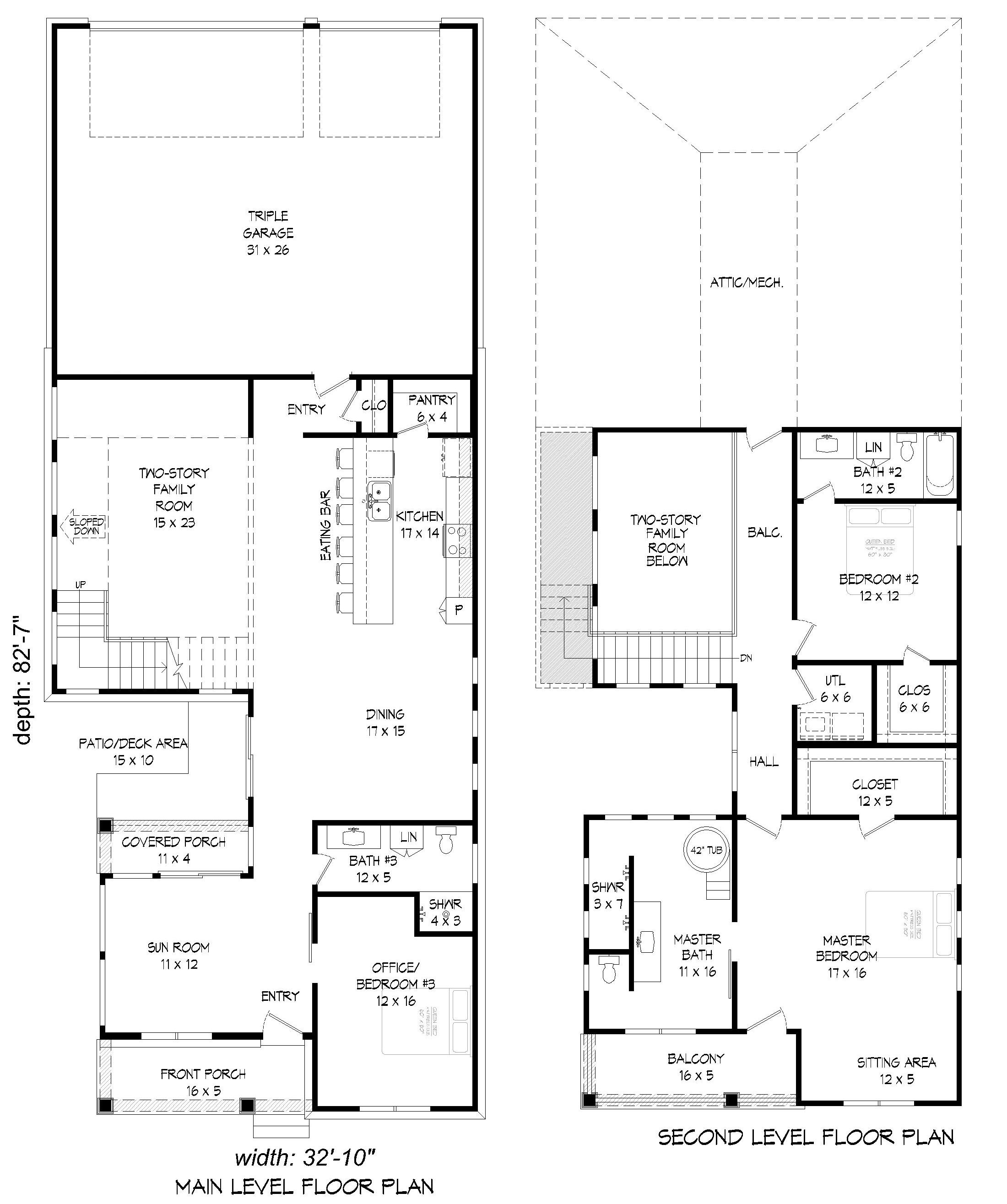
Floor Plan Main Level
Floor Plan Main Level
Plan Collection

Can I modify this plan?

Yes! This plan can be customized—contact us for a free quote.

Additional Notes from Designer

NOTE FROM DESIGNER REGARDING PLAN PURCHASES: 80% of a 5 set purchase price can be applied to any PDF or CAD license upgrade. Additionally, 80% of PDF Study purchase price can be applied to any CAD or PDF license upgrade.

Please note: The total square foot of this plan is 3622.

House Plan Description

This amazing Contemporary take on a Traditional style home with Southern characteristics (Plan #196-1032) has 2535 square feet of living space. The 2 story floor plan includes 3 bedrooms and a breathtaking 2 story family room.

Home Details

Summary
Plan #:196-1032
Starting at:$1525.00
Floors:2
Bedrooms:3
Full Baths:3
Half Baths:0
Garage:
Square Footage
Heated Area:2535 Sq. Ft.
First Floor:1475 Sq. Ft.
Second Floor:1060 Sq. Ft.
Unheated Area:
Garage:880 Sq. Ft.
Porch:207 Sq. Ft.
Dimensions
Width:32' 10''
Depth:82' 7''
Architectural Styles
Exterior Wall Material
Vinyl SidingBrickWood Siding
Roofing Type
Gable
Roofing Material
Asphalt Shingles
Roof Pitch
8/12
Ceiling Height
10 Foot Ceiling9 Foot Ceiling
Special Feature
Family RoomBalconySecond Level LaundryOpen Floor Plan
Garage Type
Attached GarageRear Entry
Exterior Wall Framing
2x4
Building Lot Type
Narrow Lot Design
Kitchen Features
Kitchen IslandNook/Breakfast AreaWalk-in PantryEat-In Kitchen
Porches and Exterior Features
Covered Front PorchScreened Porch/SunroomPatio
Master Suite Features
Master BathroomWalk In ClosetSitting AreaSecond Floor Master

What’s Included

Most plan sets include the following:

What’s Not Included

These items are  NOT included:

Related House Plans

Plan Collection
Plan Collection
Plan Collection
Plan#117-1103
Starting at$1345
2847
Sq Ft
2
Story
3
Bed
3
Bath
3
Car
Plan Collection
Plan Collection
Plan Collection
Plan#106-1324
Starting at$1695
2484
Sq Ft
2
Story
3
Bed
3.5
Bath
3
Car
Plan Collection
Plan Collection
Plan Collection
Plan#117-1124
Starting at$1095
2396
Sq Ft
2
Story
3
Bed
3
Bath
2
Car
View All

Other Plans By This Designer

Plan Collection
Plan Collection
Plan Collection
Plan#196-1211
Starting at$695
650
Sq Ft
2
Story
1
Bed
1
Bath
2
Car
Plan Collection
Plan Collection
Plan Collection
Plan#196-1196
Starting at$810
1500
Sq Ft
1
Story
2
Bed
2
Bath
3
Car
Plan Collection
Plan Collection
Plan Collection
Plan#196-1216
Starting at$845
1727
Sq Ft
2
Story
2
Bed
2
Bath
2
Car