5-Bedroom, 2576 Sq Ft Traditional Plan with Main Floor Master

The Plan Collection: Front Elevation of Traditional House # 187-1031

Images/Plans copyrighted by designer. Photos may reflect homeowner modifications.

About House Plan #187-1031

Sq Ft
2576
Sq Ft
Bedrooms
5
Bedrooms
Bathroom
3
Baths
Half Baths
1
Half Baths
Bedrooms
3
Cars
Bedrooms
1
Stories
Bedrooms
88' 8'
Width
Bedrooms
59
Depth
Starting at$1350.00What's included
STEP 1Bedrooms
STEP 2Bedrooms
STEP 3Bedrooms

Subtotal:$0
Plan Collection

How much will it cost to build?

Estimate your costs based on your location and materials.

Free Cost Instant Estimator

Floor Plans

Floor Plan First Story
Floor Plan First Story
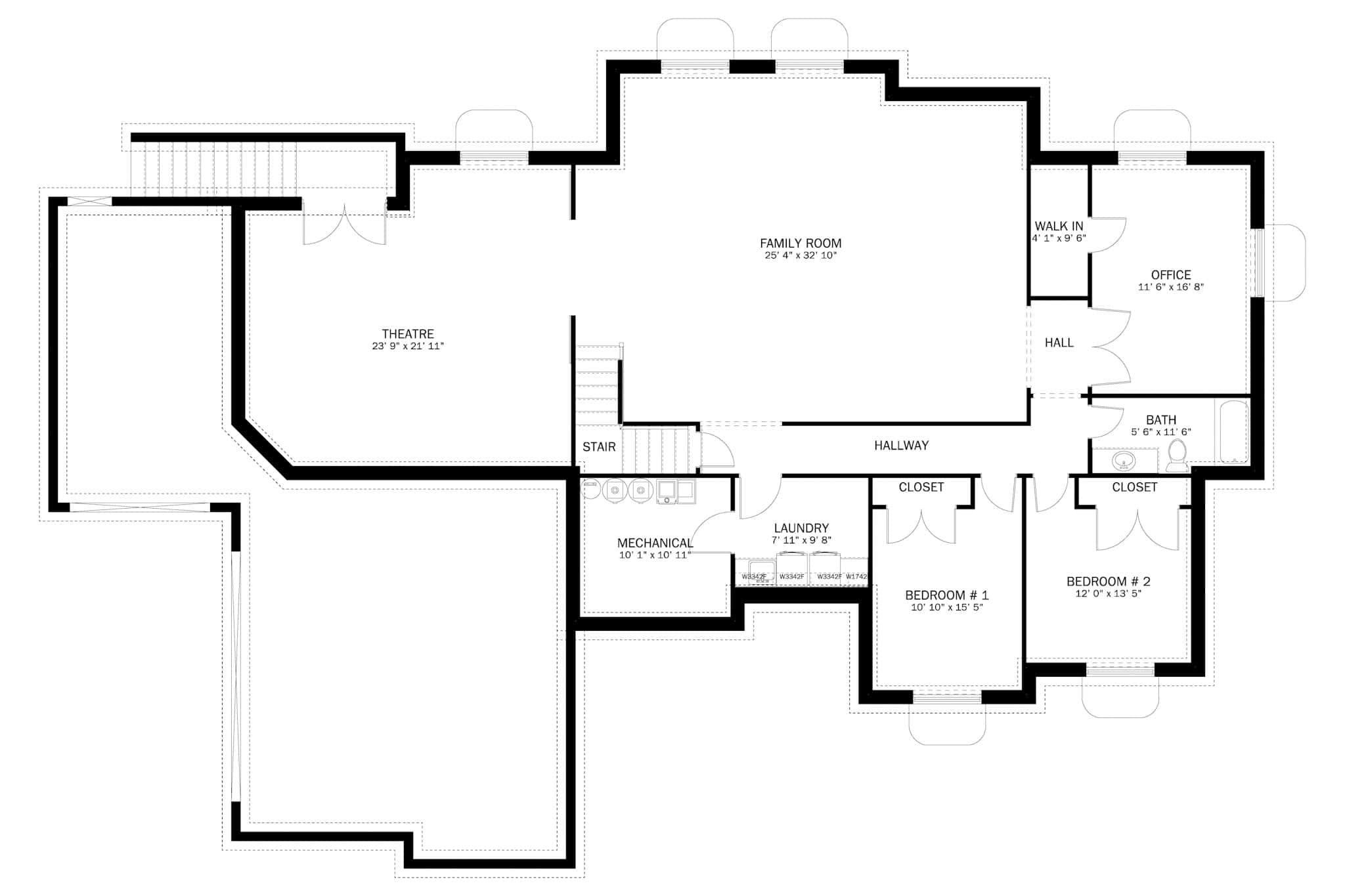
Basement
Basement
Plan Collection

Can I modify this plan?

Yes! This plan can be customized—contact us for a free quote.

Additional Notes from Designer

PLEASE NOTE! On some plans, alternate foundations could take up to ONE WEEK to produce. NOTE FROM DESIGNER: If you purchase a CAD, you will automatically receive the unlimited build license!

With the finished basement, there are a total of 5132 square feet.

House Plan Description

This beautiful traditional home has 2576 square feet of above grade living space. With the finished basement, there are a total of 5132 square feet. The one story floor plan includes 5 bedrooms and 3 1/2 bathrooms.

Home Details

Summary
Plan #:187-1031
Starting at:$1350.00
Floors:1
Bedrooms:5
Full Baths:3
Half Baths:1
Garage:
Square Footage
Heated Area:2576 Sq. Ft.
First Floor:2576 Sq. Ft.
Unheated Area:
Basement:2556 Sq. Ft.
Dimensions
Width:88' 8''
Ridge Height:25' 0''
Architectural Styles
Roof Pitch
10/12
Ceiling Height
9 Foot Ceiling
Special Feature
Color PhotosInterior Photos
Garage Type
Attached Garage
Exterior Wall Framing
2x6
Porches and Exterior Features
Covered Front Porch

What’s Included

Most plan sets include the following:

icon text-secondary-400 includedFloor plans

icon text-secondary-400 includedFloor framing plans

icon text-secondary-400 includedRoof framing plan

icon text-secondary-400 includedAll 4 elevations

icon text-secondary-400 includedCross-sections

icon text-secondary-400 includedElectrical layout

icon text-secondary-400 included3-4 sheets of details

What’s Not Included

These items are  NOT included:

icon text-secondary-400 includedMechanical Drawings (location of heating and air equipment and ductwork) - your subcontractors handle this.

icon text-secondary-400 includedSite Plan - handled locally when required. Architectural or Engineering Stamp - handled locally if required.

icon text-secondary-400 includedPlumbing Drawings (drawings showing the actual plumbing pipe sizes and locations) - your subcontractors handle this.

icon text-secondary-400 includedEnergy calculations - handled locally when required.

Related House Plans

Plan Collection
Plan Collection
Plan Collection
Plan#135-1087
Starting at$1725
2647
Sq Ft
1
Story
5
Bed
3
Bath
3
Car
Plan Collection
Plan Collection
Plan Collection
Plan#108-1692
Starting at$1050
2473
Sq Ft
1
Story
5
Bed
3
Bath
3
Car
Plan Collection
Plan Collection
Plan Collection
Plan#135-1018
Starting at$0
3102
Sq Ft
1
Story
5
Bed
3.5
Bath
3
Car
View All

Other Plans By This Designer

Plan Collection
Plan Collection
Plan Collection
Plan#187-1210
Starting at$650
900
Sq Ft
1
Story
2
Bed
1.5
Bath
2
Car
Plan Collection
Plan Collection
Plan Collection
Plan#187-1206
Starting at$1150
1096
Sq Ft
2
Story
2
Bed
2
Bath
6
Car
Plan Collection
Plan Collection
Plan Collection
Plan#187-1069
Starting at$1050
1595
Sq Ft
1
Story
3
Bed
2
Bath
4
Car