Estimate your costs based on your location and materials.
Yes! This plan can be customized—contact us for a free quote.
Yes! This plan can be customized—contact us for a free quote.
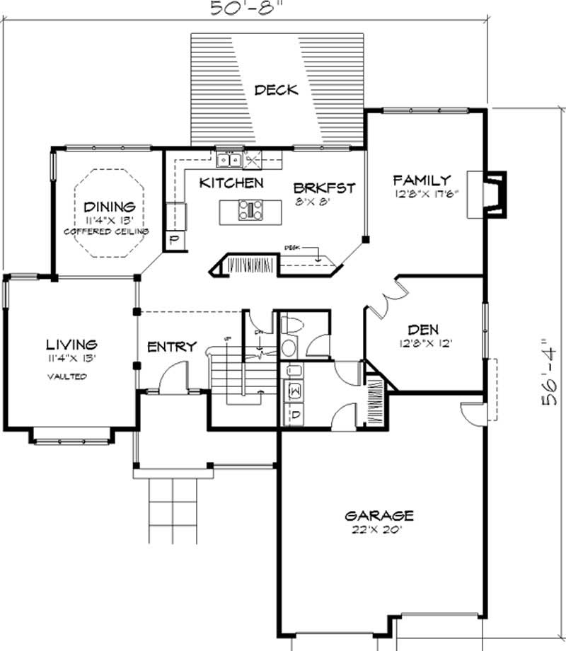
This country house has staggered rooflines, a covered front porch and multiple large windows that make up an exterior that frames an open, functional interior arrangement. Off the spacious, recessed foyer, the vaulted living room boasts beautiful corner and front boxed-out windows. The modern, island kitchen has a pantry and a work desk, and merges with a breakfast area that overlooks a rear deck. The upper level has two bedrooms, in addition to the vaulted master suite flaunting a private luxury bath.
Estimate your costs based on your location and materials.
All sales of house plans, modifications, and other products found on this site are final. No refunds or exchanges can be given once your order has begun the fulfillment process. Please see our Policies for additional information.
All plans offered on ThePlanCollection.com are designed to conform to the local building codes when and where the original plan was drawn.
The homes as shown in photographs and renderings may differ from the actual blueprints. For more detailed information, please review the floor plan images herein carefully.
Estimate your costs based on your location and materials.