4-Bedroom, 2616 Sq Ft Colonial Plan with Nook/Breakfast Area

Main image for house plan # 20135

Images/Plans copyrighted by designer. Photos may reflect homeowner modifications.

About House Plan #131-1152

Sq Ft
2616
Sq Ft
Bedrooms
4
Bedrooms
Bathroom
2
Baths
Half Baths
1
Half Baths
Bedrooms
2
Cars
Bedrooms
2
Stories
Bedrooms
66' 6'
Width
Bedrooms
32
Depth
Starting at$1050.00What's included
STEP 1Bedrooms
STEP 2Bedrooms
STEP 3Bedrooms

Subtotal:$0
Plan Collection

How much will it cost to build?

Estimate your costs based on your location and materials.

Free Cost Instant Estimator

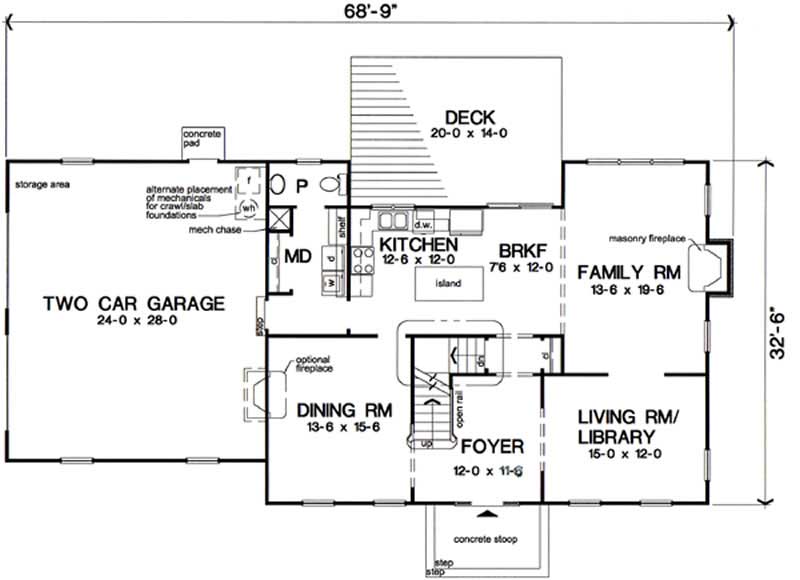
Floor Plans

FIRST LEVEL FLOOR PLAN
FIRST LEVEL FLOOR PLAN
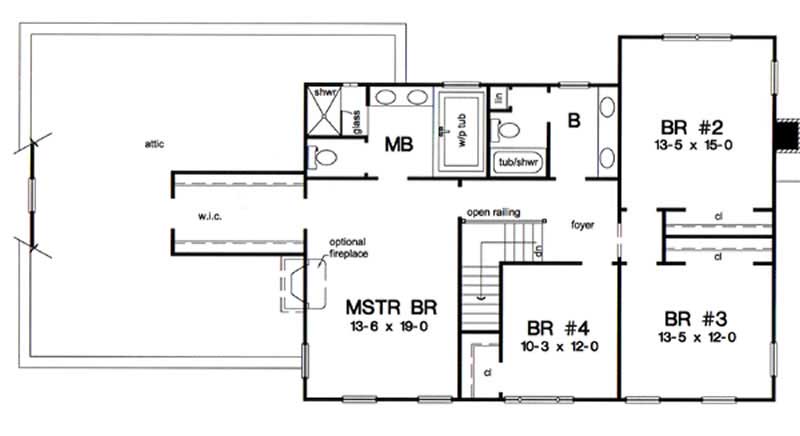
SECOND LEVEL FLOOR PLAN
SECOND LEVEL FLOOR PLAN
FLOOR PLAN OPTION
FLOOR PLAN OPTION
Plan Collection

Can I modify this plan?

Yes! This plan can be customized—contact us for a free quote.

House Plan Description

A combination living room and library rests beside the inviting foyer, offering space to relax with loved ones or escape with your favorite book. A wall of windows gives the spacious family room a backyard view, while a fireplace offers warmth and atmosphere. In addition to easy kitchen access, the breakfast room features sliding glass doors to a large rear deck. The optional dining room fireplace can make your dinner parties even cozier, while continuing up into the second-floor master bedroom. Two more bedrooms share the second floor with a full bath. This home is designed with basement,...

Home Details

Summary
Plan #:131-1152
Starting at:$1050.00
Floors:2
Bedrooms:4
Full Baths:2
Half Baths:1
Garage:
Square Footage
Heated Area:2616 Sq. Ft.
First Floor:1283 Sq. Ft.
Second Floor:1333 Sq. Ft.
Unheated Area:
Garage:695 Sq. Ft.
Dimensions
Width:66' 6''
Depth:32' 6''
Ridge Height:35'6' 0''
Architectural Styles
Exterior Wall Material
Vinyl Siding
Roofing Type
Gable
Roof Pitch
12/12
Ceiling Height
9 Foot Ceiling8 Foot Ceiling
Special Feature
FireplaceDining RoomFamily RoomLibrary
Garage Type
Attached GarageSide Entry
Fireplaces
One Fireplace
Exterior Wall Framing
2x4

What’s Included

Most plan sets include the following:

icon text-secondary-400 includedExterior elevations

icon text-secondary-400 includedFoundation plans

icon text-secondary-400 includedInterior elevations

icon text-secondary-400 includedElectrical layout

icon text-secondary-400 includedDetailed house floor plans

What’s Not Included

These items are  NOT included:

icon text-secondary-400 includedArchitectural or Engineering Stamp - handled locally if required.

icon text-secondary-400 includedSite Plan - handled locally when required.

icon text-secondary-400 includedMechanical Drawings (location of heating and air equipment and ductwork) - your subcontractors handle this.

icon text-secondary-400 includedPlumbing Drawings (drawings showing the actual plumbing pipe sizes and locations) - your subcontractors handle this.

icon text-secondary-400 includedEnergy calculations - handled locally when required.

Related House Plans

Plan Collection
Plan Collection
Plan Collection
Plan#178-1080
Starting at$1005
1980
Sq Ft
2
Story
4
Bed
2.5
Bath
2
Car
Plan Collection
Plan Collection
Plan Collection
Plan#146-2292
Starting at$1120
2548
Sq Ft
2
Story
4
Bed
2.5
Bath
2
Car
Plan Collection
Plan Collection
Plan Collection
Plan#146-1263
Starting at$1120
2508
Sq Ft
2
Story
4
Bed
2.5
Bath
2
Car
View All

Other Plans By This Designer

Plan Collection
Plan Collection
Plan Collection
Plan#131-1013
Starting at$900
2083
Sq Ft
2
Story
3
Bed
2.5
Bath
2
Car
Plan Collection
Plan Collection
Plan Collection
Plan#131-1047
Starting at$800
1792
Sq Ft
1
Story
3
Bed
2
Bath
0
Car
Plan Collection
Plan Collection
Plan Collection
Plan#131-1243
Starting at$600
972
Sq Ft
2
Story
3
Bed
1
Bath
0
Car