5-Bedroom, 2629 Sq Ft Colonial Plan with Courtyard

Main image for house plan # 17020

Images/Plans copyrighted by designer. Photos may reflect homeowner modifications.

About House Plan #101-1007

Sq Ft
2629
Sq Ft
Bedrooms
5
Bedrooms
Bathroom
3
Baths
Half Baths
0
Half Baths
Bedrooms
3
Cars
Bedrooms
2
Stories
Bedrooms
63' 0'
Width
Bedrooms
53
Depth
Starting at$1100.00What's included
STEP 1Bedrooms
STEP 2Bedrooms
STEP 3Bedrooms

Subtotal:$0
Plan Collection

How much will it cost to build?

Estimate your costs based on your location and materials.

Free Cost Instant Estimator

Floor Plans

MAIN FLOOR PLAN
MAIN FLOOR PLAN
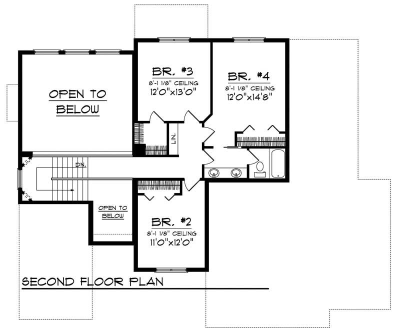
SECOND FLOOR PLAN
SECOND FLOOR PLAN
Plan Collection

Can I modify this plan?

Yes! This plan can be customized—contact us for a free quote.

House Plan Description

Blooming with country charm, this ranch home features a unique design of vertical siding and stone masonry creating a home with a look that’s all its own. A formal dining room lies to your left as you enter, and straight ahead you’ll be captivated by the impressive view out the back of the home through a two-story wall of windows in the great room. The adjacent kitchen, complete with breakfast bar and walk-in pantry, flows easily into the nook where you’ll love enjoying your morning cup of coffee. The master suite is tucked behind the kitchen for maximum privacy and pampers with a step...

Home Details

Summary
Plan #:101-1007
Starting at:$1100.00
Floors:2
Bedrooms:5
Full Baths:3
Half Baths:0
Garage:
Square Footage
Heated Area:2629 Sq. Ft.
First Floor:1835 Sq. Ft.
Second Floor:794 Sq. Ft.
Unheated Area:
Garage:690 Sq. Ft.
Dimensions
Ridge Height:32-1' 0''
Architectural Styles
Exterior Wall Material
Aluminum SidingVinyl SidingRock/StoneWood Siding
Roof Pitch
12/1210/12
Ceiling Height
9 Foot Ceiling
Special Feature
Dining Room
Garage Type
Front Entry
Fireplaces
One Fireplace
Exterior Wall Framing
2x6
Kitchen Features
Walk-in Pantry

What’s Included

Most plan sets include the following:

icon text-secondary-400 includedFront, Back & Side Elevations

icon text-secondary-400 includedFloor Plans

icon text-secondary-400 includedElectrical Layout (location of outlets, switches, etc. - it does not have wiring schematics)

icon text-secondary-400 includedRoof Plan (Birdseye view)

icon text-secondary-400 includedFoundation Layout

icon text-secondary-400 includedWall & Stair Sections

icon text-secondary-400 includedCross Section

icon text-secondary-400 includedKitchen Layout

icon text-secondary-400 includedGeneral Notes

What’s Not Included

These items are  NOT included:

icon text-secondary-400 includedArchitectural or Engineering Stamp - handled locally if required.

icon text-secondary-400 includedSite Plan - handled locally when required.

icon text-secondary-400 includedMechanical Drawings (location of heating and air equipment and ductwork) - your subcontractors handle this.

icon text-secondary-400 includedPlumbing Drawings (drawings showing the actual plumbing pipe sizes and locations) - your subcontractors handle this.

icon text-secondary-400 includedFraming layouts with beam sizes and locations.

icon text-secondary-400 includedEnergy calculations - handled locally when required.

Related House Plans

Plan Collection
Plan Collection
Plan Collection
Plan#173-1029
Starting at$1300
2750
Sq Ft
2
Story
5
Bed
3.5
Bath
2
Car
Plan Collection
Plan Collection
Plan Collection
Plan#153-1313
Starting at$1000
2704
Sq Ft
2
Story
5
Bed
3
Bath
0
Car
Plan Collection
Plan Collection
Plan Collection
Plan#189-1013
Starting at$1595
3263
Sq Ft
2
Story
5
Bed
3.5
Bath
2
Car
View All

Other Plans By This Designer

Plan Collection
Plan Collection
Plan Collection
Plan#101-2006
Starting at$0
4724
Sq Ft
2
Story
4
Bed
4.5
Bath
4
Car
Plan Collection
Plan Collection
Plan Collection
Plan#101-2024
Starting at$1180
3235
Sq Ft
1
Story
5
Bed
3.5
Bath
3
Car
Plan Collection
Plan Collection
Plan Collection
Plan#101-2028
Starting at$0
4406
Sq Ft
2
Story
4
Bed
3.5
Bath
4
Car