4-Bedroom, 2733 Sq Ft Country Plan with Covered Front Porch

Main image for European house plans # 10342

Images/Plans copyrighted by designer. Photos may reflect homeowner modifications.

About House Plan #164-1275

Sq Ft
2733
Sq Ft
Bedrooms
4
Bedrooms
Bathroom
3
Baths
Half Baths
0
Half Baths
Bedrooms
2
Cars
Bedrooms
1
Stories
Bedrooms
70' 10'
Width
Bedrooms
67
Depth
Starting at$1312.50What's included
STEP 1Bedrooms
STEP 2Bedrooms
STEP 3Bedrooms

Subtotal:$0
Plan Collection

How much will it cost to build?

Estimate your costs based on your location and materials.

Free Cost Instant Estimator

Floor Plans

HOME FLOOR PLAN
HOME FLOOR PLAN
Plan Collection

Can I modify this plan?

Yes! This plan can be customized—contact us for a free quote.

House Plan Description

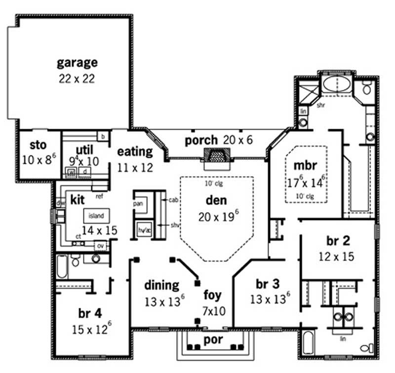
Country House Plans RG-2714 has 4 Bedrooms and 3 Baths. There is a Large Den with a fireplace and a Raised Ceiling. It also has a great view of the covered rear porch. The Master Suite is very spacious and has a walk-in closet and private bathroom. The Large Gourmet Kitchen boasts an Eating Bar. Covered Front and Rear Porches allow you to enjoy the great outdoors. Everyone will admire the Elegant Georgian Styling.

Home Details

Summary
Plan #:164-1275
Starting at:$1312.50
Floors:1
Bedrooms:4
Full Baths:3
Half Baths:0
Garage:
Square Footage
Heated Area:2733 Sq. Ft.
First Floor:2733 Sq. Ft.
Unheated Area:
Dimensions
Width:70' 10''
Depth:67' 4''
Architectural Styles
Exterior Wall Material
Brick
Roofing Type
Hip
Roofing Material
Asphalt Shingles
Roof Pitch
8/12
Ceiling Height
9 Foot Ceiling
Special Feature
FireplaceDining RoomMain Level LaundrySplit BathroomStorageDen
Garage Type
Attached GarageSide Entry
Fireplaces
One Fireplace
Building Lot Type
Flat Site
Kitchen Features
Kitchen IslandNook/Breakfast AreaWalk-in PantryPeninsula/Eating BarEat-In Kitchen
Porches and Exterior Features
Covered Front PorchCovered Rear Porch
Master Suite Features
Main Floor MasterMaster BathroomWalk In Closet

What’s Included

Most plan sets include the following:

icon text-secondary-400 includedCover sheet

icon text-secondary-400 includedFoundation plan

icon text-secondary-400 includedFloor plan

icon text-secondary-400 includedElectrical layout

icon text-secondary-400 includedExterior elevations

icon text-secondary-400 includedBuilding sections

icon text-secondary-400 includedSpecifications

icon text-secondary-400 includedCabinet details

icon text-secondary-400 includedRoof plan

icon text-secondary-400 includedMiscellaneous details

What’s Not Included

These items are  NOT included:

icon text-secondary-400 includedArchitectural or Engineering Stamp - handled locally if required.

icon text-secondary-400 includedSite Plan - handled locally when required.

icon text-secondary-400 includedMechanical Drawings (location of heating and air equipment and ductwork) - your subcontractors handle this.

icon text-secondary-400 includedPlumbing Drawings (drawings showing the actual plumbing pipe sizes and locations) - your subcontractors handle this.

icon text-secondary-400 includedEnergy calculations - handled locally when required.

Related House Plans

Plan Collection
Plan Collection
Plan Collection
Plan#142-1102
Starting at$1395
2639
Sq Ft
1
Story
4
Bed
3
Bath
2
Car
Plan Collection
Plan Collection
Plan Collection
Plan#146-2173
Starting at$1015
2464
Sq Ft
1
Story
4
Bed
3
Bath
3
Car
Plan Collection
Plan Collection
Plan Collection
Plan#142-1005
Starting at$1395
2500
Sq Ft
1
Story
4
Bed
3
Bath
2
Car
View All

Other Plans By This Designer

Plan Collection
Plan Collection
Plan Collection
Plan#164-1271
Starting at$1313
2680
Sq Ft
1
Story
4
Bed
3
Bath
2
Car
Plan Collection
Plan Collection
Plan Collection
Plan#164-1235
Starting at$938
1088
Sq Ft
1
Story
2
Bed
2
Bath
2
Car
Plan Collection
Plan Collection
Plan Collection
Plan#164-1142
Starting at$1313
2539
Sq Ft
2
Story
4
Bed
3.5
Bath
2
Car