3-Bedroom, 2838 Sq Ft Country Plan with Vaulted Ceiling

Country home (ThePlanCollection: Plan #208-1007)

Images/Plans copyrighted by designer. Photos may reflect homeowner modifications.

About House Plan #208-1007

Sq Ft
2838
Sq Ft
Bedrooms
3
Bedrooms
Bathroom
2
Baths
Half Baths
1
Half Baths
Bedrooms
0
Cars
Bedrooms
1.5
Stories
Bedrooms
50' 0'
Width
Bedrooms
54
Depth
Starting at$1145.00What's included
STEP 1Bedrooms
STEP 2Bedrooms
STEP 3Bedrooms

Subtotal:$0
Plan Collection

How much will it cost to build?

Estimate your costs based on your location and materials.

Free Cost Instant Estimator

Floor Plans

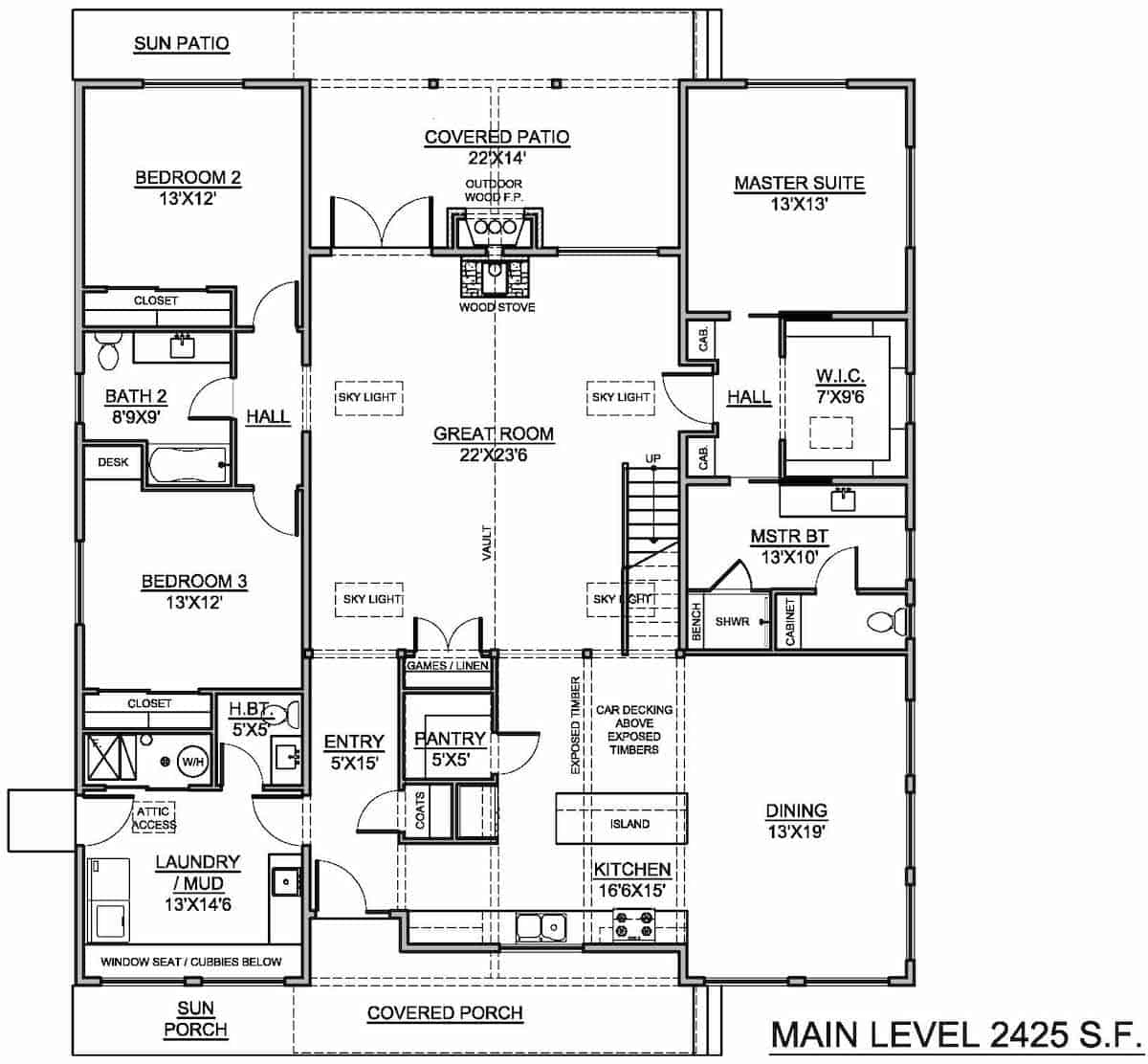
Floor Plan Main Level
Floor Plan Main Level
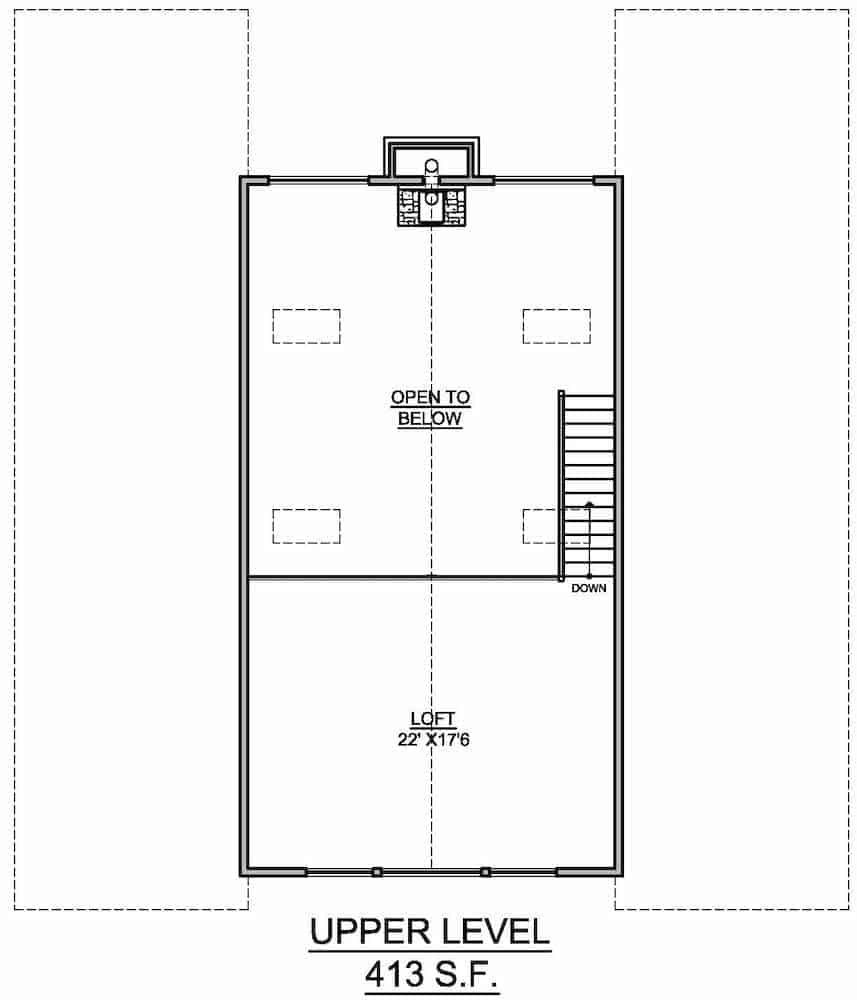
Floor Plan Bonus Room
Floor Plan Bonus Room
Plan Collection

Can I modify this plan?

Yes! This plan can be customized—contact us for a free quote.

Additional Notes from Designer

PLEASE NOTE: This designer's 5 sets, 8 sets & CADs all come with a PDF as well.

House Plan Description

This Country style home with Contemporary flair is a truly striking house both inside and out. Simple yet great design and relaxing ambiance make the plan a must-see in searching for your family’s dream house. The charming home's 1.5-story floor plan has 2838 square feet of living space and includes 3 bedrooms. You’ll love the vaulted Great Room with skylights, spacious laundry/mudroom with friend's entry, huge walk-in kitchen pantry, and large loft area overlooking the Great Room.

Home Details

Summary
Plan #:208-1007
Starting at:$1145.00
Floors:1.5
Bedrooms:3
Full Baths:2
Half Baths:1
Garage:
Square Footage
Heated Area:2838 Sq. Ft.
First Floor:2425 Sq. Ft.
Second Floor:413 Sq. Ft.
Unheated Area:
Dimensions
Architectural Styles
Exterior Wall Material
Vinyl SidingWood Siding
Roofing Type
Gable
Roof Pitch
3/126/12
Ceiling Height
8 Foot Ceiling
Special Feature
FireplaceDining RoomMud RoomFamily RoomMain Level LaundryLoftSplit BathroomStorageVaulted CeilingsOpen Floor Plan
Fireplaces
Two Fireplaces
Exterior Wall Framing
2x6
Building Lot Type
Flat Site
Kitchen Features
Kitchen IslandWalk-in PantryPeninsula/Eating Bar
Porches and Exterior Features
Covered Front PorchSundeckCovered Rear Patio
Master Suite Features
Main Floor MasterMaster BathroomWalk In ClosetSplit Master Bedroom

What’s Included

Most plan sets include the following:

icon text-secondary-400 includedCover sheet with Rendering on front

icon text-secondary-400 includedGeneral IRC notes page

icon text-secondary-400 includedFront & Rear Elevation Page

icon text-secondary-400 includedLeft / Right elevation page

icon text-secondary-400 includedMonolithic foundation plan

icon text-secondary-400 includedMain Floor Plan – Wood Frame

icon text-secondary-400 includedRoof slope and drainage Plan

icon text-secondary-400 includedRoof Framing Plan (Truss)

icon text-secondary-400 includedBuilding Section (wood frame)

icon text-secondary-400 includedMain Electrical Plan

What’s Not Included

These items are  NOT included:

icon text-secondary-400 includedArchitectural or Engineering Stamp - handled locally if required.

icon text-secondary-400 includedSite Plan - handled locally when required.

icon text-secondary-400 includedMechanical Drawings (location of heating and air equipment and ductwork) - your subcontractors handle this.

icon text-secondary-400 includedPlumbing Drawings (drawings showing the actual plumbing pipe sizes and locations) - your subcontractors handle this.

icon text-secondary-400 includedEnergy calculations - handled locally when required.

Related House Plans

Plan Collection
Plan Collection
Plan Collection
Plan#142-1180
Starting at$1345
2282
Sq Ft
1.5
Story
3
Bed
2.5
Bath
2
Car
Plan Collection
Plan Collection
Plan Collection
Plan#142-1166
Starting at$1395
2469
Sq Ft
1.5
Story
3
Bed
2
Bath
2
Car
Plan Collection
Plan Collection
Plan Collection
Plan#117-1094
Starting at$1095
2495
Sq Ft
1.5
Story
3
Bed
2.5
Bath
3
Car
View All

Other Plans By This Designer

Plan Collection
Plan Collection
Plan Collection
Plan#208-1005
Starting at$1145
1791
Sq Ft
1
Story
3
Bed
2
Bath
2
Car
Plan Collection
Plan Collection
Plan Collection
Plan#208-1025
Starting at$1145
2621
Sq Ft
1
Story
4
Bed
4.5
Bath
2
Car
Plan Collection
Plan Collection
Plan Collection
Plan#208-1027
Starting at$1145
1638
Sq Ft
1
Story
2
Bed
2
Bath
3
Car