3-Bedroom, 2874 Sq Ft Ranch Plan with Walk-in Pantry

Front elevation of Ranch home (ThePlanCollection: House Plan #117-1081)

Images/Plans copyrighted by designer. Photos may reflect homeowner modifications.

About House Plan #117-1081

Sq Ft
2874
Sq Ft
Bedrooms
3
Bedrooms
Bathroom
2
Baths
Half Baths
1
Half Baths
Bedrooms
3
Cars
Bedrooms
1
Stories
Bedrooms
81' 3'
Width
Bedrooms
61
Depth
Starting at$1345.00What's included
STEP 1Bedrooms
STEP 2Bedrooms
STEP 3Bedrooms

Subtotal:$0
Plan Collection

How much will it cost to build?

Estimate your costs based on your location and materials.

Free Cost Instant Estimator

Floor Plans

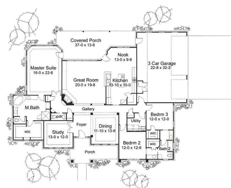
Floor Plan Main Level
Floor Plan Main Level
Plan Collection

Can I modify this plan?

Yes! This plan can be customized—contact us for a free quote.

House Plan Description

This single-story house plan has 2874 total square feet. Some of the special features of this plan include: Large Covered rear porch Wide open living spaces Jack and Jill Second Bath Spacious WIC in Master Bath Walk-in pantry Large Study

Home Details

Summary
Plan #:117-1081
Starting at:$1345.00
Floors:1
Bedrooms:3
Full Baths:2
Half Baths:1
Garage:
Square Footage
Heated Area:2874 Sq. Ft.
First Floor:2874 Sq. Ft.
Unheated Area:
Dimensions
Width:81' 3''
Ridge Height:25-12' 0''
Architectural Styles
Roof Pitch
7/12
Ceiling Height
9 Foot Ceiling
Special Feature
FireplaceDining RoomMain Level Laundry
Garage Type
Attached GarageSide Entry
Exterior Wall Framing
2x4
Kitchen Features
Kitchen IslandNook/Breakfast AreaWalk-in PantryPeninsula/Eating Bar
Porches and Exterior Features
Covered Rear Porch
Master Suite Features
Main Floor MasterMaster BathroomWalk In ClosetSplit Master Bedroom

What’s Included

Most plan sets include the following:

icon text-secondary-400 includedDetailed floor plans

icon text-secondary-400 includedExterior elevations

icon text-secondary-400 includedCabinet elevations

icon text-secondary-400 includedSections/Details

icon text-secondary-400 includedFraming plans

icon text-secondary-400 includedFoundation plans

icon text-secondary-400 includedElectrical layout

What’s Not Included

These items are  NOT included:

icon text-secondary-400 includedArchitectural or Engineering Stamp - handled locally if required.

icon text-secondary-400 includedSite Plan - handled locally when required.

icon text-secondary-400 includedMechanical Drawings (location of heating and air equipment and ductwork) - your subcontractors handle this.

icon text-secondary-400 includedPlumbing Drawings (drawings showing the actual plumbing pipe sizes and locations) - your subcontractors handle this.

icon text-secondary-400 includedEnergy calculations - handled locally when required.

Related House Plans

Plan Collection
Plan Collection
Plan Collection
Plan#142-1168
Starting at$1395
2597
Sq Ft
1
Story
3
Bed
2.5
Bath
2
Car
Plan Collection
Plan Collection
Plan Collection
Plan#106-1276
Starting at$1295
2344
Sq Ft
1
Story
3
Bed
2.5
Bath
2
Car
Plan Collection
Plan Collection
Plan Collection
Plan#142-1209
Starting at$1395
2854
Sq Ft
1
Story
3
Bed
2
Bath
3
Car
View All

Other Plans By This Designer

Plan Collection
Plan Collection
Plan Collection
Plan#117-1141
Starting at$895
1742
Sq Ft
1.5
Story
3
Bed
2.5
Bath
2
Car
Plan Collection
Plan Collection
Plan Collection
Plan#117-1104
Starting at$895
1421
Sq Ft
2
Story
3
Bed
2
Bath
2
Car
Plan Collection
Plan Collection
Plan Collection
Plan#117-1095
Starting at$1095
1879
Sq Ft
1
Story
3
Bed
2
Bath
2
Car