4-Bedroom, 2887 Sq Ft Luxury Plan with Balcony

Front elevation of Luxury home (ThePlanCollection: House Plan #190-1018)

Images/Plans copyrighted by designer. Photos may reflect homeowner modifications.

About House Plan #190-1018

Sq Ft
2887
Sq Ft
Bedrooms
4
Bedrooms
Bathroom
3
Baths
Half Baths
0
Half Baths
Bedrooms
2
Cars
Bedrooms
2
Stories
Bedrooms
70' 0'
Width
Bedrooms
74
Depth
Starting at$1150.00What's included
STEP 1Bedrooms
STEP 2Bedrooms
STEP 3Bedrooms

Subtotal:$0
Plan Collection

How much will it cost to build?

Estimate your costs based on your location and materials.

Free Cost Instant Estimator

Floor Plans

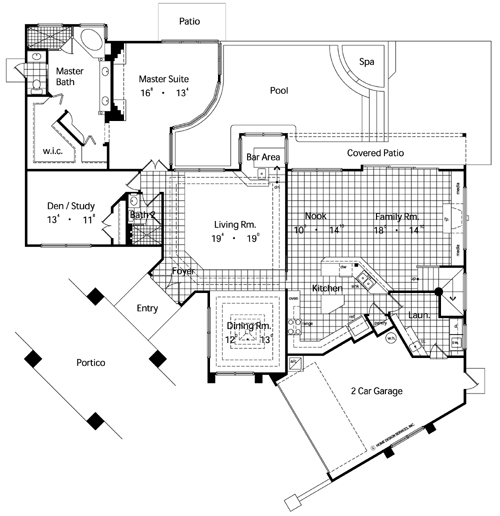
Floor Plan Main Level
Floor Plan Main Level
Floor Plan Upper Level
Floor Plan Upper Level
Plan Collection

Can I modify this plan?

Yes! This plan can be customized—contact us for a free quote.

House Plan Description

You and your family will fall in love with this luxurious home (Plan #190-1018). With 2887 square feet, 4 bedrooms and 3 full baths, this home is perfect for any growing family. The open floor concept allows for the kitchen to be easily accessible from the family room. The family room has a fireplace and gives access to the patio.

Home Details

Summary
Plan #:190-1018
Starting at:$1150.00
Floors:2
Bedrooms:4
Full Baths:3
Half Baths:0
Garage:
Square Footage
Heated Area:2887 Sq. Ft.
First Floor:2212 Sq. Ft.
Second Floor:675 Sq. Ft.
Unheated Area:
Garage:479 Sq. Ft.
Porch:298 Sq. Ft.
Dimensions
Depth:74' 1''
Ridge Height:27' 0''
Architectural Styles
Exterior Wall Material
Stucco
Roofing Type
Hip
Roofing Material
Wood Shakes
Roof Pitch
6/12
Ceiling Height
10 Foot Ceiling12 Foot Ceiling
Special Feature
FireplaceSwimming PoolDining RoomFamily RoomMain Level LaundryColor PhotosSplit BathroomBalconyOpen Floor Plan
Garage Type
Attached GarageFront Entry
Fireplaces
One Fireplace
Exterior Wall Framing
2x4
Building Lot Type
Flat Site
Kitchen Features
Kitchen IslandNook/Breakfast AreaPeninsula/Eating BarEat-In Kitchen
Porches and Exterior Features
Covered Front PorchPorticoPatio
Master Suite Features
Main Floor MasterMaster BathroomWalk In ClosetSplit Master Bedroom

What’s Included

Most plan sets include the following:

icon text-secondary-400 includedCover Sheet

icon text-secondary-400 includedNotes Page

icon text-secondary-400 includedFloor Plans

icon text-secondary-400 includedFoundation Plan

icon text-secondary-400 includedExterior Elevations & Section

icon text-secondary-400 includedRoof Plan – The roof plan shows a bird's eye view of the overall layout of the roof, ridges, valleys, and slopes. Our roofs are designed for trusses and a local truss manufacturer is needed to design the trusses for each home to comply with local codes and regulations

icon text-secondary-400 includedElectrical Plan

icon text-secondary-400 includedDetail Sheet(s)

What’s Not Included

These items are  NOT included:

icon text-secondary-400 includedArchitectural or Engineering Stamp - handled locally if required.

icon text-secondary-400 includedSite Plan - handled locally when required.

icon text-secondary-400 includedMechanical Drawings (location of heating and air equipment and ductwork) - your subcontractors handle this.

icon text-secondary-400 includedPlumbing Drawings (drawings showing the actual plumbing pipe sizes and locations) - your subcontractors handle this.

icon text-secondary-400 includedEnergy calculations - handled locally when required.

Related House Plans

Plan Collection
Plan Collection
Plan Collection
Plan#153-1020
Starting at$1200
2373
Sq Ft
2
Story
4
Bed
3
Bath
3
Car
Plan Collection
Plan Collection
Plan Collection
Plan#120-2176
Starting at$1255
3124
Sq Ft
2
Story
4
Bed
3.5
Bath
2
Car
Plan Collection
Plan Collection
Plan Collection
Plan#175-1132
Starting at$1900
3276
Sq Ft
2
Story
4
Bed
3.5
Bath
2
Car
View All

Other Plans By This Designer

Plan Collection
Plan Collection
Plan Collection
Plan#190-1014
Starting at$3150
6462
Sq Ft
2
Story
5
Bed
5.5
Bath
4
Car
Plan Collection
Plan Collection
Plan Collection
Plan#190-1005
Starting at$1050
2089
Sq Ft
1
Story
4
Bed
3
Bath
2
Car
Plan Collection
Plan Collection
Plan Collection
Plan#190-1009
Starting at$1450
3424
Sq Ft
1
Story
5
Bed
4
Bath
3
Car