3-Bedroom, 2971 Sq Ft Farmhouse Plan with Main Floor Master

The Plan Collection: Front Elevation of Farmhouse House # 189-1012

Images/Plans copyrighted by designer. Photos may reflect homeowner modifications.

About House Plan #189-1012

Sq Ft
2971
Sq Ft
Bedrooms
3
Bedrooms
Bathroom
2
Baths
Half Baths
1
Half Baths
Bedrooms
2
Cars
Bedrooms
2
Stories
Bedrooms
63' 10'
Width
Bedrooms
64
Depth
Starting at$1595.00What's included
STEP 1Bedrooms
STEP 2Bedrooms
STEP 3Bedrooms

Subtotal:$0
Plan Collection

How much will it cost to build?

Estimate your costs based on your location and materials.

Free Cost Instant Estimator

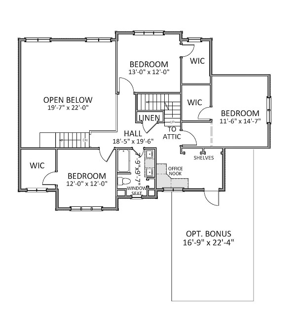
Floor Plans

Floor Plan Main Level
Floor Plan Main Level
Floor Plan Upper Level
Floor Plan Upper Level
Plan Collection

Can I modify this plan?

Yes! This plan can be customized—contact us for a free quote.

Additional Notes from Designer

Please Note: CAD Files for this plan typically take 2-3 additional business days to prepare. PLEASE NOTE: Some options (different foundations, RRR, etc.) may take an additional 2-3 business days to prepare! Please keep this in mind regarding shipping when ordering. Thank you!

Total square feet under the roof: 4397

House Plan Description

This remarkable farmhouse style home design has over 2970 square feet of living space. The two story floor plan includes 3 bedrooms and 2 1/2 bathrooms.

Home Details

Summary
Plan #:189-1012
Starting at:$1595.00
Floors:2
Bedrooms:3
Full Baths:2
Half Baths:1
Garage:
Square Footage
Heated Area:2971 Sq. Ft.
First Floor:1867 Sq. Ft.
Second Floor:1104 Sq. Ft.
Unheated Area:
Bonus Room:372 Sq. Ft.
Garage:532 Sq. Ft.
Porch:894 Sq. Ft.
Dimensions
Width:63' 10''
Depth:64' 10''
Architectural Styles
Exterior Wall Material
Vinyl SidingWood Siding
Roofing Type
Gable
Roofing Material
Asphalt Shingles
Roof Pitch
10/12
Ceiling Height
9 Foot Ceiling
Special Feature
FireplaceDining RoomHome OfficeMud RoomBonus RoomFamily RoomMain Level Laundry
Garage Type
Attached GarageSide Entry
Fireplaces
One Fireplace
Exterior Wall Framing
2x6
Building Lot Type
Flat Site
Kitchen Features
Kitchen IslandWalk-in PantryPeninsula/Eating BarEat-In Kitchen
Porches and Exterior Features
Wrap Around PorchCovered Front Porch
Master Suite Features
Main Floor MasterMaster BathroomWalk In ClosetSplit Master Bedroom

What’s Included

Most plan sets include the following:

icon text-secondary-400 includedFoundation Detail

icon text-secondary-400 includedFloor plans

icon text-secondary-400 includedExterior Elevations

icon text-secondary-400 includedCross-section elevations

icon text-secondary-400 includedInterior elevations

icon text-secondary-400 includedArial view

icon text-secondary-400 includedColor rendering of the front elevation

icon text-secondary-400 includedRoof plan

icon text-secondary-400 includedRoof Framing

icon text-secondary-400 includedCeiling Framing

icon text-secondary-400 includedFloor Framing

icon text-secondary-400 includedElectrical Layout

icon text-secondary-400 includedNotes and Details

What’s Not Included

These items are  NOT included:

icon text-secondary-400 includedArchitectural or Engineering Stamp - handled locally if required.

icon text-secondary-400 includedSite Plan - handled locally when required.

icon text-secondary-400 includedMechanical Drawings (location of heating and air equipment and ductwork) - your subcontractors handle this.

icon text-secondary-400 includedPlumbing Drawings (drawings showing the actual plumbing pipe sizes and locations) - your subcontractors handle this.

icon text-secondary-400 includedEnergy calculations - handled locally when required.

Related House Plans

Plan Collection
Plan Collection
Plan Collection
Plan#126-1297
Starting at$1715
2257
Sq Ft
2
Story
3
Bed
2.5
Bath
2
Car
Plan Collection
Plan Collection
Plan Collection
Plan#198-1006
Starting at$2395
2587
Sq Ft
2
Story
3
Bed
2.5
Bath
3
Car
Plan Collection
Plan Collection
Plan Collection
Plan#165-1090
Starting at$2050
3289
Sq Ft
2
Story
3
Bed
2.5
Bath
3
Car
View All

Other Plans By This Designer

Plan Collection
Plan Collection
Plan Collection
Plan#189-1118
Starting at$1595
2737
Sq Ft
2
Story
4
Bed
3
Bath
2
Car
Plan Collection
Plan Collection
Plan Collection
Plan#189-1013
Starting at$1595
3263
Sq Ft
2
Story
5
Bed
3.5
Bath
2
Car
Plan Collection
Plan Collection
Plan Collection
Plan#189-1135
Starting at$1595
2954
Sq Ft
1
Story
3
Bed
3
Bath
3
Car