Estimate your costs based on your location and materials.
Yes! This plan can be customized—contact us for a free quote.
Yes! This plan can be customized—contact us for a free quote.
Optional Foundations are considered modifications so please send us a modification request if you would like a free quote. Thank you! PLEASE NOTE! Any options that are ordered such as RRR or 2x6 conversion will each take 4-7 business days to complete BEFORE the plans are sent. Materials Lists can take up to 14 business days to complete BEFORE plans are sent.
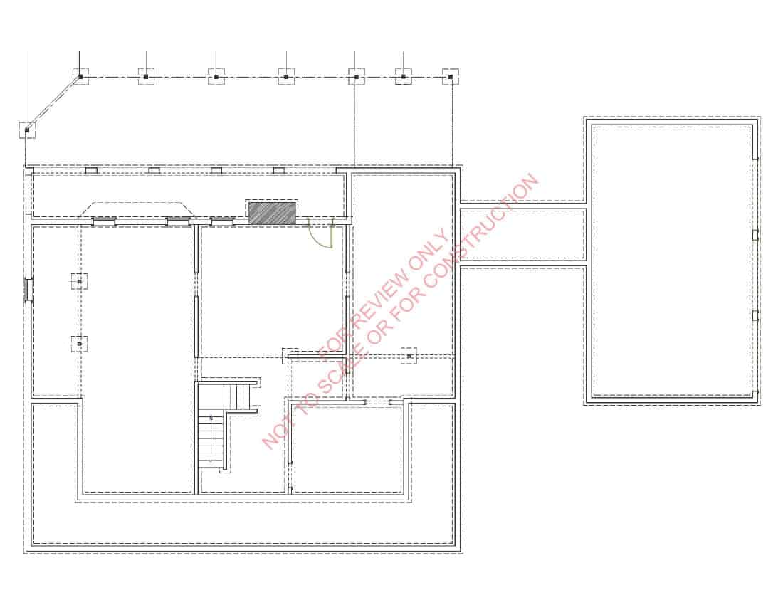
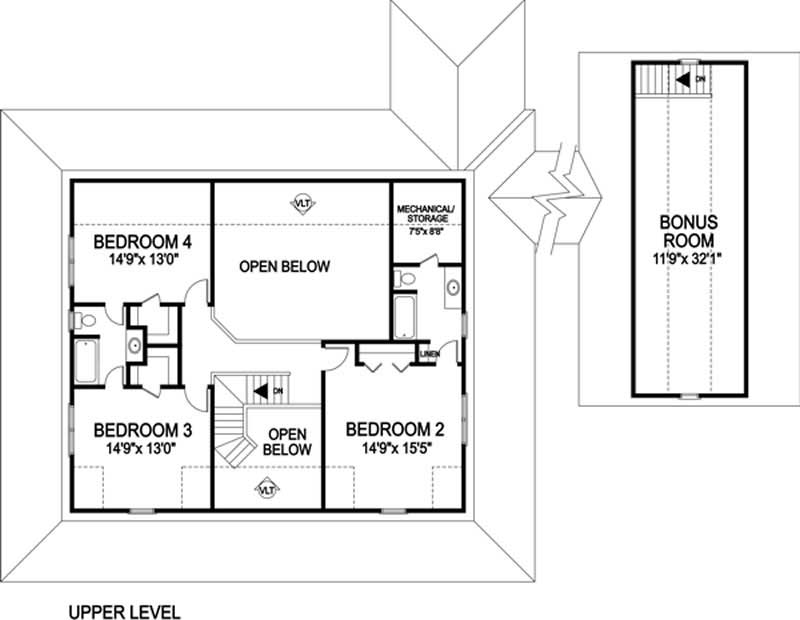
This country house plan has a lower level is an open design with very little wasted space. Flanking the two-story entry are the living and dining rooms, each measuring nearly 15'x 12'. Beyond the bridge above the entry is a 19'x17' two story family room with a fireplace. The spacious kitchen is open to the family room and features a breakfast bar and a built-in table in the cook top island. The laundry room includes a laundry tub. The master suite includes a bayed 14'-9 x 18'-5 bedroom and a beautiful corner his & hers bath/closet arrangement....
Estimate your costs based on your location and materials.
All sales of house plans, modifications, and other products found on this site are final. No refunds or exchanges can be given once your order has begun the fulfillment process. Please see our Policies for additional information.
All plans offered on ThePlanCollection.com are designed to conform to the local building codes when and where the original plan was drawn.
The homes as shown in photographs and renderings may differ from the actual blueprints. For more detailed information, please review the floor plan images herein carefully.
Estimate your costs based on your location and materials.