3-Bedroom, 2981 Sq Ft Craftsman Plan with Family Room

Front elevation of Craftsman home (ThePlanCollection: House Plan #213-1003)

Images/Plans copyrighted by designer. Photos may reflect homeowner modifications.

About House Plan #213-1003

Sq Ft
2981
Sq Ft
Bedrooms
3
Bedrooms
Bathroom
3
Baths
Half Baths
1
Half Baths
Bedrooms
3
Cars
Bedrooms
2
Stories
Bedrooms
84' 11'
Width
Bedrooms
62
Depth
Starting at$1300.00What's included
STEP 1Bedrooms
STEP 2Bedrooms
STEP 3Bedrooms

Subtotal:$0
Plan Collection

How much will it cost to build?

Estimate your costs based on your location and materials.

Free Cost Instant Estimator

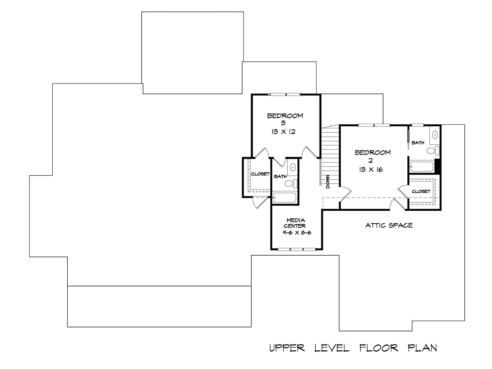
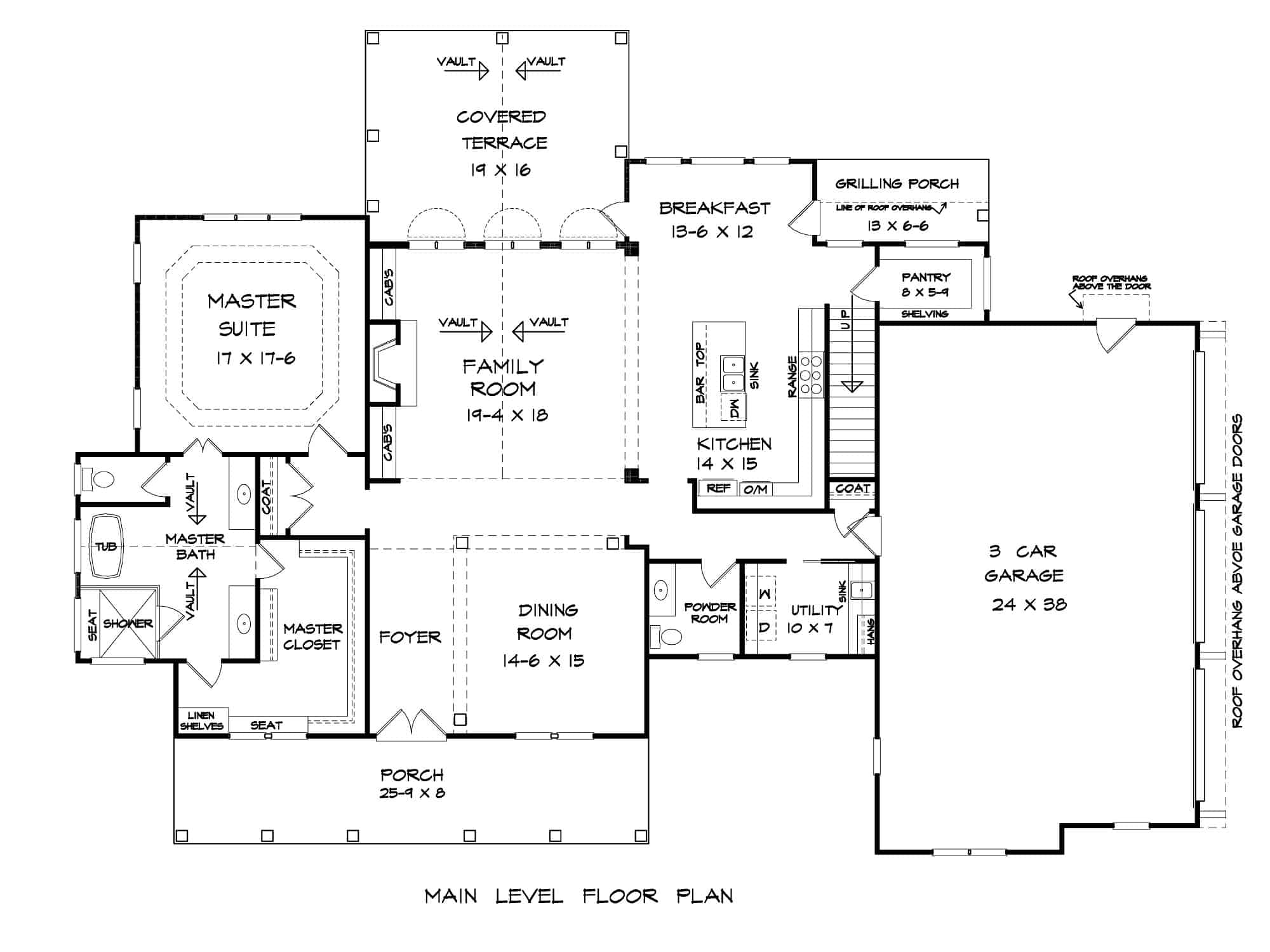
Floor Plans

Floor Plan First Story
Floor Plan First Story
Floor Plan Second Story
Floor Plan Second Story
Plan Collection

Can I modify this plan?

Yes! This plan can be customized—contact us for a free quote.

Additional Notes from Designer

Note 1: Alternative foundations for this plan are available as a modification. Please complete and submit our "Modify this Plan" form to get a free quote.

Note 2: Porch sq ft figures may include any deck sq ft as well.

House Plan Description

This impressive Traditional home with Craftsman touches is 2,981 square feet with 3 bedrooms, 3.5 baths, and a 3-car garage. Other features of this lovely home include:

  • Family Room
  • Walk-in Pantry
  • Mudroom
  • Master Bedroom with Walk-in Closet
  • Media Center
  • Attic Space

Home Details

Summary
Plan #:213-1003
Starting at:$1300.00
Floors:2
Bedrooms:3
Full Baths:3
Half Baths:1
Garage:
Square Footage
Heated Area:2981 Sq. Ft.
First Floor:2235 Sq. Ft.
Second Floor:746 Sq. Ft.
Unheated Area:
Dimensions
Width:84' 11''
Depth:62' 4''
Architectural Styles
Exterior Wall Material
Vinyl SidingWood Siding
Roofing Type
Gable
Roofing Material
Metal
Roof Pitch
10/12
Ceiling Height
9 Foot Ceiling
Special Feature
Dining RoomMud RoomFamily RoomMain Level LaundryMedia RoomSplit BathroomStorageVaulted CeilingsOpen Floor Plan
Garage Type
Attached GarageSide Entry
Fireplaces
One Fireplace
Exterior Wall Framing
2x4
Building Lot Type
Flat Site
Kitchen Features
Kitchen IslandNook/Breakfast AreaWalk-in Pantry
Porches and Exterior Features
Covered Front PorchCovered Rear Patio
Master Suite Features
Main Floor MasterMaster BathroomWalk In ClosetSplit Master Bedroom

What’s Included

Most plan sets include the following:

What’s Not Included

These items are  NOT included:

Related House Plans

Plan Collection
Plan Collection
Plan Collection
Plan#116-1100
Starting at$0
2269
Sq Ft
2
Story
3
Bed
3
Bath
2
Car
Plan Collection
Plan Collection
Plan Collection
Plan#117-1103
Starting at$1345
2847
Sq Ft
2
Story
3
Bed
3
Bath
3
Car
Plan Collection
Plan Collection
Plan Collection
Plan#106-1324
Starting at$1695
2484
Sq Ft
2
Story
3
Bed
3.5
Bath
3
Car
View All

Other Plans By This Designer

Plan Collection
Plan Collection
Plan Collection
Plan#213-1004
Starting at$1400
3061
Sq Ft
1
Story
3
Bed
3.5
Bath
3
Car
Plan Collection
Plan Collection
Plan Collection
Plan#213-1009
Starting at$1400
3277
Sq Ft
2
Story
4
Bed
4.5
Bath
3
Car
Plan Collection
Plan Collection
Plan Collection
Plan#213-1019
Starting at$1400
3990
Sq Ft
1
Story
4
Bed
4.5
Bath
3
Car