Ranch Multi-Unit with 2 Bedrooms, 1435-1563 Sq Ft Per Unit

Front elevation of Multi-Unit home (ThePlanCollection: House Plan #101-1035)

Images/Plans copyrighted by designer. Photos may reflect homeowner modifications.

About House Plan #101-1035

Sq Ft
2998
Sq Ft
Bedrooms
2
Bedrooms
Bathroom
2
Baths
Half Baths
0
Half Baths
Bedrooms
2
Cars
Bedrooms
1
Stories
Bedrooms
87' 0'
Width
Bedrooms
52
Depth
Starting at$1950.00What's included
STEP 1Bedrooms
STEP 2Bedrooms
STEP 3Bedrooms

Subtotal:$0
Plan Collection

How much will it cost to build?

Estimate your costs based on your location and materials.

Free Cost Instant Estimator

Floor Plans

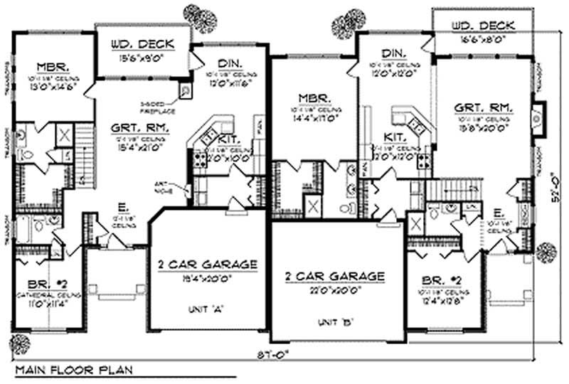
MAIN FLOOR PLAN
MAIN FLOOR PLAN
Plan Collection

Can I modify this plan?

Yes! This plan can be customized—contact us for a free quote.

Additional Notes from Designer

Please Note: All specs are per unit. However, total square footage, width, and depth are all units combined.

Main floor square footage A:1435 B:1563

House Plan Description

This multi-unit house plan has very traditional and pleasing floor plans, no one would be unhappy with this set-up. The total square footage, width, depth, and pitch are all both units combined. Main floor square footage A:1435 B:1563

Home Details

Summary
Plan #:101-1035
Starting at:$1950.00
Floors:1
Bedrooms:2
Full Baths:2
Half Baths:0
Garage:
Square Footage
Heated Area:2998 Sq. Ft.
First Floor:1440 Sq. Ft.
Unheated Area:
Dimensions
Architectural Styles
Exterior Wall Material
Aluminum SidingVinyl SidingBrickWood Siding
Roof Pitch
8/12
Special Feature
Main Level LaundryOpen Floor Plan
Garage Type
Front Entry
Fireplaces
One Fireplace

What’s Included

Most plan sets include the following:

icon text-secondary-400 includedFront, Back & Side Elevations

icon text-secondary-400 includedFloor Plans

icon text-secondary-400 includedElectrical Layout (location of outlets, switches, etc. - it does not have wiring schematics)

icon text-secondary-400 includedRoof Plan (Birdseye view)

icon text-secondary-400 includedFoundation Layout

icon text-secondary-400 includedWall & Stair Sections

icon text-secondary-400 includedCross Section

icon text-secondary-400 includedKitchen Layout

icon text-secondary-400 includedGeneral Notes

What’s Not Included

These items are  NOT included:

icon text-secondary-400 includedArchitectural or Engineering Stamp - handled locally if required.

icon text-secondary-400 includedSite Plan - handled locally when required.

icon text-secondary-400 includedMechanical Drawings (location of heating and air equipment and ductwork) - your subcontractors handle this.

icon text-secondary-400 includedPlumbing Drawings (drawings showing the actual plumbing pipe sizes and locations) - your subcontractors handle this.

icon text-secondary-400 includedFraming layouts with beam sizes and locations.

icon text-secondary-400 includedEnergy calculations - handled locally when required.

Related House Plans

Plan Collection
Plan Collection
Plan Collection
Plan#101-1323
Starting at$0
2683
Sq Ft
1
Story
2
Bed
2
Bath
2
Car
Plan Collection
Plan Collection
Plan Collection
Plan#101-1837
Starting at$0
3122
Sq Ft
1
Story
2
Bed
2
Bath
2
Car
Plan Collection
Plan Collection
Plan Collection
Plan#101-1065
Starting at$0
2776
Sq Ft
1
Story
2
Bed
2
Bath
0
Car
View All

Other Plans By This Designer

Plan Collection
Plan Collection
Plan Collection
Plan#101-2006
Starting at$0
4724
Sq Ft
2
Story
4
Bed
4.5
Bath
4
Car
Plan Collection
Plan Collection
Plan Collection
Plan#101-2024
Starting at$1180
3235
Sq Ft
1
Story
5
Bed
3.5
Bath
3
Car
Plan Collection
Plan Collection
Plan Collection
Plan#101-2028
Starting at$0
4406
Sq Ft
2
Story
4
Bed
3.5
Bath
4
Car