4-Bedroom, 3031 Sq Ft European Plan with Mud Room

European style home (ThePlanCollection: Plan #204-1016)

Images/Plans copyrighted by designer. Photos may reflect homeowner modifications.

About House Plan #204-1016

Sq Ft
3031
Sq Ft
Bedrooms
4
Bedrooms
Bathroom
3
Baths
Half Baths
1
Half Baths
Bedrooms
2
Cars
Bedrooms
1.5
Stories
Bedrooms
49' 11'
Width
Bedrooms
77
Depth
Starting at$1595.00What's included
STEP 1Bedrooms
STEP 2Bedrooms
STEP 3Bedrooms

Subtotal:$0
Plan Collection

How much will it cost to build?

Estimate your costs based on your location and materials.

Free Cost Instant Estimator

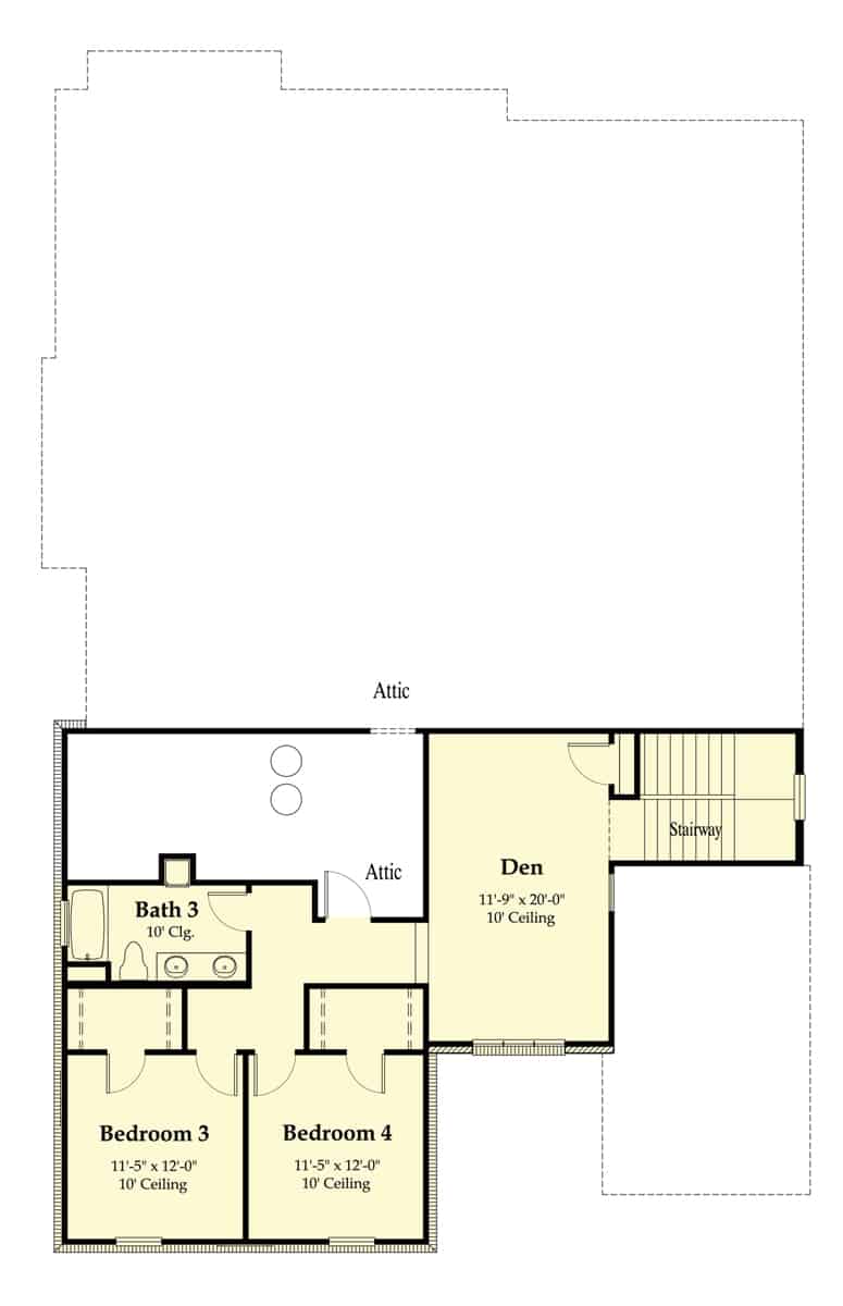
Floor Plans

Floor Plan Main Level
Floor Plan Main Level
Floor Plan Upper Level
Floor Plan Upper Level
Plan Collection

Can I modify this plan?

Yes! This plan can be customized—contact us for a free quote.

Additional Notes from Designer

Please Note: The house plans by this designer do NOT include framing plans.

House Plan Description

Here is something for someone who loves a spacious and luxurious European Cottage style home with outdoor living. It has a total heated-cooled area of 3,031 square feet with a superb 667-square-foot 2-car garage. The Dutch Gable roof treatment with dark brown tiles and attention to detail in the accents give this house its curb appeal. The house is sure to rise on top of your must-have list for the family.

The home's main entrance door ushers you to the living room, dining area, and kitchen, all within an open floor plan. In the living room you will find a...

Home Details

Summary
Plan #:204-1016
Starting at:$1595.00
Floors:1.5
Bedrooms:4
Full Baths:3
Half Baths:1
Garage:
Square Footage
Heated Area:3031 Sq. Ft.
First Floor:2211 Sq. Ft.
Second Floor:820 Sq. Ft.
Unheated Area:
Garage:667 Sq. Ft.
Porch:586 Sq. Ft.
Dimensions
Width:49' 11''
Depth:77' 10''
Architectural Styles
Exterior Wall Material
Vinyl SidingStuccoWood Siding
Roofing Type
HipDutch Gable
Roofing Material
Asphalt ShinglesMetal
Roof Pitch
9/12
Ceiling Height
10 Foot Ceiling11 Foot Ceiling
Special Feature
FireplaceDining RoomMud RoomFamily RoomMain Level LaundryColor PhotosSplit BathroomStorageDenOpen Floor PlanInterior Photos
Garage Type
Attached GarageFront Entry
Fireplaces
Two Fireplaces
Exterior Wall Framing
2x4
Kitchen Features
Kitchen IslandWalk-in PantryPeninsula/Eating Bar
Porches and Exterior Features
Covered Front PorchCovered Rear Porch
Master Suite Features
Main Floor MasterMaster BathroomWalk In ClosetSplit Master Bedroom

What’s Included

Most plan sets include the following:

icon text-secondary-400 includedExterior Elevations

icon text-secondary-400 includedRoof Plan

icon text-secondary-400 includedFloor Plan

icon text-secondary-400 includedFoundation Plan

icon text-secondary-400 includedCabinet Elevations

icon text-secondary-400 includedRoom Schedule

icon text-secondary-400 includedWindow Schedule

icon text-secondary-400 includedDoor Schedule

icon text-secondary-400 includedElectrical Plan

icon text-secondary-400 includedWall Sections

icon text-secondary-400 includedGeneral Notes

What’s Not Included

These items are  NOT included:

icon text-secondary-400 includedArchitectural or Engineering Stamp - handled locally if required.

icon text-secondary-400 includedSite Plan - handled locally when required.

icon text-secondary-400 includedMechanical Drawings (location of heating and air equipment and ductwork) - your subcontractors handle this.

icon text-secondary-400 includedPlumbing Drawings (drawings showing the actual plumbing pipe sizes and locations) - your subcontractors handle this.

icon text-secondary-400 includedEnergy calculations - handled locally when required.

Related House Plans

Plan Collection
Plan Collection
Plan Collection
Plan#142-1185
Starting at$1395
2742
Sq Ft
1.5
Story
4
Bed
3.5
Bath
2
Car
Plan Collection
Plan Collection
Plan Collection
Plan#161-1001
Starting at$2200
3339
Sq Ft
1.5
Story
4
Bed
3.5
Bath
3
Car
Plan Collection
Plan Collection
Plan Collection
Plan#153-1990
Starting at$1850
3084
Sq Ft
1.5
Story
4
Bed
3.5
Bath
2
Car
View All

Other Plans By This Designer

Plan Collection
Plan Collection
Plan Collection
Plan#204-1020
Starting at$1895
4443
Sq Ft
1.5
Story
4
Bed
5
Bath
3
Car
Plan Collection
Plan Collection
Plan Collection
Plan#204-1033
Starting at$1495
2676
Sq Ft
1
Story
4
Bed
3.5
Bath
3
Car
Plan Collection
Plan Collection
Plan Collection
Plan#204-1002
Starting at$1155
1793
Sq Ft
1
Story
4
Bed
2
Bath
2
Car