3-Bedroom, 3045 Sq Ft Craftsman Plan with Walk-in Pantry

Front elevation of Craftsman home (ThePlanCollection: House Plan #195-1139)

Images/Plans copyrighted by designer. Photos may reflect homeowner modifications.

About House Plan #195-1139

Sq Ft
3045
Sq Ft
Bedrooms
3
Bedrooms
Bathroom
2
Baths
Half Baths
1
Half Baths
Bedrooms
2
Cars
Bedrooms
2
Stories
Bedrooms
107' 0'
Width
Bedrooms
58
Depth
Starting at$1160.00What's included
STEP 1Bedrooms
STEP 2Bedrooms
STEP 3Bedrooms

Subtotal:$0
Plan Collection

How much will it cost to build?

Estimate your costs based on your location and materials.

Free Cost Instant Estimator

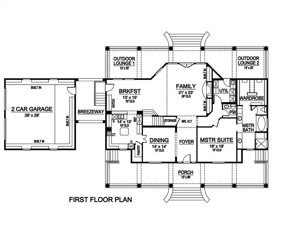
Floor Plans

Floor Plan Main Level
Floor Plan Main Level
Floor Plan Upper Level
Floor Plan Upper Level
Plan Collection

Can I modify this plan?

Yes! This plan can be customized—contact us for a free quote.

Additional Notes from Designer

This designer does not offer ICF!

Total square feet under the roof is 6073 square feet.

House Plan Description

This lovely Craftsman style home with Cottage influences (House Plan #195-1139) has 3045 square feet of living space. The 2 story floor plan includes 3 bedrooms.

Home Details

Summary
Plan #:195-1139
Starting at:$1160.00
Floors:2
Bedrooms:3
Full Baths:2
Half Baths:1
Garage:
Square Footage
Heated Area:3045 Sq. Ft.
First Floor:2301 Sq. Ft.
Second Floor:744 Sq. Ft.
Unheated Area:
Bonus Room:489 Sq. Ft.
Garage:841 Sq. Ft.
Dimensions
Architectural Styles
Exterior Wall Material
Vinyl SidingWood Siding
Roofing Type
Hip
Roofing Material
Asphalt Shingles
Ceiling Height
10 Foot Ceiling9 Foot Ceiling
Special Feature
FireplaceDining RoomBonus RoomFamily RoomMain Level LaundrySplit BathroomStorageOpen Floor Plan
Garage Type
Attached GarageSide Entry
Fireplaces
One Fireplace
Exterior Wall Framing
2x6
Kitchen Features
Kitchen IslandNook/Breakfast AreaWalk-in PantryPeninsula/Eating BarEat-In Kitchen
Porches and Exterior Features
Wrap Around PorchBreezewayPatio
Master Suite Features
Main Floor MasterMaster BathroomWalk In ClosetSplit Master Bedroom

What’s Included

Most plan sets include the following:

icon text-secondary-400 includedDimension Plan

icon text-secondary-400 includedNotation Plan

icon text-secondary-400 includedElectrical Layout

icon text-secondary-400 includedElevations

icon text-secondary-400 includedRoof Plan

icon text-secondary-400 includedGeneral Specifications

icon text-secondary-400 includedGeneral Details

What’s Not Included

These items are  NOT included:

icon text-secondary-400 includedArchitectural or Engineering Stamp - handled locally if required.

icon text-secondary-400 includedSite Plan - handled locally when required.

icon text-secondary-400 includedMechanical Drawings (location of heating and air equipment and ductwork) - your subcontractors handle this.

icon text-secondary-400 includedPlumbing Drawings (drawings showing the actual plumbing pipe sizes and locations) - your subcontractors handle this.

icon text-secondary-400 includedEnergy calculations - handled locally when required.

Related House Plans

Plan Collection
Plan Collection
Plan Collection
Plan#198-1006
Starting at$2395
2587
Sq Ft
2
Story
3
Bed
2.5
Bath
3
Car
Plan Collection
Plan Collection
Plan Collection
Plan#165-1090
Starting at$2050
3289
Sq Ft
2
Story
3
Bed
2.5
Bath
3
Car
Plan Collection
Plan Collection
Plan Collection
Plan#115-1245
Starting at$1800
2805
Sq Ft
2
Story
3
Bed
2
Bath
3
Car
View All

Other Plans By This Designer

Plan Collection
Plan Collection
Plan Collection
Plan#195-1216
Starting at$3295
7587
Sq Ft
2
Story
5
Bed
6.5
Bath
3
Car
Plan Collection
Plan Collection
Plan Collection
Plan#195-1307
Starting at$7995
12720
Sq Ft
2
Story
5
Bed
6.5
Bath
5
Car
Plan Collection
Plan Collection
Plan Collection
Plan#195-1127
Starting at$9995
14727
Sq Ft
2
Story
9
Bed
8.5
Bath
9
Car