4-Bedroom, 3055 Sq Ft Traditional Plan with Main Floor Master

Front elevation of Traditional home (ThePlanCollection: House Plan #180-1014)

Images/Plans copyrighted by designer. Photos may reflect homeowner modifications.

About House Plan #180-1014

Sq Ft
3055
Sq Ft
Bedrooms
4
Bedrooms
Bathroom
3
Baths
Half Baths
1
Half Baths
Bedrooms
2
Cars
Bedrooms
2
Stories
Bedrooms
72' 8'
Width
Bedrooms
69
Depth
Starting at$1550.00What's included
STEP 1Bedrooms
STEP 2Bedrooms
STEP 3Bedrooms

Subtotal:$0
Plan Collection

How much will it cost to build?

Estimate your costs based on your location and materials.

Free Cost Instant Estimator

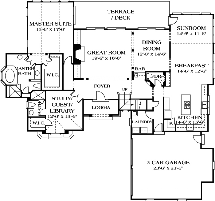
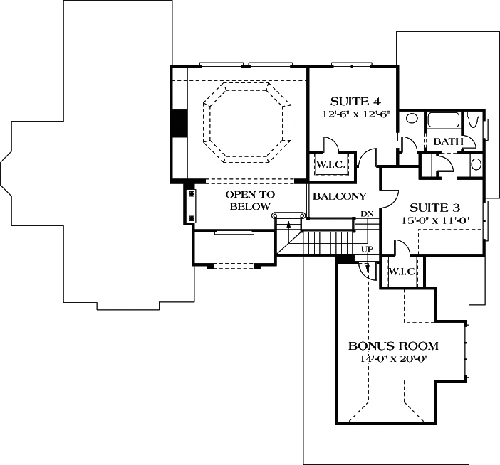
Floor Plans

Floor Plan Main Level
Floor Plan Main Level
Floor Plan Upper Level
Floor Plan Upper Level
Plan Collection

Can I modify this plan?

Yes! This plan can be customized—contact us for a free quote.

Additional Notes from Designer

PLEASE NOTE!! Due to COVID-19, this designer is not able to fulfill REPRODUCIBLE sets at this time. Please order a PDF or CAD file which will be emailed to you. Thank you for your understanding!

House Plan Description

Home Details

Summary
Plan #:180-1014
Starting at:$1550.00
Floors:2
Bedrooms:4
Full Baths:3
Half Baths:1
Garage:
Square Footage
Heated Area:3055 Sq. Ft.
First Floor:2398 Sq. Ft.
Second Floor:657 Sq. Ft.
Unheated Area:
Bonus Room:374 Sq. Ft.
Garage:617 Sq. Ft.
Dimensions
Width:72' 8''
Depth:69' 1''
Architectural Styles
Exterior Wall Material
StuccoRock/Stone
Roofing Type
GableHalf Hip
Roofing Material
Asphalt Shingles
Ceiling Height
10 Foot Ceiling9 Foot Ceiling
Special Feature
FireplaceGuest RoomBonus RoomMain Level LaundryColor PhotosColor PhotosBalconyOpen Floor Plan
Garage Type
Attached GarageCourtyard Entry
Fireplaces
One Fireplace
Exterior Wall Framing
2x4
Kitchen Features
Kitchen IslandNook/Breakfast AreaWalk-in PantryPeninsula/Eating BarEat-In Kitchen
Porches and Exterior Features
Covered Front Porch
Master Suite Features
Main Floor MasterMaster BathroomWalk In Closet

What’s Included

Most plan sets include the following:

icon text-secondary-400 includedFoundation Plan

icon text-secondary-400 includedFloor Plans

icon text-secondary-400 includedFraming Plans

icon text-secondary-400 includedExterior Elevations

icon text-secondary-400 includedRoof Plan

icon text-secondary-400 includedTypical Building Section

icon text-secondary-400 includedTypical Foundation Details

icon text-secondary-400 includedWall Section

icon text-secondary-400 includedElectrical Layout

What’s Not Included

These items are  NOT included:

icon text-secondary-400 includedArchitectural or Engineering Stamp - handled locally if required.

icon text-secondary-400 includedSite Plan - handled locally when required.

icon text-secondary-400 includedMechanical Drawings (location of heating and air equipment and ductwork) - your subcontractors handle this.

icon text-secondary-400 includedPlumbing Drawings (drawings showing the actual plumbing pipe sizes and locations) - your subcontractors handle this.

icon text-secondary-400 includedEnergy calculations - handled locally when required.

Related House Plans

Plan Collection
Plan Collection
Plan Collection
Plan#153-1020
Starting at$1200
2373
Sq Ft
2
Story
4
Bed
3
Bath
3
Car
Plan Collection
Plan Collection
Plan Collection
Plan#153-1786
Starting at$1200
2363
Sq Ft
2
Story
4
Bed
3
Bath
2
Car
Plan Collection
Plan Collection
Plan Collection
Plan#120-2176
Starting at$1255
3124
Sq Ft
2
Story
4
Bed
3.5
Bath
2
Car
View All

Other Plans By This Designer

Plan Collection
Plan Collection
Plan Collection
Plan#180-1033
Starting at$2400
8126
Sq Ft
3
Story
5
Bed
5.5
Bath
4
Car
Plan Collection
Plan Collection
Plan Collection
Plan#180-1043
Starting at$2400
9104
Sq Ft
2
Story
5
Bed
6.5
Bath
3
Car
Plan Collection
Plan Collection
Plan Collection
Plan#180-1012
Starting at$1350
2894
Sq Ft
2
Story
4
Bed
3.5
Bath
2
Car