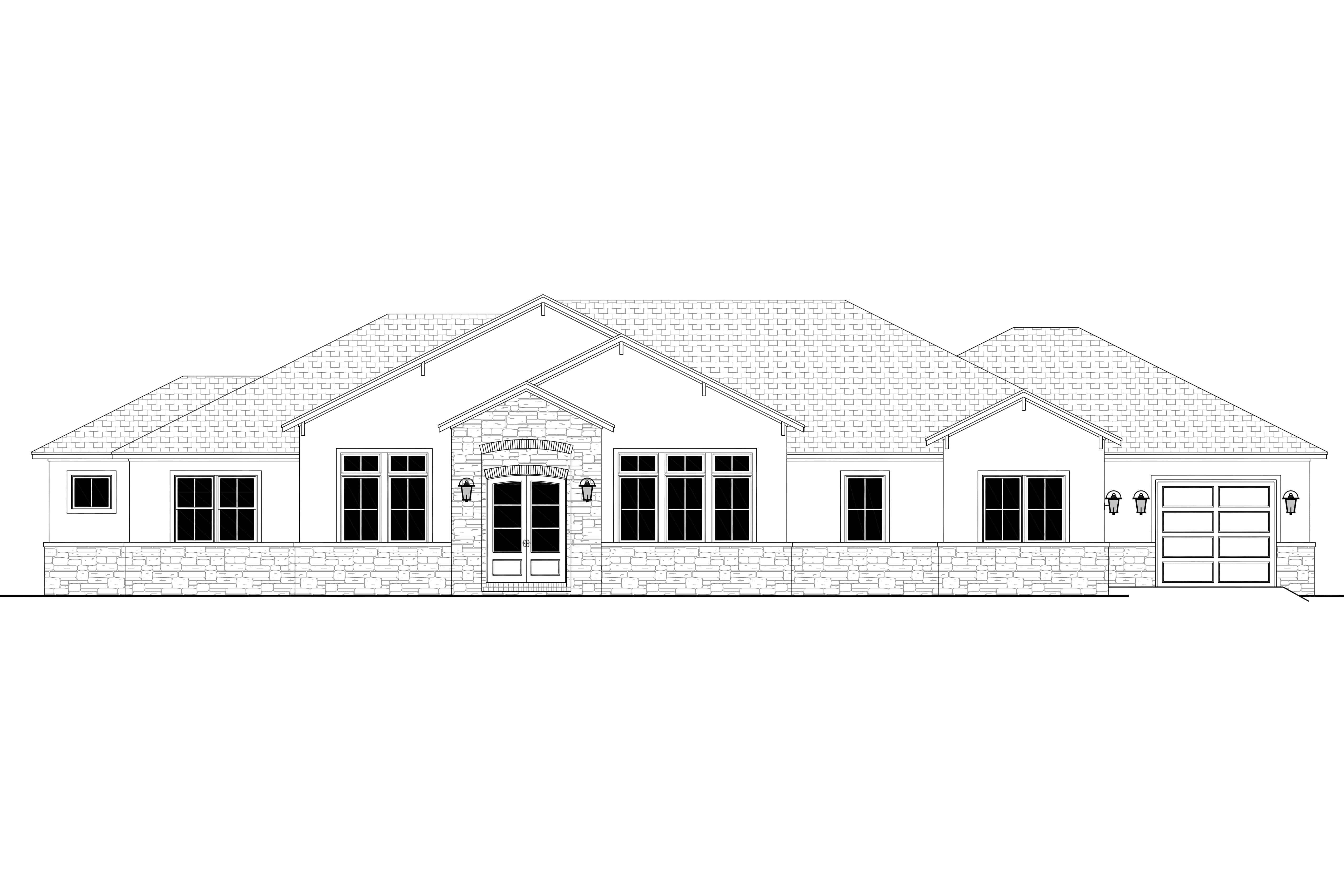
3-Bedroom, 3078 Sq Ft Modern Farmhouse Plan with Split Master Bedroom

Front elevation of Contemporary home (ThePlanCollection: House Plan #142-1275)

Images/Plans copyrighted by designer. Photos may reflect homeowner modifications.

About House Plan #142-1275

Sq Ft
3078
Sq Ft
Bedrooms
3
Bedrooms
Bathroom
3
Baths
Half Baths
1
Half Baths
Bedrooms
3
Cars
Bedrooms
1
Stories
Bedrooms
94' 0'
Width
Bedrooms
64
Depth
Starting at$1545.00What's included
STEP 1Bedrooms
STEP 2Bedrooms
STEP 3Bedrooms

Subtotal:$0
Plan Collection

How much will it cost to build?

Estimate your costs based on your location and materials.

Free Cost Instant Estimator

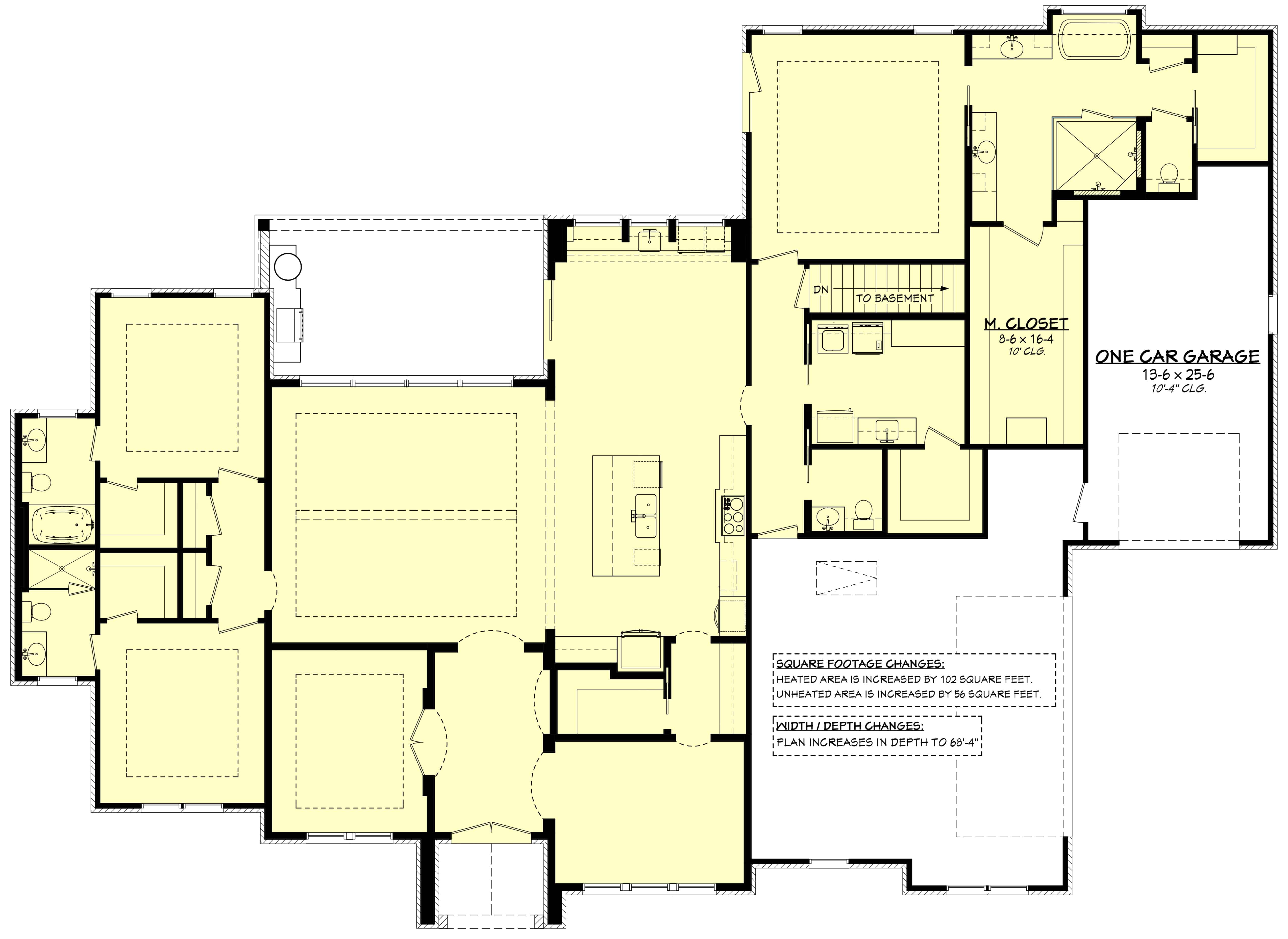
Floor Plans

Floor Plan First Story
Floor Plan First Story
Basement Option Layout
Basement Option Layout
Plan Collection

Can I modify this plan?

Yes! This plan can be customized—contact us for a free quote.

Additional Notes from Designer

On some plans, Basement Foundations, Walkout Basement Foundations & 2x6 Conversions could take up to ONE WEEK to produce. Materials Lists could take up to FOUR WEEKS to produce and they will be for the ORIGINAL plan! Any modifications will NOT be reflected on the Materials List. NOTE FROM DESIGNER: If you purchase a CAD, you will automatically receive the unlimited build license - no need to purchase separately!

House Plan Description

Welcome to this remarkable 3078 square foot house!  A perfect blend of modern and traditional styles that includes 3 bedrooms and 3.5 baths. The volume ceilings, arch details, and Texas ranch-style create a welcoming atmosphere for any family. Your friends will be jealous as you enjoy the view from your large rear porch with plenty of room to entertain! Explore the additional features this gem offers - from its excellent master suite to its guest suites, Study/flex space, laundry room, and extra storage space! This home is just what every family needs and deserves.

Home Details

Summary
Plan #:142-1275
Starting at:$1545.00
Floors:1
Bedrooms:3
Full Baths:3
Half Baths:1
Garage:
Square Footage
Heated Area:3078 Sq. Ft.
First Floor:3078 Sq. Ft.
Unheated Area:
First Floor:1282 Sq. Ft.
Garage:917 Sq. Ft.
Porch:314 Sq. Ft.
Dimensions
Depth:64' 4''
Architectural Styles
Roofing Type
GableHip
Roofing Material
Asphalt Shingles
Roof Pitch
3/126/12
Ceiling Height
10 Foot Ceiling11 Foot Ceiling12 Foot Ceiling
Special Feature
Dining RoomMain Level LaundryLibraryColor PhotosColor PhotosStorageInterior PhotosInterior Photos
Garage Type
Attached Garage
Exterior Wall Framing
2x4
Kitchen Features
Kitchen Island
Porches and Exterior Features
Covered Rear Porch
Master Suite Features
Split Master Bedroom

What’s Included

Most plan sets include the following:

icon text-secondary-400 includedCover sheet

icon text-secondary-400 includedFoundation plan

icon text-secondary-400 includedDimensional floor plan

icon text-secondary-400 includedExterior views

icon text-secondary-400 includedRoof plan

icon text-secondary-400 includedElectrical layout

icon text-secondary-400 includedWall section(s)

icon text-secondary-400 includedBuilding section(s)

icon text-secondary-400 includedCabinet elevations

What’s Not Included

These items are  NOT included:

icon text-secondary-400 includedArchitectural or Engineering Stamp - handled locally if required.

icon text-secondary-400 includedSite Plan - handled locally when required.

icon text-secondary-400 includedMechanical Drawings (location of heating and air equipment and ductwork) - your subcontractors handle this.

icon text-secondary-400 includedPlumbing Drawings (drawings showing the actual plumbing pipe sizes and locations) - your subcontractors handle this.

icon text-secondary-400 includedEnergy calculations - handled locally when required.

icon text-secondary-400 includedNo Framing

Related House Plans

Plan Collection
Plan Collection
Plan Collection
Plan#106-1283
Starting at$1695
2531
Sq Ft
1
Story
3
Bed
3.5
Bath
3
Car
Plan Collection
Plan Collection
Plan Collection
Plan#175-1134
Starting at$1400
2684
Sq Ft
1
Story
3
Bed
3
Bath
2
Car
Plan Collection
Plan Collection
Plan Collection
Plan#202-1022
Starting at$995
3312
Sq Ft
1
Story
3
Bed
3.5
Bath
3
Car
View All

Other Plans By This Designer

Plan Collection
Plan Collection
Plan Collection
Plan#142-1244
Starting at$1545
3086
Sq Ft
1
Story
4
Bed
3.5
Bath
3
Car
Plan Collection
Plan Collection
Plan Collection
Plan#142-1256
Starting at$1295
1599
Sq Ft
1
Story
3
Bed
2.5
Bath
2
Car
Plan Collection
Plan Collection
Plan Collection
Plan#142-1265
Starting at$1245
1448
Sq Ft
1
Story
2
Bed
2
Bath
1
Car