4-Bedroom, 3106 Sq Ft Ranch Plan with Mud Room

Front elevation of Ranch home (ThePlanCollection: House Plan #142-1446)

Images/Plans copyrighted by designer. Photos may reflect homeowner modifications.

About House Plan #142-1446

Sq Ft
3106
Sq Ft
Bedrooms
4
Bedrooms
Bathroom
3
Baths
Half Baths
1
Half Baths
Bedrooms
3
Cars
Bedrooms
1.5
Stories
Bedrooms
82' 0'
Width
Bedrooms
68
Depth
Starting at$1545.00What's included
STEP 1Bedrooms
STEP 2Bedrooms
STEP 3Bedrooms

Subtotal:$0
Plan Collection

How much will it cost to build?

Estimate your costs based on your location and materials.

Free Cost Instant Estimator

Floor Plans

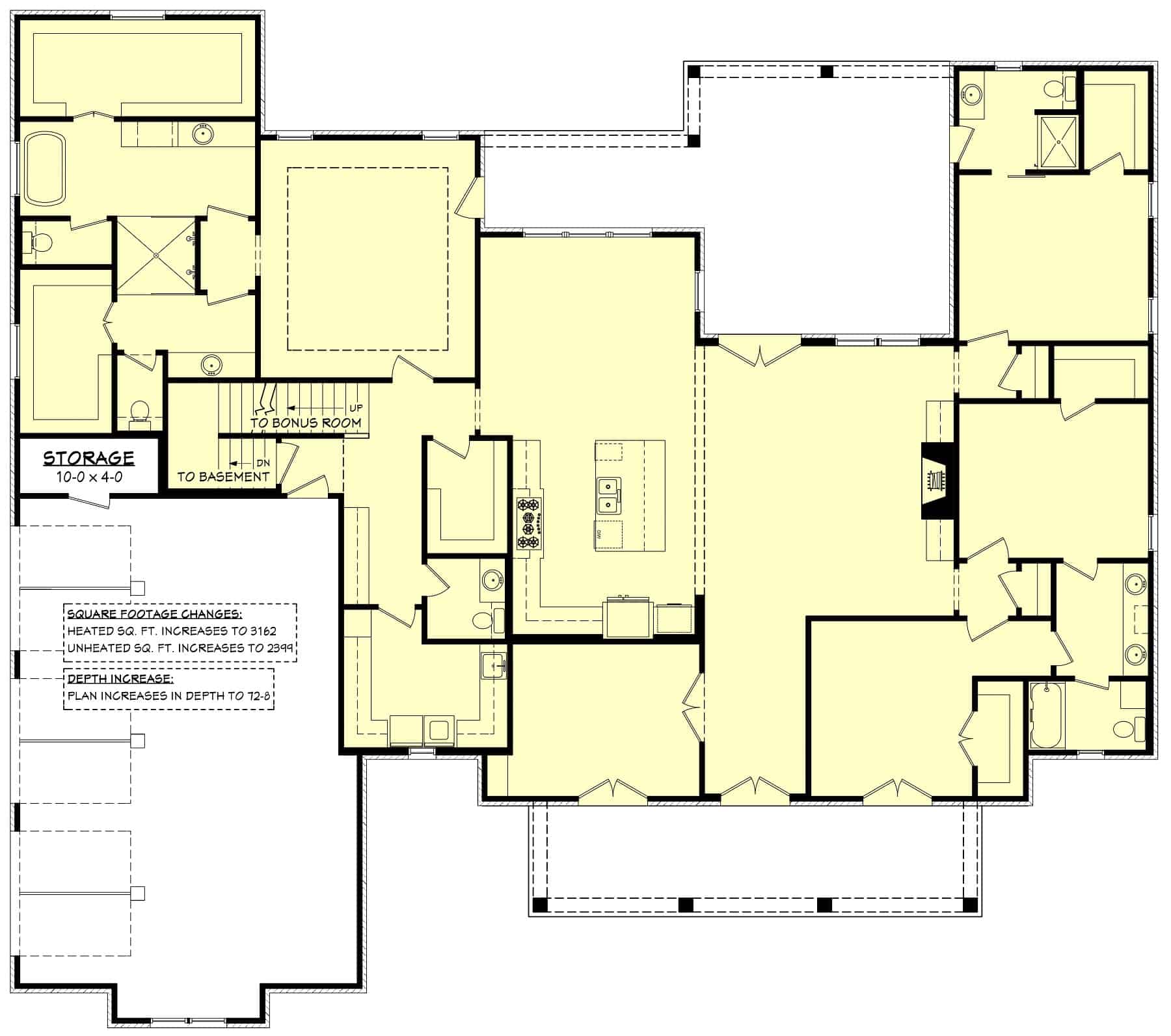
Main Level
Main Level
Basement Option Stair Location
Basement Option Stair Location
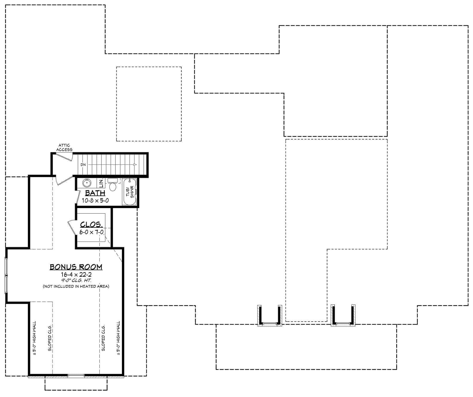
Bonus Room
Bonus Room
Plan Collection

Can I modify this plan?

Yes! This plan can be customized—contact us for a free quote.

Additional Notes from Designer

On some plans, Basement Foundations, Walkout Basement Foundations & 2x6 Conversions could take up to ONE WEEK to produce. Materials Lists could take up to FOUR WEEKS to produce and they will be for the ORIGINAL plan! Any modifications will NOT be reflected on the Materials List. NOTE FROM DESIGNER: If you purchase a CAD, you will automatically receive the unlimited build license - no need to purchase separately!

This single-family Ranch-Traditional Style House Plan has 3106 living square feet, 1 bedroom, and 2 bathrooms.

Note 1: With the basement option, the home has a total of 3162 heated square feet, 2399 unheated square feet, and the depth is 72’ 8”.

Note 2: Porch sq ft figures may include any deck sq ft as well.

 

 

House Plan Description

This Ranch-Traditional home is sure to rise to the top of your dream-home list for the family. The meticulous placement of natural stones also gives the house its rustic curb appeal. It features a covered front porch area with stately columns and generous width, which could be an area for gathering on warm evenings. The inviting 1.5-story floor plan has 3106 square feet of heated and cooled living space with an oversized 873-square-foot 2-car garage and storage space.

The garage layout has a very flexible layout where the owner can add a workshop area or a guest room if so...

Home Details

Summary
Plan #:142-1446
Starting at:$1545.00
Floors:1.5
Bedrooms:4
Full Baths:3
Half Baths:1
Garage:
Square Footage
Heated Area:3106 Sq. Ft.
First Floor:3106 Sq. Ft.
Unheated Area:
Bonus Room:668 Sq. Ft.
Garage:873 Sq. Ft.
Porch:732 Sq. Ft.
Dimensions
Depth:68' 4''
Architectural Styles
Exterior Wall Material
BrickRock/Stone
Roofing Type
HipGable/Dormer
Roofing Material
Asphalt ShinglesMetal
Roof Pitch
12/123/124/125/128/12
Ceiling Height
10 Foot Ceiling9 Foot Ceiling11 Foot Ceiling12 Foot Ceiling
Special Feature
FireplaceDining RoomHome OfficeMud RoomBonus RoomFamily RoomMain Level LaundryColor PhotosSplit BathroomStorageOpen Floor PlanInterior Photos
Garage Type
Attached GarageSide Entry
Fireplaces
One Fireplace
Exterior Wall Framing
2x4
Building Lot Type
Corner Lot
Kitchen Features
Kitchen IslandWalk-in Pantry
Porches and Exterior Features
Covered Front PorchCovered Rear Porch
Master Suite Features
Main Floor MasterMaster BathroomWalk In ClosetSplit Master Bedroom

What’s Included

Most plan sets include the following:

icon text-secondary-400 includedCover sheet

icon text-secondary-400 includedFoundation plan

icon text-secondary-400 includedDimensional floor plan

icon text-secondary-400 includedExterior views

icon text-secondary-400 includedRoof plan

icon text-secondary-400 includedElectrical layout

icon text-secondary-400 includedWall section(s)

icon text-secondary-400 includedBuilding section(s)

icon text-secondary-400 includedCabinet elevations

What’s Not Included

These items are  NOT included:

icon text-secondary-400 includedArchitectural or Engineering Stamp - handled locally if required.

icon text-secondary-400 includedSite Plan - handled locally when required.

icon text-secondary-400 includedMechanical Drawings (location of heating and air equipment and ductwork) - your subcontractors handle this.

icon text-secondary-400 includedPlumbing Drawings (drawings showing the actual plumbing pipe sizes and locations) - your subcontractors handle this.

icon text-secondary-400 includedEnergy calculations - handled locally when required.

icon text-secondary-400 includedNo Framing

Related House Plans

Plan Collection
Plan Collection
Plan Collection
Plan#142-1185
Starting at$1395
2742
Sq Ft
1.5
Story
4
Bed
3.5
Bath
2
Car
Plan Collection
Plan Collection
Plan Collection
Plan#161-1001
Starting at$2200
3339
Sq Ft
1.5
Story
4
Bed
3.5
Bath
3
Car
Plan Collection
Plan Collection
Plan Collection
Plan#153-1990
Starting at$1850
3084
Sq Ft
1.5
Story
4
Bed
3.5
Bath
2
Car
View All

Other Plans By This Designer

Plan Collection
Plan Collection
Plan Collection
Plan#142-1244
Starting at$1545
3086
Sq Ft
1
Story
4
Bed
3.5
Bath
3
Car
Plan Collection
Plan Collection
Plan Collection
Plan#142-1256
Starting at$1295
1599
Sq Ft
1
Story
3
Bed
2.5
Bath
2
Car
Plan Collection
Plan Collection
Plan Collection
Plan#142-1265
Starting at$1245
1448
Sq Ft
1
Story
2
Bed
2
Bath
1
Car