4-Bed, 3107 Sq Ft Luxury Plan with His & Her Walk In Closets

Front elevation of Luxury home (ThePlanCollection: House Plan #201-1007)

Images/Plans copyrighted by designer. Photos may reflect homeowner modifications.

About House Plan #201-1007

Sq Ft
3107
Sq Ft
Bedrooms
4
Bedrooms
Bathroom
3
Baths
Half Baths
1
Half Baths
Bedrooms
2
Cars
Bedrooms
2
Stories
Bedrooms
89' 2'
Width
Bedrooms
75
Depth
Starting at$1030.00What's included
STEP 1Bedrooms
STEP 2Bedrooms
STEP 3Bedrooms

Subtotal:$0
Plan Collection

How much will it cost to build?

Estimate your costs based on your location and materials.

Free Cost Instant Estimator

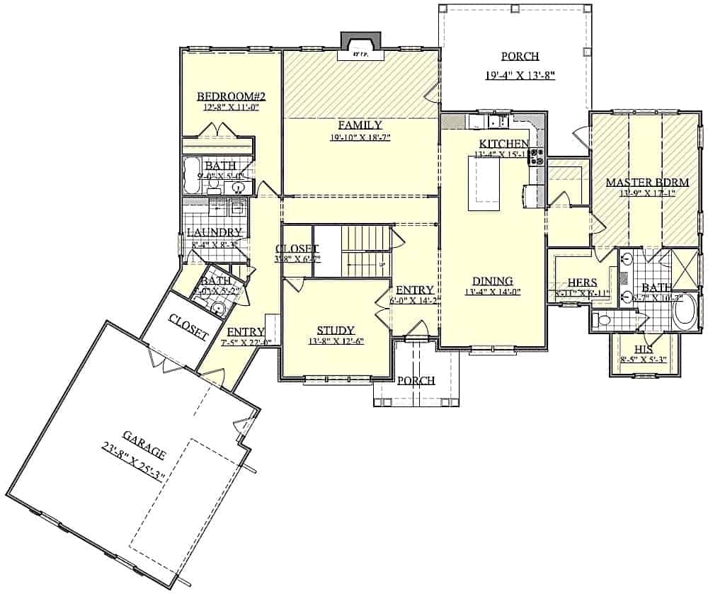
Floor Plans

Floor Plan Main Level
Floor Plan Main Level
Floor Plan Upper Level
Floor Plan Upper Level
Plan Collection

Can I modify this plan?

Yes! This plan can be customized—contact us for a free quote.

House Plan Description

This splendid Luxury style home with Traditional characteristics (Plan #201-1007) has 3107 square feet of living space. The 1.5-story floor plan includes 4 bedrooms, and you have the option of making the study into a 5th bedroom. With the 453-square-foot bonus room, 623-square-foot garage, and 371 square feet of porches, the house has a total of 4554 square feet of finished and unfinished space under its roof.

Home Details

Summary
Plan #:201-1007
Starting at:$1030.00
Floors:2
Bedrooms:4
Full Baths:3
Half Baths:1
Garage:
Square Footage
Heated Area:3107 Sq. Ft.
First Floor:2356 Sq. Ft.
Second Floor:751 Sq. Ft.
Unheated Area:
Bonus Room:453 Sq. Ft.
Garage:623 Sq. Ft.
Porch:371 Sq. Ft.
Dimensions
Width:89' 2''
Depth:75' 1''
Architectural Styles
Exterior Wall Material
Vinyl SidingRock/StoneWood Siding
Roofing Type
GableGable/DormerGable/Shed Dormer
Roofing Material
Asphalt Shingles
Roof Pitch
12/1210/12
Ceiling Height
10 Foot Ceiling
Special Feature
FireplaceDining RoomHome OfficeBonus RoomFamily RoomMain Level LaundrySplit BathroomVaulted CeilingsOpen Floor PlanL-Shaped
Garage Type
Attached GarageCourtyard Entry
Fireplaces
One Fireplace
Exterior Wall Framing
2x4
Kitchen Features
Kitchen IslandWalk-in PantryPeninsula/Eating Bar
Porches and Exterior Features
Covered Front PorchCovered Rear Porch
Master Suite Features
Main Floor MasterMaster BathroomWalk In ClosetSplit Master Bedroom

What’s Included

Most plan sets include the following:

icon text-secondary-400 includedCOVER SHEET

icon text-secondary-400 includedCEILING JOIST FRAMING PLAN

icon text-secondary-400 includedFOUNDATION PLAN: Dimensioned plan detailing the location and size of footings, slabs, reinforcing steel, and other structural elements that are required to support the load of the upper floors.

icon text-secondary-400 includedROOF PLAN: Dimensioned plan showing the elements that make up the roof, including notation of spacing and schematics of peaks and valleys.

icon text-secondary-400 includedELECTRICAL LAYOUT:Specifications, notes, schedules, and plan defining the location of panels, service, lighting fixtures, switches, outlets, fans, etc. NOTE – PLEASE VERIFY

icon text-secondary-400 includedFRONT, REAR, AND SIDE ELEVATIONS:The front, rear, and side elevations of the house as drawn. Shows placement of doors & windows on exterior of house, as well as roof pitches, ridge heights, and locations of chimney, exterior vents, etc. The elevations show the positioning of the final grade of the lot, exterior finishes, and other details that are necessary to give the home exterior architectural styling.

icon text-secondary-400 includedCROSS SECTIONS AND INTERIOR DETAILS:Explain certain special conditions more appropriately. A cross section is basically a view of the home (or parts of the home) if it were sliced down the center. These details can be helpful for the contractor.

What’s Not Included

These items are  NOT included:

icon text-secondary-400 includedArchitectural or Engineering Stamp - handled locally if required.

icon text-secondary-400 includedSite Plan - handled locally when required.

icon text-secondary-400 includedMechanical Drawings (location of heating and air equipment and ductwork) - your subcontractors handle this.

icon text-secondary-400 includedPlumbing Drawings (drawings showing the actual plumbing pipe sizes and locations) - your subcontractors handle this.

icon text-secondary-400 includedEnergy calculations - handled locally when required.

Related House Plans

Plan Collection
Plan Collection
Plan Collection
Plan#153-1020
Starting at$1200
2373
Sq Ft
2
Story
4
Bed
3
Bath
3
Car
Plan Collection
Plan Collection
Plan Collection
Plan#153-1786
Starting at$1200
2363
Sq Ft
2
Story
4
Bed
3
Bath
2
Car
Plan Collection
Plan Collection
Plan Collection
Plan#120-2176
Starting at$1255
3124
Sq Ft
2
Story
4
Bed
3.5
Bath
2
Car
View All

Other Plans By This Designer

Plan Collection
Plan Collection
Plan Collection
Plan#201-1020
Starting at$1030
3323
Sq Ft
2
Story
4
Bed
3
Bath
2
Car
Plan Collection
Plan Collection
Plan Collection
Plan#201-1017
Starting at$970
2996
Sq Ft
2
Story
4
Bed
3.5
Bath
2
Car
Plan Collection
Plan Collection
Plan Collection
Plan#201-1005
Starting at$1030
3280
Sq Ft
1
Story
3
Bed
2.5
Bath
2
Car