Estimate your costs based on your location and materials.
Yes! This plan can be customized—contact us for a free quote.
Yes! This plan can be customized—contact us for a free quote.
Please Note that the designer's office will be closed from December 22 to January 3 inclusively. All inquiries and orders will be processed when the designer resumes office hours on January 4th, 2023.
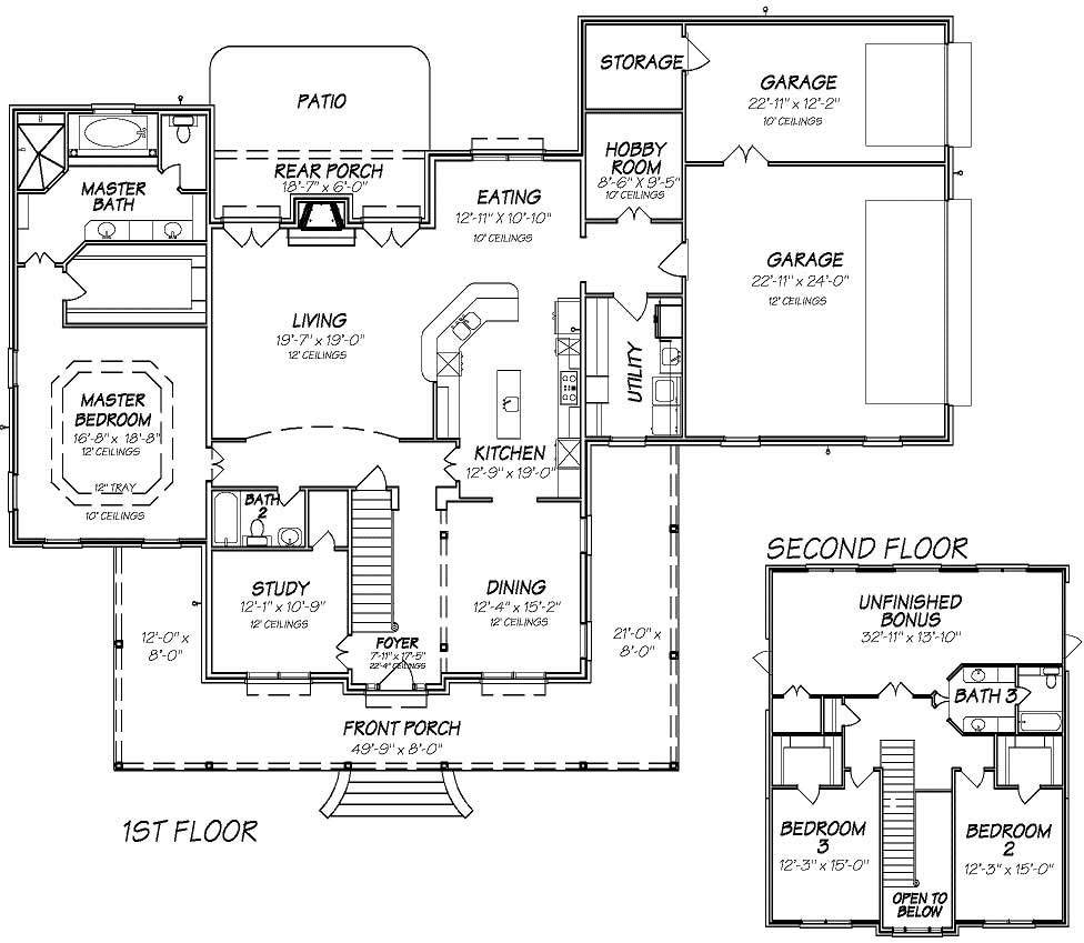
HPD-2068 is a Victorian Farmhouse with everything and more. A hobby room, study, main level laundry, and garage storage space are just a few of the great amenities you can expect from these house plans.
Estimate your costs based on your location and materials.
All sales of house plans, modifications, and other products found on this site are final. No refunds or exchanges can be given once your order has begun the fulfillment process. Please see our Policies for additional information.
All plans offered on ThePlanCollection.com are designed to conform to the local building codes when and where the original plan was drawn.
The homes as shown in photographs and renderings may differ from the actual blueprints. For more detailed information, please review the floor plan images herein carefully.
Estimate your costs based on your location and materials.