4-Bedroom, 3173 Sq Ft Colonial Plan with Fireplace

Front view of Colonial home (ThePlanCollection: House Plan #146-2186)

Images/Plans copyrighted by designer. Photos may reflect homeowner modifications.

About House Plan #146-2186

Sq Ft
3173
Sq Ft
Bedrooms
4
Bedrooms
Bathroom
3
Baths
Half Baths
1
Half Baths
Bedrooms
3
Cars
Bedrooms
2
Stories
Bedrooms
94' 0'
Width
Bedrooms
74
Depth
Starting at$1213.25What's included
STEP 1Bedrooms
STEP 2Bedrooms
STEP 3Bedrooms

Subtotal:$0
Plan Collection

How much will it cost to build?

Estimate your costs based on your location and materials.

Free Cost Instant Estimator

Floor Plans

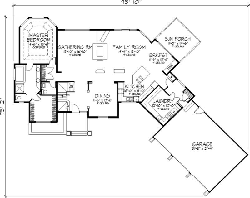
Main Level
Main Level
Upper Level
Upper Level
Plan Collection

Can I modify this plan?

Yes! This plan can be customized—contact us for a free quote.

House Plan Description

This exciting contemporary family home showcases a spectacular see-through fireplace which separates the spacious family and gathering rooms. The large island kitchen opens to a delightful breakfast area with views out sliding glass doors to a lovely sun porch. A gigantic walk-in closet, a deluxe private bath and a bay window are featured in the master suite.

Home Details

Summary
Plan #:146-2186
Starting at:$1213.25
Floors:2
Bedrooms:4
Full Baths:3
Half Baths:1
Garage:
Square Footage
Heated Area:3173 Sq. Ft.
First Floor:2254 Sq. Ft.
Second Floor:919 Sq. Ft.
Unheated Area:
Basement:2254 Sq. Ft.
Dimensions
Ridge Height:29-0' 0''
Architectural Styles
Exterior Wall Material
BrickWood Siding
Roofing Type
Hip
Special Feature
Fireplace
Garage Type
Attached GarageFront Entry
Fireplaces
One Fireplace
Exterior Wall Framing
2x6

What’s Included

Most plan sets include the following:

What’s Not Included

These items are  NOT included:

icon text-secondary-400 includedArchitectural or Engineering Stamp - handled locally if required.

icon text-secondary-400 includedSite Plan - handled locally when required.

icon text-secondary-400 includedMechanical Drawings (location of heating and air equipment and ductwork) - your subcontractors handle this.

icon text-secondary-400 includedPlumbing Drawings (drawings showing the actual plumbing pipe sizes and locations) - your subcontractors handle this.

icon text-secondary-400 includedEnergy calculations - handled locally when required.

Related House Plans

Plan Collection
Plan Collection
Plan Collection
Plan#168-1099
Starting at$2600
2609
Sq Ft
2
Story
4
Bed
3.5
Bath
3
Car
Plan Collection
Plan Collection
Plan Collection
Plan#116-1028
Starting at$0
3469
Sq Ft
2
Story
4
Bed
3.5
Bath
2
Car
Plan Collection
Plan Collection
Plan Collection
Plan#193-1072
Starting at$2450
3342
Sq Ft
2
Story
4
Bed
3.5
Bath
3
Car
View All

Other Plans By This Designer

Plan Collection
Plan Collection
Plan Collection
Plan#146-2806
Starting at$980
1933
Sq Ft
2
Story
3
Bed
2
Bath
0
Car
Plan Collection
Plan Collection
Plan Collection
Plan#146-2810
Starting at$1285
3594
Sq Ft
2
Story
4
Bed
3.5
Bath
2
Car
Plan Collection
Plan Collection
Plan Collection
Plan#146-1917
Starting at$1120
2525
Sq Ft
2
Story
4
Bed
2.5
Bath
3
Car