3-Bedroom, 3191 Sq Ft Mediterranean Plan with Wine Cellar

Mediterranean home (ThePlanCollection: Plan #108-1991)

Images/Plans copyrighted by designer. Photos may reflect homeowner modifications.

About House Plan #108-1991

Sq Ft
3191
Sq Ft
Bedrooms
3
Bedrooms
Bathroom
2
Baths
Half Baths
1
Half Baths
Bedrooms
2
Cars
Bedrooms
1
Stories
Bedrooms
81' 0'
Width
Bedrooms
49
Depth
Starting at$1825.00What's included
STEP 1Bedrooms
STEP 2Bedrooms
STEP 3Bedrooms

Subtotal:$0
Plan Collection

How much will it cost to build?

Estimate your costs based on your location and materials.

Free Cost Instant Estimator

Floor Plans

Floor Plan Main Level
Floor Plan Main Level
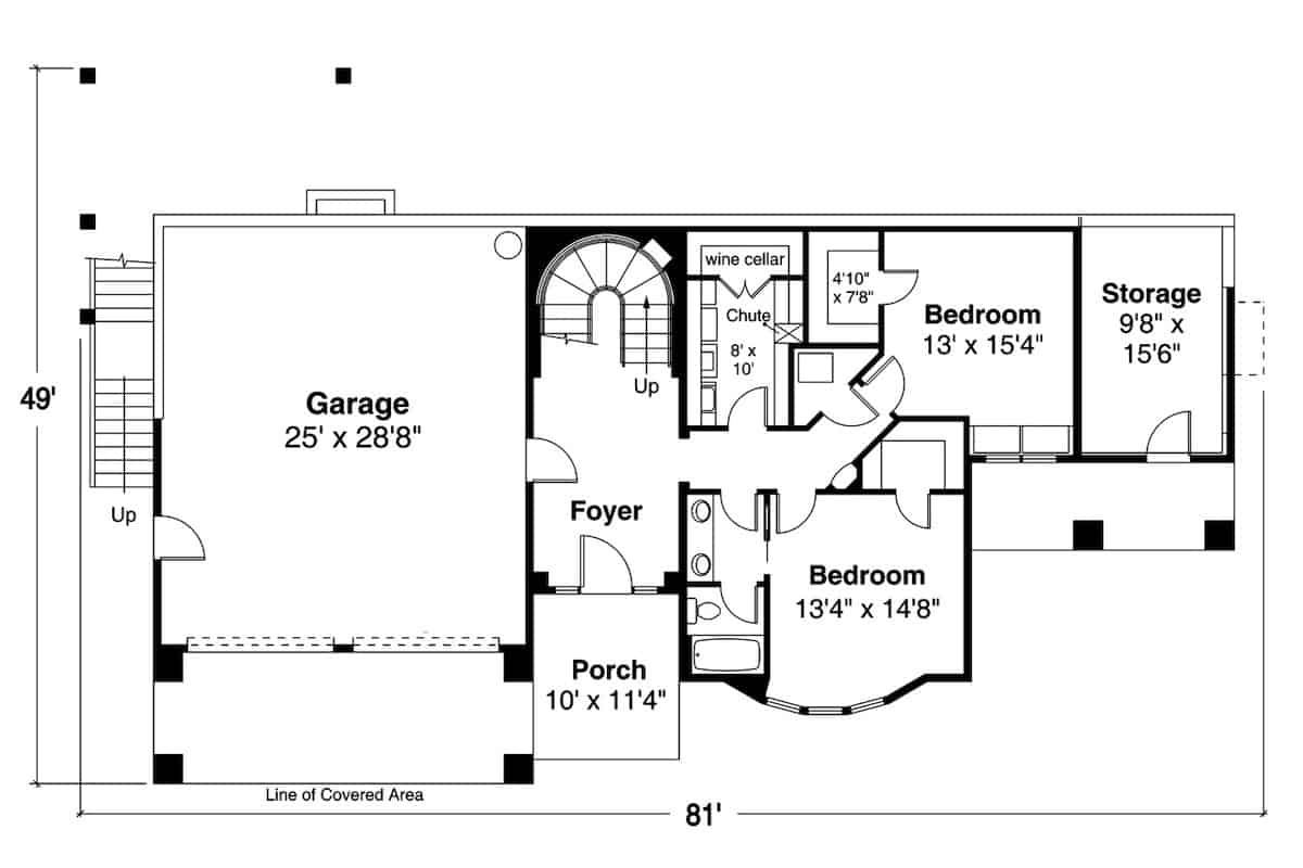
Lower Level
Lower Level
Plan Collection

Can I modify this plan?

Yes! This plan can be customized—contact us for a free quote.

Additional Notes from Designer

PLEASE NOTE!! For this designer, The PDF that comes with the PRINT Packages (5 set+PDF and 8 set+PDF) is NOT Modifiable - it is for printing ONLY! PLEASE NOTE!! Optional Foundations (foundations that cost extra money) will take 5-10 business days to complete.

House Plan Description

This splendid and luxurious Mediterranean style home with Spanish attributes is sure to grab your attention. The arches, especially at the two-story-tall rounded entry treatment, and large, lovely windows combine for an unforgettable and arresting curb appeal. The eye-catching home's 1-story floor plan has 3191 square feet of fully conditioned living space in the main and lower levels and includes 3 bedrooms – with a 737-square-foot 2-car garage and 170-square-foot storage area on the lower level.

Home Details

Summary
Plan #:108-1991
Starting at:$1825.00
Floors:1
Bedrooms:3
Full Baths:2
Half Baths:1
Garage:
Square Footage
Heated Area:3191 Sq. Ft.
Basement:1030 Sq. Ft.
First Floor:2161 Sq. Ft.
Unheated Area:
Basement:170 Sq. Ft.
Garage:737 Sq. Ft.
Dimensions
Architectural Styles
Exterior Wall Material
Stucco
Roofing Type
Hip
Roofing Material
Tiles
Roof Pitch
6/12
Ceiling Height
10 Foot Ceiling9 Foot Ceiling
Special Feature
FireplaceDining RoomMud RoomFamily RoomSplit BathroomStorageVaulted CeilingsWine CellarBalconyOpen Floor Plan
Garage Type
Attached GarageFront Entry
Fireplaces
Two Fireplaces
Exterior Wall Framing
2x6
Building Lot Type
Down SiteView Lot
Kitchen Features
Kitchen IslandPeninsula/Eating Bar
Porches and Exterior Features
Covered Rear PorchPorticoPatio
Master Suite Features
Main Floor MasterFireplace in MasterMaster BathroomWalk In ClosetPrivate DeckSplit Master Bedroom

What’s Included

Most plan sets include the following:

icon text-secondary-400 included Artist’s rendering of the home,

icon text-secondary-400 included Front/Rear/Left and Right Elevations,

icon text-secondary-400 included Main floor plan, Second or Basement floor plans (if applicable),

icon text-secondary-400 included Foundation plan and detail,

icon text-secondary-400 included Floor framing plan,

icon text-secondary-400 included Roof framing plan, supporting details and

icon text-secondary-400 included Electric layout.

What’s Not Included

These items are  NOT included:

icon text-secondary-400 includedArchitectural or Engineering Stamp - handled locally if required.

icon text-secondary-400 includedSite Plan - handled locally when required.

icon text-secondary-400 includedMechanical Drawings (location of heating and air equipment and ductwork) - your subcontractors handle this.

icon text-secondary-400 includedPlumbing Drawings (drawings showing the actual plumbing pipe sizes and locations) - your subcontractors handle this.

icon text-secondary-400 includedEnergy calculations - handled locally when required.

Related House Plans

Plan Collection
Plan Collection
Plan Collection
Plan#117-1126
Starting at$1345
2662
Sq Ft
1
Story
3
Bed
2.5
Bath
3
Car
Plan Collection
Plan Collection
Plan Collection
Plan#153-1978
Starting at$1850
3307
Sq Ft
1
Story
3
Bed
2.5
Bath
3
Car
Plan Collection
Plan Collection
Plan Collection
Plan#190-1007
Starting at$1050
2397
Sq Ft
1
Story
3
Bed
2.5
Bath
2
Car
View All

Other Plans By This Designer

Plan Collection
Plan Collection
Plan Collection
Plan#108-1923
Starting at$1150
2928
Sq Ft
1
Story
4
Bed
3
Bath
2
Car
Plan Collection
Plan Collection
Plan Collection
Plan#108-1538
Starting at$725
1216
Sq Ft
2
Story
2
Bed
2
Bath
0
Car
Plan Collection
Plan Collection
Plan Collection
Plan#108-2031
Starting at$450
1808
Sq Ft
2
Story
2
Bed
1
Bath
2
Car