5-Bedroom, 3464 Sq Ft Country Plan with Peninsula/Eating Bar

Front elevation of Country home (ThePlanCollection: House Plan #173-1005)

Images/Plans copyrighted by designer. Photos may reflect homeowner modifications.

About House Plan #173-1005

Sq Ft
3464
Sq Ft
Bedrooms
5
Bedrooms
Bathroom
2
Baths
Half Baths
1
Half Baths
Bedrooms
2
Cars
Bedrooms
2
Stories
Bedrooms
78' 0'
Width
Bedrooms
61
Depth
Starting at$1300.00What's included
STEP 1Bedrooms
STEP 2Bedrooms
STEP 3Bedrooms

Subtotal:$0
Plan Collection

How much will it cost to build?

Estimate your costs based on your location and materials.

Free Cost Instant Estimator

Floor Plans

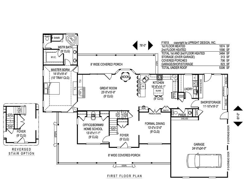
Main Floor Plan
Main Floor Plan
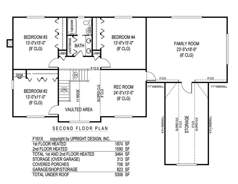
Second Floor Plan
Second Floor Plan
Plan Collection

Can I modify this plan?

Yes! This plan can be customized—contact us for a free quote.

Additional Notes from Designer

House Plan Description

This house offers a space conscious floor plan with traditional country victorian style. The main rooms are spacious, including the first floor master suite with duel porch access. The upper floor has three bedrooms, a rec room, a family room and unfinished storage room. 

Home Details

Summary
Plan #:173-1005
Starting at:$1300.00
Floors:2
Bedrooms:5
Full Baths:2
Half Baths:1
Garage:
Square Footage
Heated Area:3464 Sq. Ft.
First Floor:1874 Sq. Ft.
Second Floor:1590 Sq. Ft.
Unheated Area:
Basement:1874 Sq. Ft.
Garage:823 Sq. Ft.
Dimensions
Ridge Height:30' 0''
Architectural Styles
Exterior Wall Material
BrickWood Siding
Roofing Type
Gable
Roof Pitch
9/12
Ceiling Height
9 Foot Ceiling
Special Feature
Family Room
Garage Type
Attached GarageSide Entry
Fireplaces
One Fireplace
Exterior Wall Framing
2x4

What’s Included

Most plan sets include the following:

icon text-secondary-400 includedFoundation plan

icon text-secondary-400 includedFloor plan(s)

icon text-secondary-400 includedElectrical layout

icon text-secondary-400 includedExterior elevations

icon text-secondary-400 includedCabinet details

icon text-secondary-400 includedInterior elevations (when necessary)

icon text-secondary-400 includedRoof plan

icon text-secondary-400 includedTypical wall section

icon text-secondary-400 includedStandard detail sheet

What’s Not Included

These items are  NOT included:

icon text-secondary-400 includedArchitectural or Engineering Stamp - handled locally if required.

icon text-secondary-400 includedSite Plan - handled locally when required.

icon text-secondary-400 includedMechanical Drawings (location of heating and air equipment and duct work) - your subcontractors handle this.

icon text-secondary-400 includedPlumbing Drawings (drawings showing the actual plumbing pipe sizes and locations) - your subcontractors handle this.

icon text-secondary-400 includedEnergy calculations - handled locally when required.

Related House Plans

Plan Collection
Plan Collection
Plan Collection
Plan#173-1007
Starting at$1300
3464
Sq Ft
2
Story
5
Bed
2.5
Bath
3
Car
Plan Collection
Plan Collection
Plan Collection
Plan#105-1068
Starting at$680
2658
Sq Ft
2
Story
5
Bed
2.5
Bath
3
Car
Plan Collection
Plan Collection
Plan Collection
Plan#173-1020
Starting at$1300
2599
Sq Ft
2
Story
5
Bed
2.5
Bath
2
Car
View All

Other Plans By This Designer

Plan Collection
Plan Collection
Plan Collection
Plan#173-1029
Starting at$1300
2750
Sq Ft
2
Story
5
Bed
3.5
Bath
2
Car
Plan Collection
Plan Collection
Plan Collection
Plan#173-1003
Starting at$1300
2989
Sq Ft
2
Story
4
Bed
2.5
Bath
3
Car
Plan Collection
Plan Collection
Plan Collection
Plan#173-1033
Starting at$1200
2433
Sq Ft
2
Story
4
Bed
2.5
Bath
2
Car