Estimate your costs based on your location and materials.
Yes! This plan can be customized—contact us for a free quote.
Yes! This plan can be customized—contact us for a free quote.
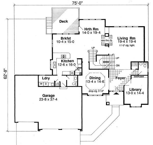
This dramatic home has the perfect blend of features. Traditional elegance outside encloses an up-to-date floor inside. Spacious living areas, perfect for entertaining, offset your private hideaway upstairs. The soaring, two-story foyer with a balcony above, graceful stairway, and huge living room with a see-thru fireplace, make this home a visual symphony. A unique staircase allows access from the bedrooms directly to the kitchen and hearth room, especially useful if the library is your home office. Upstairs, comfort and privacy are the rule - none of the bedrooms adjoin another, and each...
Estimate your costs based on your location and materials.
All sales of house plans, modifications, and other products found on this site are final. No refunds or exchanges can be given once your order has begun the fulfillment process. Please see our Policies for additional information.
All plans offered on ThePlanCollection.com are designed to conform to the local building codes when and where the original plan was drawn.
The homes as shown in photographs and renderings may differ from the actual blueprints. For more detailed information, please review the floor plan images herein carefully.
Estimate your costs based on your location and materials.