3674 Sq Ft Matching Duplex with 3-Bedroom, 2.5 Baths, & 1837 Sq Ft Per Unit

Front elevation of Duplex home (ThePlanCollection: House Plan #138-1468)

Images/Plans copyrighted by designer. Photos may reflect homeowner modifications.

About House Plan #138-1468

Sq Ft
3674
Sq Ft
Bedrooms
6
Bedrooms
Bathroom
4
Baths
Half Baths
2
Half Baths
Bedrooms
4
Cars
Bedrooms
2
Stories
Bedrooms
88' 0'
Width
Bedrooms
42
Depth
Starting at$1350.00What's included
STEP 1Bedrooms
STEP 2Bedrooms
STEP 3Bedrooms

Subtotal:$0
Plan Collection

How much will it cost to build?

Estimate your costs based on your location and materials.

Free Cost Instant Estimator

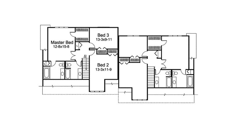
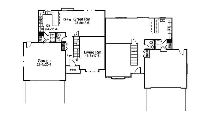
Floor Plans

Floor Plan First Story
Floor Plan First Story
Floor Plan Second Story
Floor Plan Second Story
Plan Collection

Can I modify this plan?

Yes! This plan can be customized—contact us for a free quote.

Additional Notes from Designer

PLEASE NOTE: Not all plans from this designer can be modified! Please check before sending in a mod request. Thank you!

This multi-family plan has two identical units. Each unit has 1,837 living square feet, 3 bedrooms, 2.5 baths, and 2 garage spaces.

House Plan Description

This 2-unit Cape Cod style duplex showcases an extraordinary accomplishment in architectural design, boasting excellent and genuine features that make it the perfect family abode. Spanning 3,674 living sq ft in a 2-story plan, each unit offers 1,837 living sq ft and comes with a range of superb amenities:

  • 3 bedrooms, 2.5 full baths, 2-car garage spaces (per unit)
  • Living Room, Great Room
  • Primary Bedroom with Walk-in Closet, Primary Bathroom

Home Details

Summary
Plan #:138-1468
Starting at:$1350.00
Floors:2
Bedrooms:6
Full Baths:4
Half Baths:2
Garage:
Square Footage
Heated Area:3674 Sq. Ft.
First Floor:1864 Sq. Ft.
Second Floor:1810 Sq. Ft.
Unheated Area:
Dimensions
Architectural Styles
Exterior Wall Material
BrickLap Siding
Roofing Type
Gable/Dormer
Roofing Material
Asphalt Shingles
Special Feature
Family RoomMain Level LaundryOpen Floor Plan
Garage Type
Attached GarageFront Entry
Exterior Wall Framing
2x4
Building Lot Type
Down Site
Kitchen Features
Peninsula/Eating BarEat-In Kitchen
Porches and Exterior Features
Covered Front Porch
Master Suite Features
Master BathroomWalk In ClosetSecond Floor Master

What’s Included

Most plan sets include the following:

icon text-secondary-400 includedCover sheet

icon text-secondary-400 includedFoundation plan

icon text-secondary-400 includedFloor plans

icon text-secondary-400 includedExterior elevations

icon text-secondary-400 includedRoof plan

icon text-secondary-400 includedDetails Sheet

icon text-secondary-400 includedSections

icon text-secondary-400 includedInterior elevations

What’s Not Included

These items are  NOT included:

icon text-secondary-400 includedArchitectural or Engineering Stamp - handled locally if required.

icon text-secondary-400 includedSite Plan - handled locally when required.

icon text-secondary-400 includedMechanical Drawings (location of heating and air equipment and ductwork) - your subcontractors handle this.

icon text-secondary-400 includedPlumbing Drawings (drawings showing the actual plumbing pipe sizes and locations) - your subcontractors handle this.

icon text-secondary-400 includedEnergy calculations - handled locally when required.

Related House Plans

Plan Collection
Plan Collection
Plan Collection
Plan#157-1017
Starting at$970
3544
Sq Ft
2
Story
6
Bed
4
Bath
2
Car
Plan Collection
Plan Collection
Plan Collection
Plan#108-1851
Starting at$1450
3058
Sq Ft
2
Story
6
Bed
4.5
Bath
2
Car
Plan Collection
Plan Collection
Plan Collection
Plan#138-1055
Starting at$1250
2986
Sq Ft
2
Story
6
Bed
4.5
Bath
4
Car
View All

Other Plans By This Designer

Plan Collection
Plan Collection
Plan Collection
Plan#138-1209
Starting at$450
421
Sq Ft
1
Story
1
Bed
1
Bath
1
Car
Plan Collection
Plan Collection
Plan Collection
Plan#138-1314
Starting at$1050
1536
Sq Ft
1
Story
4
Bed
2
Bath
0
Car
Plan Collection
Plan Collection
Plan Collection
Plan#138-1315
Starting at$1050
1536
Sq Ft
1
Story
4
Bed
2
Bath
0
Car