4-Bedroom, 3708 Sq Ft Modern Plan with Private Balcony

Front elevation of Modern home (ThePlanCollection: House Plan #216-1009)

Images/Plans copyrighted by designer. Photos may reflect homeowner modifications.

About House Plan #216-1009

Sq Ft
3708
Sq Ft
Bedrooms
4
Bedrooms
Bathroom
5
Baths
Half Baths
1
Half Baths
Bedrooms
4
Cars
Bedrooms
2
Stories
Bedrooms
99' 0'
Width
Bedrooms
51
Depth
Starting at$1595.00What's included
STEP 1Bedrooms
STEP 2Bedrooms
STEP 3Bedrooms

Subtotal:$0
Plan Collection

How much will it cost to build?

Estimate your costs based on your location and materials.

Free Cost Instant Estimator

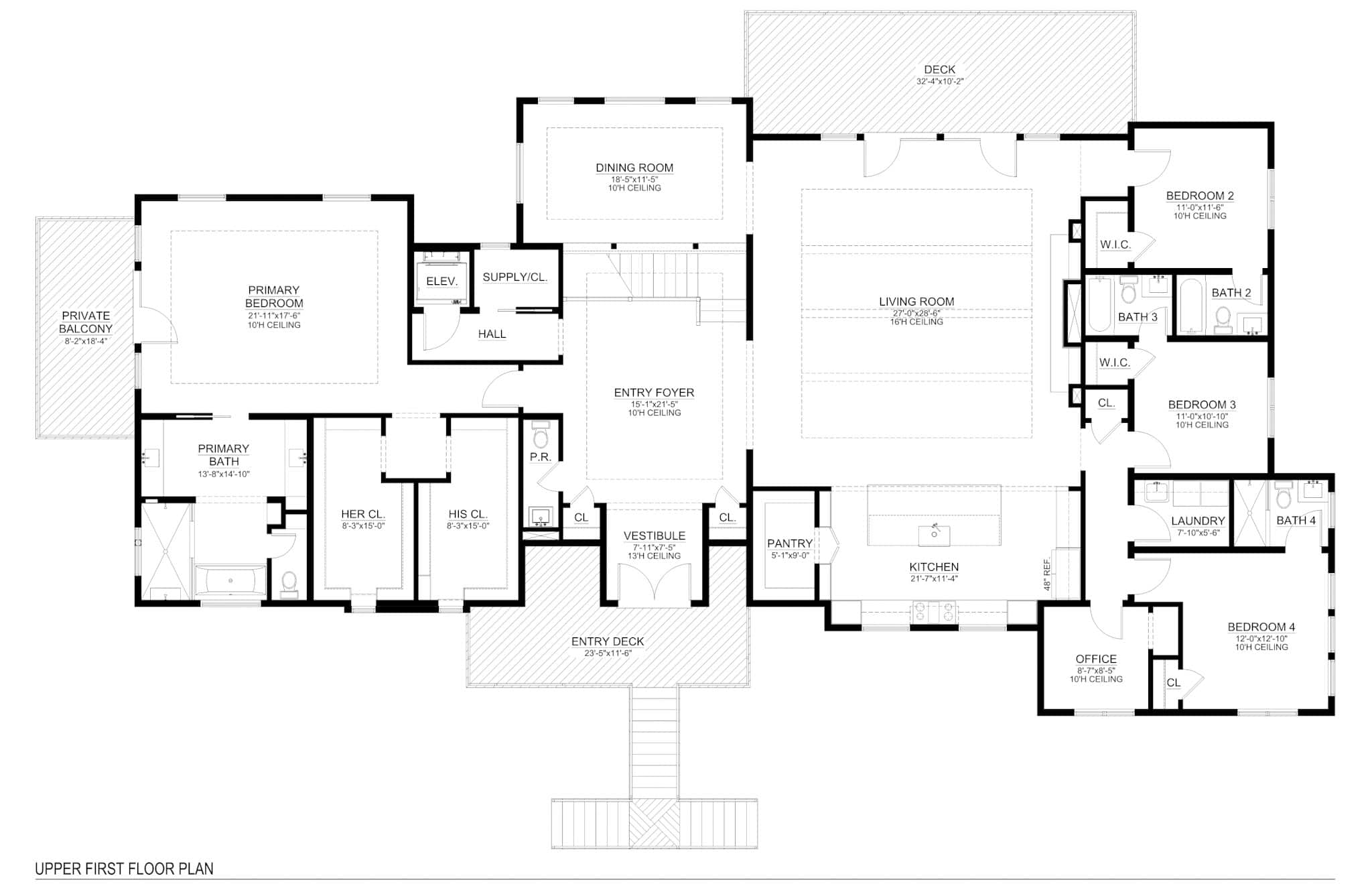
Floor Plans

Main Level
Main Level
Lower Level
Lower Level
Plan Collection

Can I modify this plan?

Yes! This plan can be customized—contact us for a free quote.

Additional Notes from Designer

Note: Porch sq ft figures may include any deck sq ft as well.

House Plan Description

Enriched by its enchanting Modern features, this 3,708 square feet Coastal style jewel includes 4 bedrooms, 5.5 baths, and a 4-car garage. Notably, the residence provides a compelling range of extras:

  • Media Room/Play Room, Workshop, Living Room, Home Office, Elevator
  • Dining Room, Kitchen with Walk-in Pantry
  • Master Bedroom with His&Her Closets, Master Bathroom, Private Balcony

Home Details

Summary
Plan #:216-1009
Starting at:$1595.00
Floors:2
Bedrooms:4
Full Baths:5
Half Baths:1
Garage:
Square Footage
Heated Area:3708 Sq. Ft.
First Floor:3708 Sq. Ft.
Unheated Area:
Basement:2826 Sq. Ft.
Porch:1065 Sq. Ft.
Dimensions
Architectural Styles
Exterior Wall Material
Vinyl SidingWood SidingLap Siding
Roofing Type
Gable
Roofing Material
Asphalt Shingles
Roof Pitch
3/124/12
Ceiling Height
10 Foot Ceiling
Special Feature
Dining RoomHome OfficeMedia RoomColor PhotosStorageWorkshopElevatorBalconySecond Level LaundryOpen Floor Plan
Garage Type
Under Main Floor Entry
Exterior Wall Framing
2x6
Building Lot Type
Down SiteView Lot
Kitchen Features
Kitchen IslandWalk-in Pantry
Porches and Exterior Features
Covered Front PorchCovered Rear Porch
Master Suite Features
Master BathroomWalk In ClosetPrivate DeckSecond Floor MasterSplit Master Bedroom

What’s Included

Most plan sets include the following:

icon text-secondary-400 includedCover sheet

icon text-secondary-400 includedFoundation plan

icon text-secondary-400 includedDimensional floor plan(s)

icon text-secondary-400 includedExterior elevations

icon text-secondary-400 includedRoof plan

icon text-secondary-400 includedRoof framing plan (when available - please call or email us to confirm)

icon text-secondary-400 includedElectrical layout (when available - please call or email us to confirm)

icon text-secondary-400 includedBuilding section(s)

icon text-secondary-400 includedGeneral structural notations

What’s Not Included

These items are  NOT included:

icon text-secondary-400 includedArchitectural or Engineering Stamp - handled locally if required.

icon text-secondary-400 includedSite Plan - handled locally when required.

icon text-secondary-400 includedMechanical Drawings (location of heating and air equipment and ductwork) - your subcontractors handle this.

icon text-secondary-400 includedPlumbing Drawings (drawings showing the actual plumbing pipe sizes and locations) - your subcontractors handle this.

icon text-secondary-400 includedEnergy calculations - handled locally when required.

Related House Plans

Plan Collection
Plan Collection
Plan Collection
Plan#153-2110
Starting at$2250
2811
Sq Ft
2
Story
4
Bed
5.5
Bath
3
Car
Plan Collection
Plan Collection
Plan Collection
Plan#195-1330
Starting at$1515
4402
Sq Ft
2
Story
4
Bed
5.5
Bath
3
Car
Plan Collection
Plan Collection
Plan Collection
Plan#219-1015
Starting at$0
4450
Sq Ft
2
Story
4
Bed
5.5
Bath
2
Car
View All

Other Plans By This Designer

Plan Collection
Plan Collection
Plan Collection
Plan#216-1003
Starting at$995
700
Sq Ft
1
Story
1
Bed
1
Bath
0
Car
Plan Collection
Plan Collection
Plan Collection
Plan#216-1006
Starting at$995
918
Sq Ft
2
Story
3
Bed
2
Bath
0
Car
Plan Collection
Plan Collection
Plan Collection
Plan#216-1004
Starting at$995
740
Sq Ft
1
Story
1
Bed
1
Bath
1
Car