Estimate your costs based on your location and materials.
Yes! This plan can be customized—contact us for a free quote.
Yes! This plan can be customized—contact us for a free quote.
PLEASE NOTE! The CAD - Unlimited package is NOT an unlimited license - it is a license to build up to 5 homes.
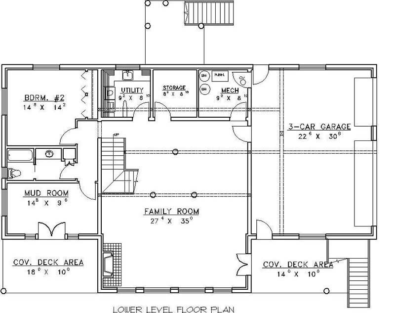
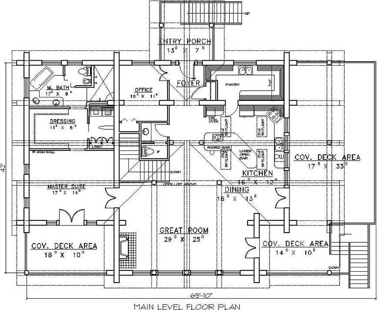
This remarkable cabin has everything you could dream of. The lower level boasts a mudroom leading into a large family room with a warm fireplace. There is also a 3-car garage and storage area. On the main level, you'll find a grand entry foyer leading into a large kitchen/dining area and a very roomy great room. The Kitchen is lit by four skylights and has a raised eating bar and a huge walk-in pantry, and the Great Room is warmed by a cozy fireplace. The Master Suite is also on the main floor and comes with a covered private deck, a dressing area, walk-in closet, and spacious master bath....
Estimate your costs based on your location and materials.
All sales of house plans, modifications, and other products found on this site are final. No refunds or exchanges can be given once your order has begun the fulfillment process. Please see our Policies for additional information.
All plans offered on ThePlanCollection.com are designed to conform to the local building codes when and where the original plan was drawn.
The homes as shown in photographs and renderings may differ from the actual blueprints. For more detailed information, please review the floor plan images herein carefully.
Estimate your costs based on your location and materials.