4-Bedroom, 3784 Sq Ft French Plan with Walk In Closet

Main image for house plan # 17338

Images/Plans copyrighted by designer. Photos may reflect homeowner modifications.

About House Plan #127-1059

Sq Ft
3784
Sq Ft
Bedrooms
4
Bedrooms
Bathroom
3
Baths
Half Baths
1
Half Baths
Bedrooms
3
Cars
Bedrooms
2
Stories
Bedrooms
65' 9'
Width
Bedrooms
87
Depth
Starting at$2300.00What's included
STEP 1Bedrooms
STEP 2Bedrooms
STEP 3Bedrooms

Subtotal:$0
Plan Collection

How much will it cost to build?

Estimate your costs based on your location and materials.

Free Cost Instant Estimator

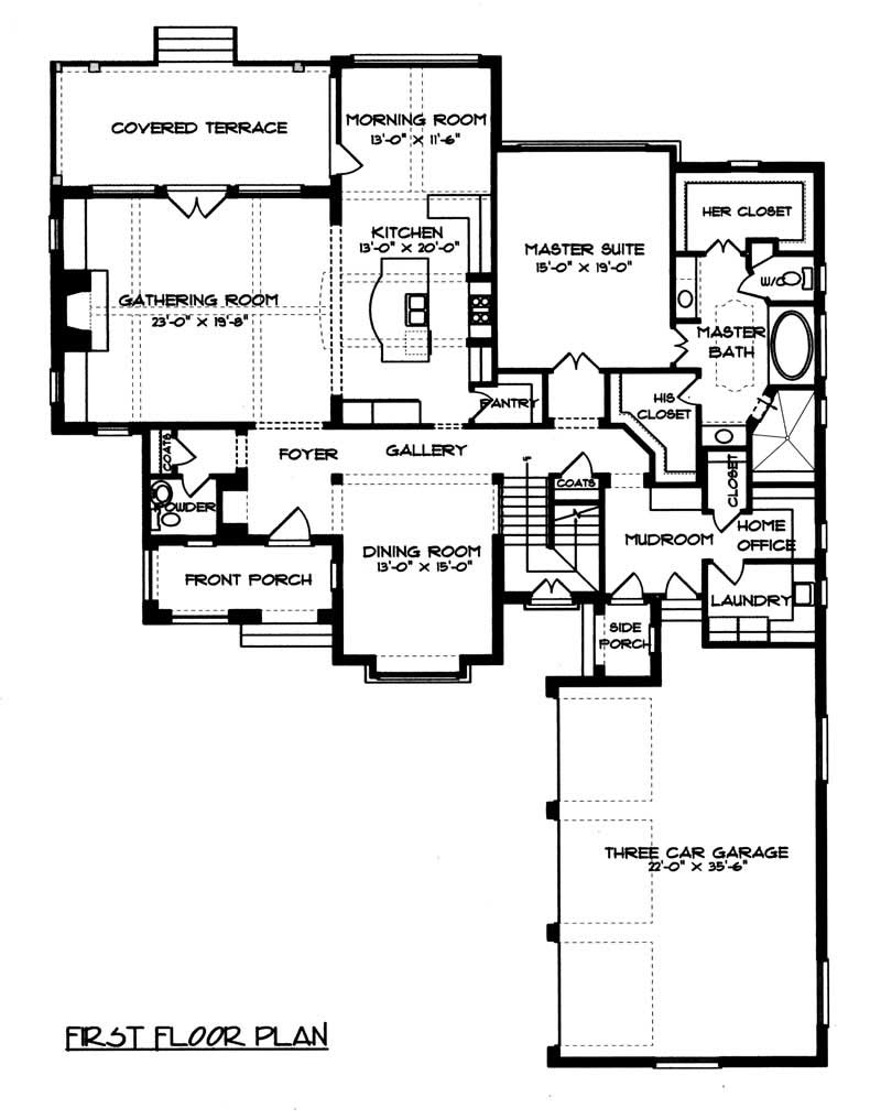
Floor Plans

Main Floor Plan
Main Floor Plan
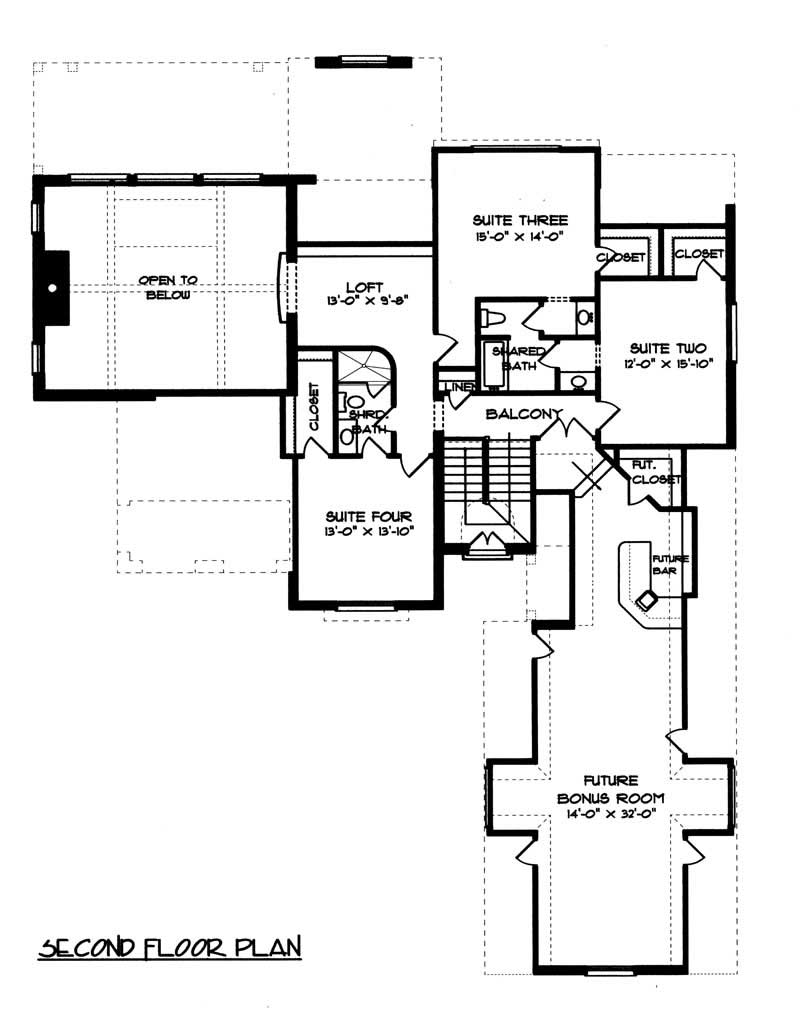
Second Floor Plan
Second Floor Plan
Plan Collection

Can I modify this plan?

Yes! This plan can be customized—contact us for a free quote.

Additional Notes from Designer

NO MODS currently as of 2/9/2021

House Plan Description

Home EDG-3784 has a simple and spacious floor plan. The main floor has a formal dining room near the entry. The rest of the floor is open with the kitchen and breakfast space open to the gathering room. All bedrooms are private. The master is secluded and has a large master bath with a deep shower and two walk-in closets. The rest of the bedrooms are upstairs. Special features include exposed beams, a large island in the kitchen, big laundry room, home office space, high ceilings, walk-in closets in the secondary bedrooms, a very large unfinished bonus room, and a covered veranda. The...

Home Details

Summary
Plan #:127-1059
Starting at:$2300.00
Floors:2
Bedrooms:4
Full Baths:3
Half Baths:1
Garage:
Square Footage
Heated Area:3784 Sq. Ft.
First Floor:2573 Sq. Ft.
Second Floor:1211 Sq. Ft.
Unheated Area:
Garage:861 Sq. Ft.
Dimensions
Width:65' 9''
Depth:87' 1''
Ridge Height:34'11' 0''
Architectural Styles
Exterior Wall Material
BrickRock/StoneWood Siding
Roofing Type
Gable
Roof Pitch
Other
Ceiling Height
10 Foot Ceiling9 Foot Ceiling
Special Feature
Dining RoomHome OfficeBonus Room
Garage Type
Attached GarageCourtyard Entry
Fireplaces
One Fireplace
Exterior Wall Framing
2x62x4

What’s Included

Most plan sets include the following:

icon text-secondary-400 includedCOVER PAGE

icon text-secondary-400 includedFLOOR PLAN: Showing all dimensions, window and door locations, laminated beams, columns, floor materials, ceiling heights, fireplace size, and specifications.

icon text-secondary-400 includedFOUNDATION PLAN: Dimensioned plan detailing the location and size of footings, slabs, reinforcing steel, and other structural elements that are required to support the load of the upper floors.

icon text-secondary-400 includedFIRST FLOOR FRAMING (and Second and Third Floor Framing if applicable)

icon text-secondary-400 includedCEILING FRAMING

icon text-secondary-400 includedROOF PLAN: Dimensioned plan showing the elements that make up the roof, including notation of spacing and schematics of peaks and valleys.

icon text-secondary-400 includedELECTRICAL LAYOUT:Specifications, notes, schedules, and plan defining the location of panels, service, lighting fixtures, switches, outlets, fans, etc. NOTE – PLEASE VERIFY

icon text-secondary-400 includedFRONT, REAR, AND SIDE ELEVATIONS:The front, rear, and side elevations of the house as drawn. Shows placement of doors & windows on exterior of house, as well as roof pitches, ridge heights, and locations of chimney, exterior vents, etc. The elevations show the positioning of the final grade of the lot, exterior finishes, and other details that are necessary to give the home exterior architectural styling.

icon text-secondary-400 includedCROSS SECTIONS AND INTERIOR DETAILS:Explain certain special conditions more appropriately. A cross section is basically a view of the home (or parts of the home) if it were sliced down the center. These details can be helpful for the contractor.

What’s Not Included

These items are  NOT included:

icon text-secondary-400 includedArchitectural or Engineering Stamp - handled locally if required.

icon text-secondary-400 includedSite Plan - handled locally when required.

icon text-secondary-400 includedMechanical Drawings (location of heating and air equipment and ductwork) - your subcontractors handle this.

icon text-secondary-400 includedPlumbing Drawings (drawings showing the actual plumbing pipe sizes and locations) - your subcontractors handle this.

icon text-secondary-400 includedEnergy calculations - handled locally when required.

Related House Plans

Plan Collection
Plan Collection
Plan Collection
Plan#106-1169
Starting at$1695
3912
Sq Ft
2
Story
4
Bed
3.5
Bath
3
Car
Plan Collection
Plan Collection
Plan Collection
Plan#135-1216
Starting at$0
3934
Sq Ft
2
Story
4
Bed
3.5
Bath
3
Car
Plan Collection
Plan Collection
Plan Collection
Plan#120-1942
Starting at$1255
3094
Sq Ft
2
Story
4
Bed
3.5
Bath
3
Car
View All

Other Plans By This Designer

Plan Collection
Plan Collection
Plan Collection
Plan#127-1011
Starting at$2600
4004
Sq Ft
2
Story
4
Bed
3.5
Bath
3
Car
Plan Collection
Plan Collection
Plan Collection
Plan#127-1050
Starting at$1900
2744
Sq Ft
2
Story
4
Bed
3.5
Bath
2
Car
Plan Collection
Plan Collection
Plan Collection
Plan#127-1045
Starting at$4000
6140
Sq Ft
2
Story
6
Bed
6.5
Bath
2
Car