3-Bedroom, 3919 Sq Ft European Plan with Eat-In Kitchen

Front elevation of European home (ThePlanCollection: House Plan #108-1862)

Images/Plans copyrighted by designer. Photos may reflect homeowner modifications.

About House Plan #108-1862

Sq Ft
3919
Sq Ft
Bedrooms
3
Bedrooms
Bathroom
3
Baths
Half Baths
1
Half Baths
Bedrooms
2
Cars
Bedrooms
1
Stories
Bedrooms
122' 8'
Width
Bedrooms
73
Depth
Starting at$2000.00What's included
STEP 1Bedrooms
STEP 2Bedrooms
STEP 3Bedrooms

Subtotal:$0
Plan Collection

How much will it cost to build?

Estimate your costs based on your location and materials.

Free Cost Instant Estimator

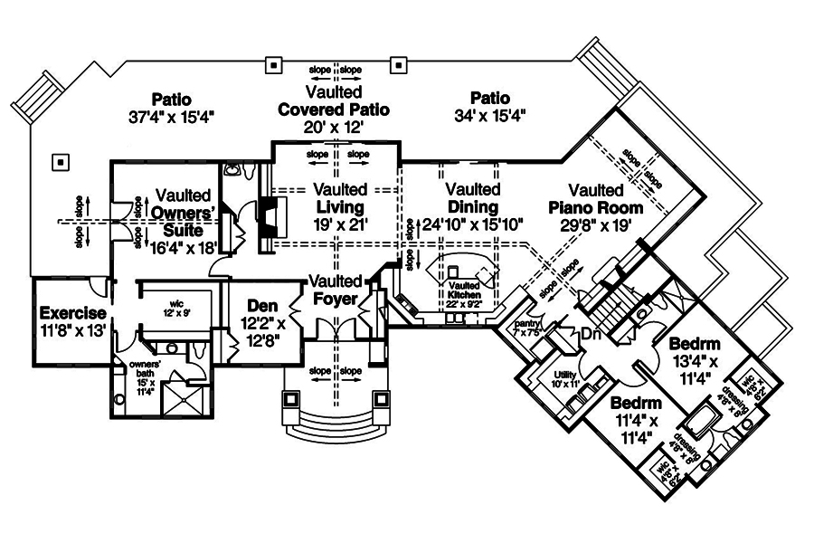
Floor Plans

Floor Plan Main Level
Floor Plan Main Level
Floor Plan Upper Level
Floor Plan Upper Level
Plan Collection

Can I modify this plan?

Yes! This plan can be customized—contact us for a free quote.

Additional Notes from Designer

PLEASE NOTE!! For this designer, The PDF that comes with the PRINT Packages (5 set+PDF and 8 set+PDF) is NOT Modifiable - it is for printing ONLY! PLEASE NOTE!! Optional Foundations (foundations that cost extra money) will take 5-10 business days to complete.

House Plan Description

This lovely European style home with Mediterranean influences (House Plan #108-1862) has 3919 square feet of living space. The 1 story floor plan includes 3 bedrooms.

Home Details

Summary
Plan #:108-1862
Starting at:$2000.00
Floors:1
Bedrooms:3
Full Baths:3
Half Baths:1
Garage:
Square Footage
Heated Area:3919 Sq. Ft.
First Floor:3612 Sq. Ft.
Second Floor:307 Sq. Ft.
Unheated Area:
Basement:307 Sq. Ft.
Garage:882 Sq. Ft.
Dimensions
Width:122' 8''
Depth:73' 4''
Architectural Styles
Exterior Wall Material
StuccoRock/Stone
Roofing Type
Half Hip
Roofing Material
Asphalt Shingles
Roof Pitch
5/12
Ceiling Height
10 Foot Ceiling
Special Feature
FireplaceDining RoomMain Level LaundrySplit BathroomStorageDenVaulted CeilingsExercise RoomOpen Floor Plan
Garage Type
Under Main Floor Entry
Fireplaces
One Fireplace
Exterior Wall Framing
2x6
Building Lot Type
View Lot
Kitchen Features
Kitchen IslandWalk-in PantryPeninsula/Eating Bar
Porches and Exterior Features
Covered Front PorchCovered Rear Patio
Master Suite Features
Main Floor MasterMaster BathroomWalk In ClosetPrivate DeckSplit Master Bedroom

What’s Included

Most plan sets include the following:

icon text-secondary-400 included Artist’s rendering of the home,

icon text-secondary-400 included Front/Rear/Left and Right Elevations,

icon text-secondary-400 included Main floor plan, Second or Basement floor plans (if applicable),

icon text-secondary-400 included Foundation plan and detail,

icon text-secondary-400 included Floor framing plan,

icon text-secondary-400 included Roof framing plan, supporting details and

icon text-secondary-400 included Electric layout.

What’s Not Included

These items are  NOT included:

icon text-secondary-400 includedArchitectural or Engineering Stamp - handled locally if required.

icon text-secondary-400 includedSite Plan - handled locally when required.

icon text-secondary-400 includedMechanical Drawings (location of heating and air equipment and ductwork) - your subcontractors handle this.

icon text-secondary-400 includedPlumbing Drawings (drawings showing the actual plumbing pipe sizes and locations) - your subcontractors handle this.

icon text-secondary-400 includedEnergy calculations - handled locally when required.

Related House Plans

Plan Collection
Plan Collection
Plan Collection
Plan#198-1011
Starting at$3295
3999
Sq Ft
1
Story
3
Bed
3.5
Bath
4
Car
Plan Collection
Plan Collection
Plan Collection
Plan#202-1022
Starting at$995
3312
Sq Ft
1
Story
3
Bed
3.5
Bath
3
Car
Plan Collection
Plan Collection
Plan Collection
Plan#202-1013
Starting at$995
3264
Sq Ft
1
Story
3
Bed
3.5
Bath
3
Car
View All

Other Plans By This Designer

Plan Collection
Plan Collection
Plan Collection
Plan#108-1923
Starting at$1150
2928
Sq Ft
1
Story
4
Bed
3
Bath
2
Car
Plan Collection
Plan Collection
Plan Collection
Plan#108-1538
Starting at$725
1216
Sq Ft
2
Story
2
Bed
2
Bath
0
Car
Plan Collection
Plan Collection
Plan Collection
Plan#108-2031
Starting at$450
1808
Sq Ft
2
Story
2
Bed
1
Bath
2
Car