4-Bedroom, 4085 Sq Ft Contemporary Plan with 10-Foot Ceilings

Front elevation of Contemporary home (ThePlanCollection: House Plan #205-1008)

Images/Plans copyrighted by designer. Photos may reflect homeowner modifications.

About House Plan #205-1008

Sq Ft
4085
Sq Ft
Bedrooms
4
Bedrooms
Bathroom
3
Baths
Half Baths
1
Half Baths
Bedrooms
3
Cars
Bedrooms
2
Stories
Bedrooms
70' 6'
Width
Bedrooms
84
Depth
Starting at$3800.00What's included
STEP 1Bedrooms
STEP 2Bedrooms
STEP 3Bedrooms

Subtotal:$0
Plan Collection

How much will it cost to build?

Estimate your costs based on your location and materials.

Free Cost Instant Estimator

Floor Plans

Floor Plan Main Level
Floor Plan Main Level
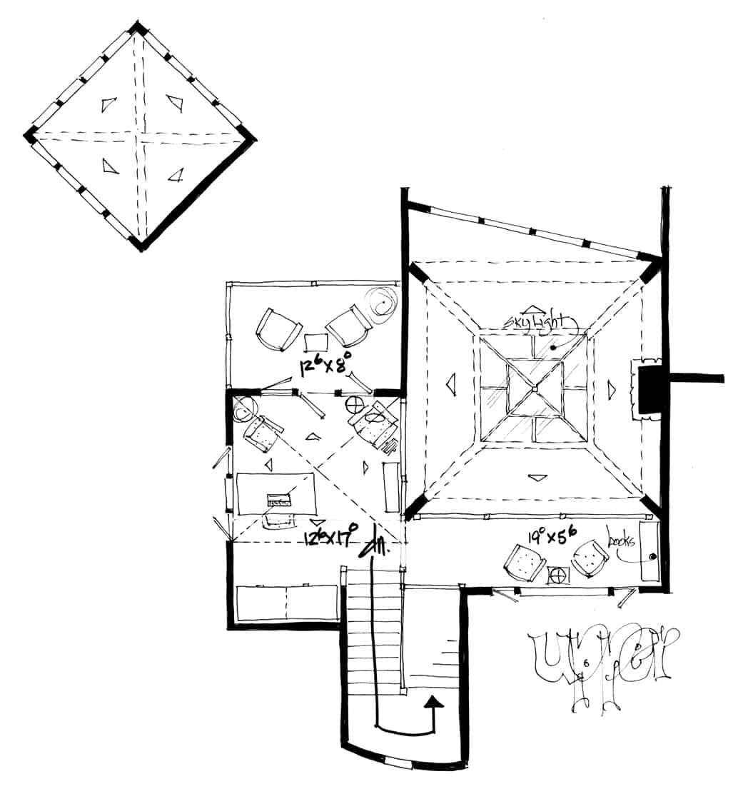
Floor Plan Upper Level
Floor Plan Upper Level
Lower Level
Lower Level
Plan Collection

Can I modify this plan?

Yes! This plan can be customized—contact us for a free quote.

Additional Notes from Designer

All plans come with a standard 2x6framing, Designer does not do 2x4 - have the builder do it on site. MEP (Mechanical, Plumbing, and Electrical) is not included

House Plan Description

This 1.5-story Contemporary style home is a fine example of transitional Prairie design  It has a total heated and cooled area of a 4,085 square feet with a finished lower level. The different levels and shapes of the rooflines, in addition to a well-balanced combination of materials, give it a natural homey appeal.

Home Details

Summary
Plan #:205-1008
Starting at:$3800.00
Floors:2
Bedrooms:4
Full Baths:3
Half Baths:1
Garage:
Square Footage
Heated Area:4085 Sq. Ft.
Basement:1640 Sq. Ft.
First Floor:2225 Sq. Ft.
Second Floor:220 Sq. Ft.
Unheated Area:
Garage:900 Sq. Ft.
Dimensions
Width:70' 6''
Architectural Styles
Exterior Wall Material
Vinyl SidingRock/StoneWood Siding
Roofing Type
HipFlat
Roofing Material
TarTiles
Roof Pitch
6/12
Ceiling Height
10 Foot Ceiling
Special Feature
FireplaceDining RoomGuest RoomHome OfficeFamily RoomGame RoomMain Level LaundryHome TheaterSplit BathroomStorageBalconyExercise RoomOpen Floor Plan
Garage Type
Attached GarageCourtyard EntrySide Entry
Fireplaces
One Fireplace
Exterior Wall Framing
2x6
Building Lot Type
Down SiteCorner Lot
Kitchen Features
Kitchen IslandWalk-in PantryPeninsula/Eating Bar
Porches and Exterior Features
Covered Front PorchCovered Rear Porch
Master Suite Features
Main Floor MasterMaster BathroomWalk In Closet

What’s Included

Most plan sets include the following:

icon text-secondary-400 includedAll exterior elevations at 1/4” scale

icon text-secondary-400 includedAll Floor plans at 1/4” scale

icon text-secondary-400 includedInterior sections at 1/4” scale (Amount of sections differ per plan)

icon text-secondary-400 includedRoof and floor framing layout at 1/4” scale (Not to Structural Specifications as each location demands specified details)

icon text-secondary-400 includedElectrical layouts at 1/4” scale

icon text-secondary-400 includedWall sections and framing details at scale

icon text-secondary-400 includedSimpson connection chart

icon text-secondary-400 includedFoundation layouts at 1/4” scale (Not to Structural Specifications as each location demands specified details)

icon text-secondary-400 includedConstruction details per plan

icon text-secondary-400 includedConstruction notes per plan

icon text-secondary-400 includedWindow and door schedules

icon text-secondary-400 includedIllustrative Rendering on cover

What’s Not Included

These items are  NOT included:

icon text-secondary-400 includedArchitectural or Engineering Stamp - handled locally if required.

icon text-secondary-400 includedSite Plan - handled locally when required.

icon text-secondary-400 includedMechanical Drawings (location of heating and air equipment and ductwork) - your subcontractors handle this.

icon text-secondary-400 includedPlumbing Drawings (drawings showing the actual plumbing pipe sizes and locations) - your subcontractors handle this.

icon text-secondary-400 includedEnergy calculations - handled locally when required.

Related House Plans

Plan Collection
Plan Collection
Plan Collection
Plan#116-1080
Starting at$0
3885
Sq Ft
2
Story
4
Bed
3.5
Bath
3
Car
Plan Collection
Plan Collection
Plan Collection
Plan#161-1067
Starting at$2400
3897
Sq Ft
2
Story
4
Bed
3.5
Bath
3
Car
Plan Collection
Plan Collection
Plan Collection
Plan#120-2176
Starting at$1255
3124
Sq Ft
2
Story
4
Bed
3.5
Bath
2
Car
View All

Other Plans By This Designer

Plan Collection
Plan Collection
Plan Collection
Plan#205-1003
Starting at$1375
681
Sq Ft
1
Story
2
Bed
2
Bath
0
Car
Plan Collection
Plan Collection
Plan Collection
Plan#205-1009
Starting at$1775
1416
Sq Ft
1
Story
3
Bed
2
Bath
0
Car
Plan Collection
Plan Collection
Plan Collection
Plan#205-1020
Starting at$750
1825
Sq Ft
2
Story
3
Bed
3
Bath
2
Car