3-Bedroom, 4138 Sq Ft Mediterranean Plan with Kitchen Island

Front elevation of Mediterranean home (ThePlanCollection: House Plan #175-1162)

Images/Plans copyrighted by designer. Photos may reflect homeowner modifications.

About House Plan #175-1162

Sq Ft
4138
Sq Ft
Bedrooms
3
Bedrooms
Bathroom
4
Baths
Half Baths
1
Half Baths
Bedrooms
3
Cars
Bedrooms
2
Stories
Bedrooms
75' 2'
Width
Bedrooms
83
Depth
Starting at$1650.00What's included
STEP 1Bedrooms
STEP 2Bedrooms
STEP 3Bedrooms

Subtotal:$0
Plan Collection

How much will it cost to build?

Estimate your costs based on your location and materials.

Free Cost Instant Estimator

Floor Plans

Floor Plan Main Level
Floor Plan Main Level
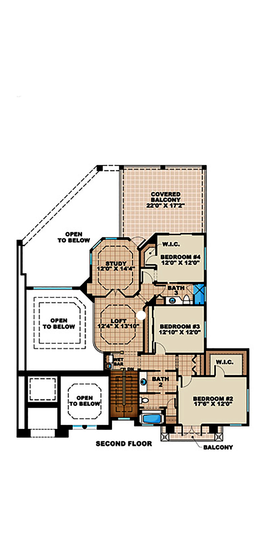
Floor Plan Upper Level
Floor Plan Upper Level
Plan Collection

Can I modify this plan?

Yes! This plan can be customized—contact us for a free quote.

Additional Notes from Designer

PLEASE NOTE: This designer has zip code restrictions and a 5-7 day processing time for their CAD and PDF orders. Please contact us to verify your zip code BEFORE you order!! 2x6 and Right-Reading Reverse options are available. PLEASE NOTE: The designer is currently not providing modifications. We suggest you purchase a CAD file and work with a local engineer for changes. Additionally, orders (including electronic formats) could take up to 5 days to be delivered or shipped. Thank you!

House Plan Description

This lovely Mediterranean style home with Tuscan influences (House Plan #175-1162) has 5570 square feet of living space. The 2 story floor plan includes 5 bedrooms.

Home Details

Summary
Plan #:175-1162
Starting at:$1650.00
Floors:2
Bedrooms:3
Full Baths:4
Half Baths:1
Garage:
Square Footage
Heated Area:4138 Sq. Ft.
First Floor:2706 Sq. Ft.
Second Floor:1432 Sq. Ft.
Unheated Area:
Garage:767 Sq. Ft.
Porch:1064 Sq. Ft.
Dimensions
Width:75' 2''
Architectural Styles
Exterior Wall Material
Stucco
Roofing Type
Hip
Roofing Material
Tiles
Roof Pitch
6/12
Ceiling Height
10 Foot Ceiling8 Foot Ceiling11 Foot Ceiling
Special Feature
FireplaceSwimming PoolDining RoomHome OfficeFamily RoomMain Level LaundryLibraryLoftStorageVaulted CeilingsBalconyExercise RoomOpen Floor Plan
Garage Type
Attached GarageFront Entry
Fireplaces
One Fireplace
Exterior Wall Framing
Concrete
Building Lot Type
View LotCorner Lot
Kitchen Features
Kitchen IslandButler's PantryNook/Breakfast AreaWalk-in PantryOutdoor KitchenPeninsula/Eating BarEat-In KitchenSecondary Kitchen
Porches and Exterior Features
Covered Front PorchCovered Lanai
Master Suite Features
Main Floor MasterMaster BathroomWalk In ClosetSitting AreaSplit Master Bedroom

What’s Included

Most plan sets include the following:

icon text-secondary-400 includedElevations

icon text-secondary-400 includedFloor Plans

icon text-secondary-400 includedBuilding Section Markers

icon text-secondary-400 includedElectrical Layout

icon text-secondary-400 includedSlab Plan

icon text-secondary-400 includedRoof Plan

icon text-secondary-400 includedBuilding Sections

icon text-secondary-400 includedTypical Wall Sections

icon text-secondary-400 includedMiscellaneous Notes & Details

What’s Not Included

These items are  NOT included:

icon text-secondary-400 includedNO MEPs, NO Framing,

icon text-secondary-400 includedNo Trusses: The client gets that from the truss manufacturer

icon text-secondary-400 includedNo Engineering, You will need to get the plans stamped and engineered locally

icon text-secondary-400 includedHVAC and Plumbing is not included

Related House Plans

Plan Collection
Plan Collection
Plan Collection
Plan#134-1013
Starting at$0
4145
Sq Ft
2
Story
3
Bed
4.5
Bath
3
Car
Plan Collection
Plan Collection
Plan Collection
Plan#137-1819
Starting at$1300
4151
Sq Ft
2
Story
3
Bed
4
Bath
2
Car
Plan Collection
Plan Collection
Plan Collection
Plan#195-1247
Starting at$2420
5123
Sq Ft
2
Story
3
Bed
4.5
Bath
3
Car
View All

Other Plans By This Designer

Plan Collection
Plan Collection
Plan Collection
Plan#175-1073
Starting at$4500
6780
Sq Ft
2
Story
5
Bed
6.5
Bath
4
Car
Plan Collection
Plan Collection
Plan Collection
Plan#175-1256
Starting at$7200
8364
Sq Ft
3
Story
6
Bed
5.5
Bath
8
Car
Plan Collection
Plan Collection
Plan Collection
Plan#175-1266
Starting at$3200
4403
Sq Ft
1
Story
4
Bed
4.5
Bath
4
Car